EasyManua.ls Logo

Carrier WeatherMaker 50KCQ A04 Series - Smoke Detectors; System; Controller; Sensor

Carrier WeatherMaker 50KCQ A04 Series
80 pages
To Next Page IconTo Next Page
To Next Page IconTo Next Page
To Previous Page IconTo Previous Page
To Previous Page IconTo Previous Page
Loading...
26
Fig. 36 — Accessory Electric Heater Control
Connections (HP-1 and HP-2)
Fig. 37 — TB4 Wiring (HP Only)
Fig. 38 — TB4 Terminal Use (HP Only)
SMOKE DETECTORS
Smoke detectors are available as factory-installed options
(FIOP) on 50KCQ models. Smoke detectors can be specified for
supply air only, for return air with or without economizer, or in
combination of supply air and return air. Return air smoke detec-
tors are arranged for vertical return configurations only. All com-
ponents necessary for operation are factory-provided and mount-
ed. The unit is factory-configured for immediate smoke detector
shutdown operation; additional wiring or modifications to unit
terminal board can be necessary to complete the unit and smoke
detector configuration to meet project requirements.
System
The smoke detector system consists of a four-wire controller and
one or two sensors. Its primary function is to shut down the roof-
top unit in order to prevent smoke from circulating throughout
the building. It is not to be used as a life saving device.
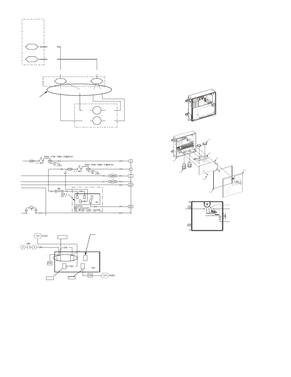
Controller
The controller (see Fig. 39) includes a controller housing, a
printed circuit board, and a clear plastic cover. The controller
can be connected to one or two compatible duct smoke sensors.
The clear plastic cover is secured to the housing with a single
captive screw for easy access to the wiring terminals. The con-
troller has three LEDs (for Power, Trouble and Alarm) and a
manual test/reset button (on the cover face).
Fig. 39 — Controller Assembly
Sensor
The sensor (see Fig. 40) includes a plastic housing, a printed
circuit board, a clear plastic cover, a sampling tube inlet and an
exhaust tube. The sampling tube (when used) and exhaust tube
are attached during installation. The sampling tube varies in
length depending on the size of the rooftop unit. The clear plas-
tic cover permits visual inspections without having to disas-
semble the sensor. The cover attaches to the sensor housing us-
ing four captive screws and forms an airtight chamber around
the sensing electronics. Each sensor includes a harness with an
RJ45 terminal for connecting to the controller. Each sensor has
four LEDs (for Power, Trouble, Alarm and Dirty) and a manual
test/reset button (on the left side of the housing).
DEFROST
BOARD
ORN
BRN
Field
Connections
E-HEAT
P3-3
31
ORN BRN
VIO BRN BRN
VIO
TB4
VIO HR2
HR1
BRN
VIO BRN
Elec Htr
HR1: On Heater 1 in Position #1
HR2: On Heater 2 in Position #2 (if installed)
NOTE 4
AND 6
EHR
CB
8
6
FPT
BLK
BLK
BRN
RED
CB
ORN
ORN
NOTE:
Optional Outdoor Temperature Control
at One Heater Stage –
Move heater wire to this terminal and
connect outdoor temperature switch
between second and third terminals.
W2 Use
R Use
C Use
Controller Housing
and Electronics
Conduit Couplings
(supplied by installer)
Fastener
(2X)
Alarm
Trouble
Power
Test/Reset
Switch
Controller Cover
Cover Gasket
(ordering option)
Terminal Block Cover
Conduit Support Plate
Conduit Nuts
(supplied by installer)
Duct Smoke Sensor
Controller

Table of Contents

Other manuals for Carrier WeatherMaker 50KCQ A04 Series

Related product manuals