EasyManua.ls Logo

Carrier WeatherMaker Puron 48FC 04 Series - Unit Dimensional Drawings

Carrier WeatherMaker Puron 48FC 04 Series
48 pages
To Next Page IconTo Next Page
To Next Page IconTo Next Page
To Previous Page IconTo Previous Page
To Previous Page IconTo Previous Page
Loading...
4
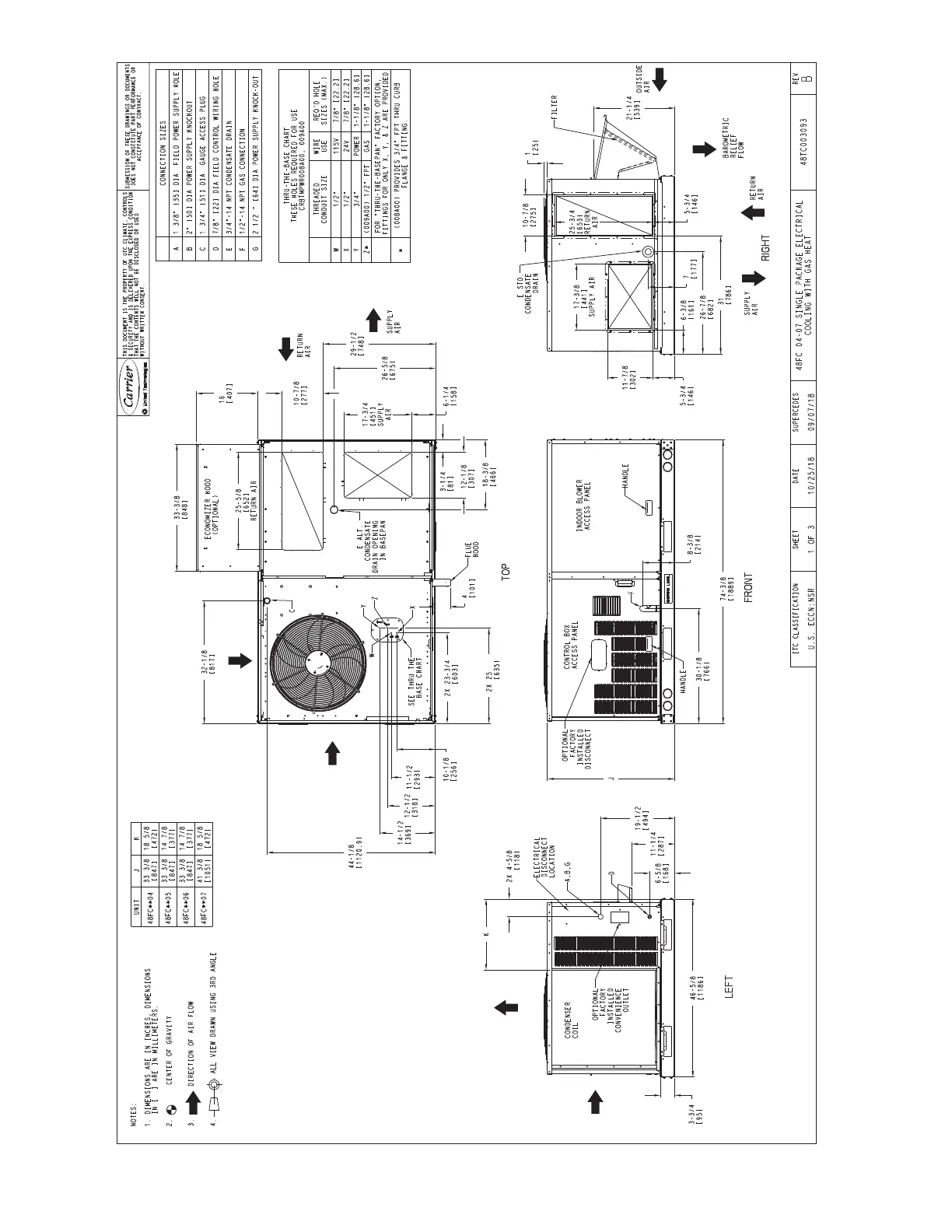
Fig. 2 — Unit Dimensional Drawing

Table of Contents

Related product manuals