EasyManua.ls Logo

Carrier WEATHERMAKERTM TWO-SPEED 38TDB - Dual Capacity Connection Diagram

Carrier WEATHERMAKERTM TWO-SPEED 38TDB
16 pages
To Next Page IconTo Next Page
To Next Page IconTo Next Page
To Previous Page IconTo Previous Page
To Previous Page IconTo Previous Page
Loading...
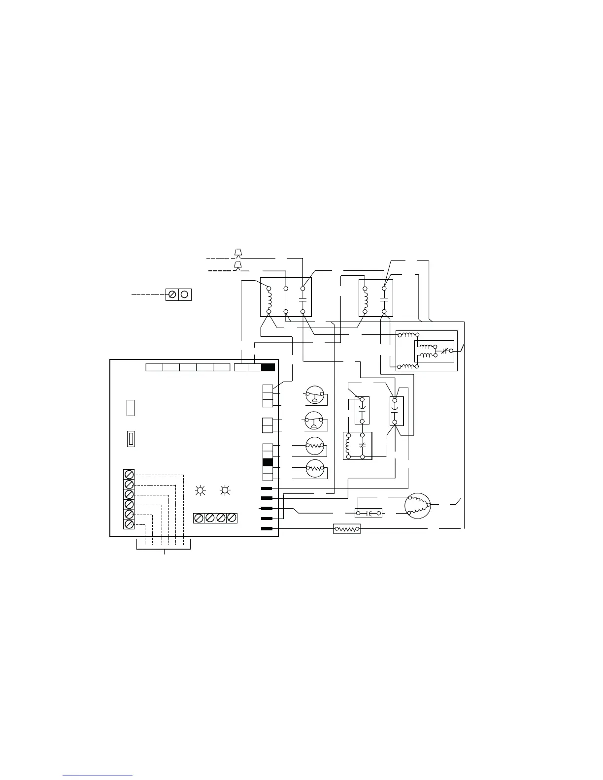
Fig. 15—Wiring Diagram—024, 036, 048
A01513
CONNECTION DIAGRAM
OCT
-t°
LPS
HPS
OAT
-t°
LOHI
TO INDOOR UNIT
RED
CCH
FAN CAP
YEL
RED
BRN
OFM
BLK
BLU/PNK
BLU/PNK
YEL/PNK
YEL/PNK
BRN
BRN
BLK
BLK
RED
BLU
CH
11
2123
23
YEL
BLK
BLK
BLK
C L
11
21
H
C
START
COMP
RELAY
BRN
CAP
L2
L1
EQUIP GND
DUAL CAPACITY
ABCD
BLU
BRN
BRN
BLK
YEL
BRN
BLK
C
O
W
Y
2
Y
1
R
1
RVSSEVHP/AC CC
VH
L 2
ODF
CCH
VC
12345
PL1
12
PL2
PL5
1
2
3
1
2
1
2
4
5
YEL
BLU
BLU
BRN
BRN
1
2
YEL
5
BRN
BLU
START
CAP
NOTE #11
208 / 230 - 1 - 60
POWER SUPPLY
COMM STATUS
FORCED
DEFROST
TIME (MIN)
DEFROST
BLK
PL4
PL3
YEL
RED
LPS
HPS
OAT
OCT
COMP
YEL
R
S
C
BLU
BLU
BLU
14

Related product manuals