EasyManua.ls Logo

CDA FW281 - Installation

CDA FW281
12 pages
Print Icon
To Next Page IconTo Next Page
To Next Page IconTo Next Page
To Previous Page IconTo Previous Page
To Previous Page IconTo Previous Page
Loading...
Installation
This appliance must never be installed close to heat sources i.e. heating elements, cookers or in damp places
The appliance should be mounted on a piece of wood (for example a section of worktop or kitchen carcass) if a
raised floor is to be fitted, if the kitchen floor is to be tiled after installation, or if the installation height of the
appliance is greater than 850 mm.
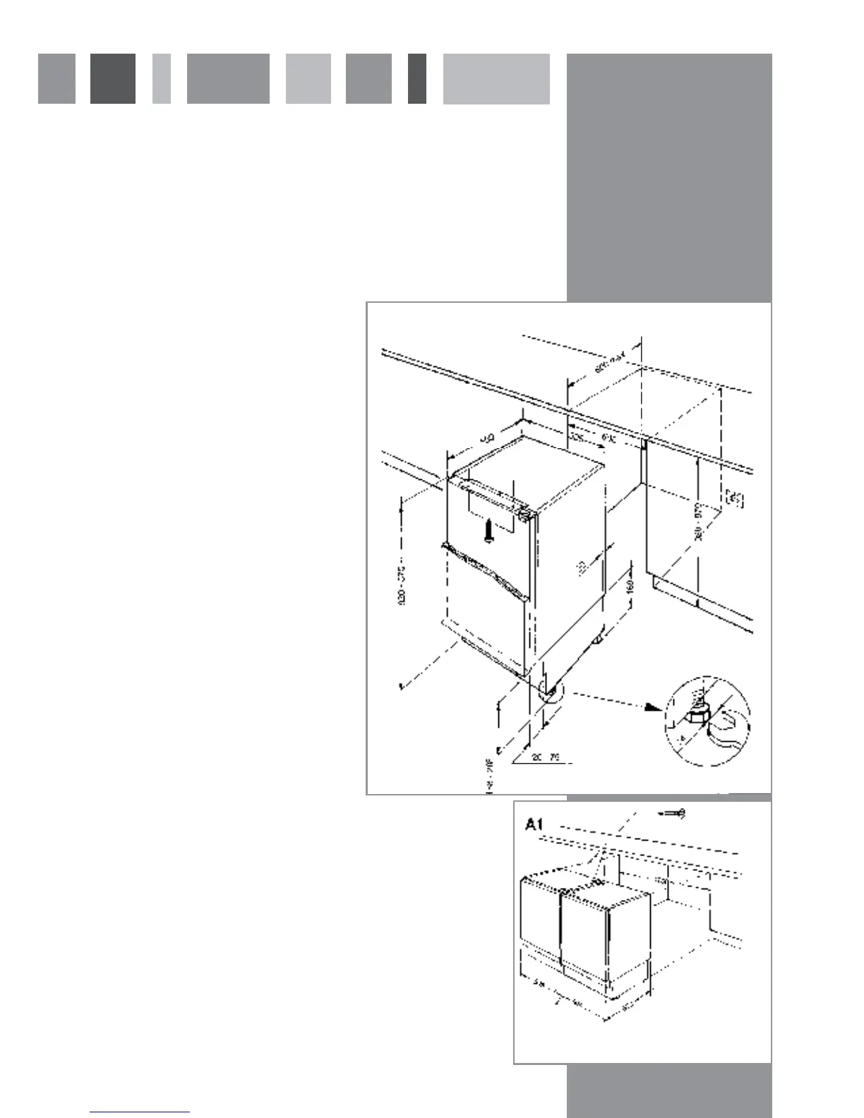
Fig. 1 - Dimensions of the appliance.
Fig. 2 - Dimensions for installation in
adjacent units.
Instructions for fitting the refrigerator in
Fig.A-Volume of the under the counter ap-
pliance
Fig.A1-Volume of the under the counter
appliance in the event of adjacent
1
Instructions for fitting the refrigerator in
Fig.A-Volume of the under the counter ap-
pliance
Fig.A1-Volume of the under the counter
appliance in the event of adjacent
1
fig. 1
fig. 2

Related product manuals