EasyManua.ls Logo

CDA FW281 - Page 9

CDA FW281
12 pages
Print Icon
To Next Page IconTo Next Page
To Next Page IconTo Next Page
To Previous Page IconTo Previous Page
To Previous Page IconTo Previous Page
Loading...
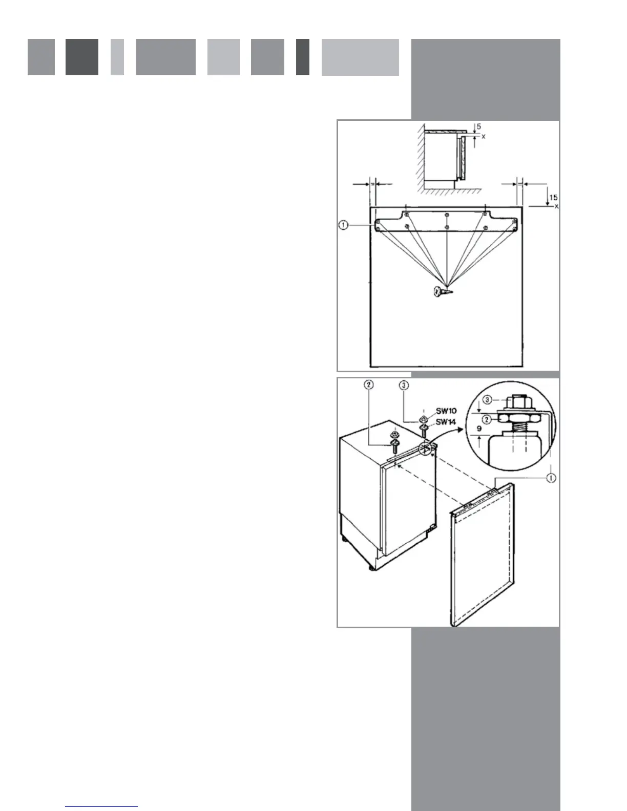
Installing the decor door
Screw mounting bracket (1) onto decor door using the
screws supplied (as show in figure 4).
Fit the correct side towards the hinges.
Ensure there is a 5mm clearance between
the underside of the worktop and upper edge (X) of the
decor panel.
Screw the four adjusting pins (2) fully into the
appliance door.
Position the decor door on the appliance
door, introduce the locating pins at top into the
slots in the mounting plate and open out
according to detail in figure 5 (about 9mm).
3
3
fig. 4
fig. 5

Related product manuals