EasyManua.ls Logo

CDA FW925 - Page 16

CDA FW925
24 pages
Print Icon
To Next Page IconTo Next Page
To Next Page IconTo Next Page
To Previous Page IconTo Previous Page
To Previous Page IconTo Previous Page
Loading...
16
consumption, total system failure and may invalidate the warranty
provided with the appliance. For products intended to be installed into
a tall housing unit, the following requirements need to be met:
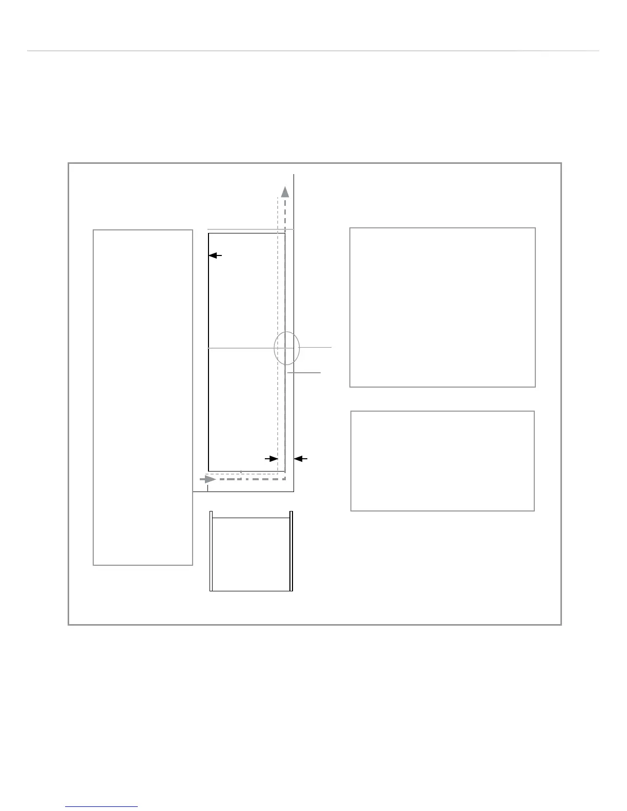
The open channel at the rear is clearly shown. For the correct
operation of the appliance it is important that the top of the housing
unit is not blocked o. A channel depth of 40-50mm is normal with
most units.
A ventilation hole is required in the plinth of the unit; this allows air to
plan view of rear ventilation gap
The top of the cabinet needs to be
vented into the room
Recommended size of vent opening:
500 x 30mm
If the furniture does not allow free air
into the room then a plinth vent, or other
means of ventilation needs to be pro-
vided to ensure a natural flow of air
There should be space at the rear of the
cabinet to allow cool air to be drawn over
the condenser.
Recommended:
500 x 35mm
An air intake
should be provided
somewhere in
the cabinet run to
allow free air in.
In this example, a
plinth vent is shown
underneath the
refrigerator .
A cutout should be
made in the plinth
below the fridge/
freezer and this
finished neatly using
the air vent grille
supplied.
Alternatively, a thin
section of the plinth
can be removed
to allow air into the
unit (recommended
600mm x 10mm).
Refrigerator
outline
Min 30mm
Fig. 7

Related product manuals