EasyManua.ls Logo

Cedar Summit F25630 - Page 29

Default Icon
114 pages
Print Icon
To Next Page IconTo Next Page
To Next Page IconTo Next Page
To Previous Page IconTo Previous Page
To Previous Page IconTo Previous Page
Loading...
1 x Gap Ladder FSC 5/4 x 4 x 15”
1 x Rock Rail FSC 2 x 4 x 62-7/8”
1 x Top Ladder FSC 5/4 x 3 x 35-7/8”
Fig. 2.4
Fig. 2.5
Fig. 2.6
SwingBracket
024
025
023
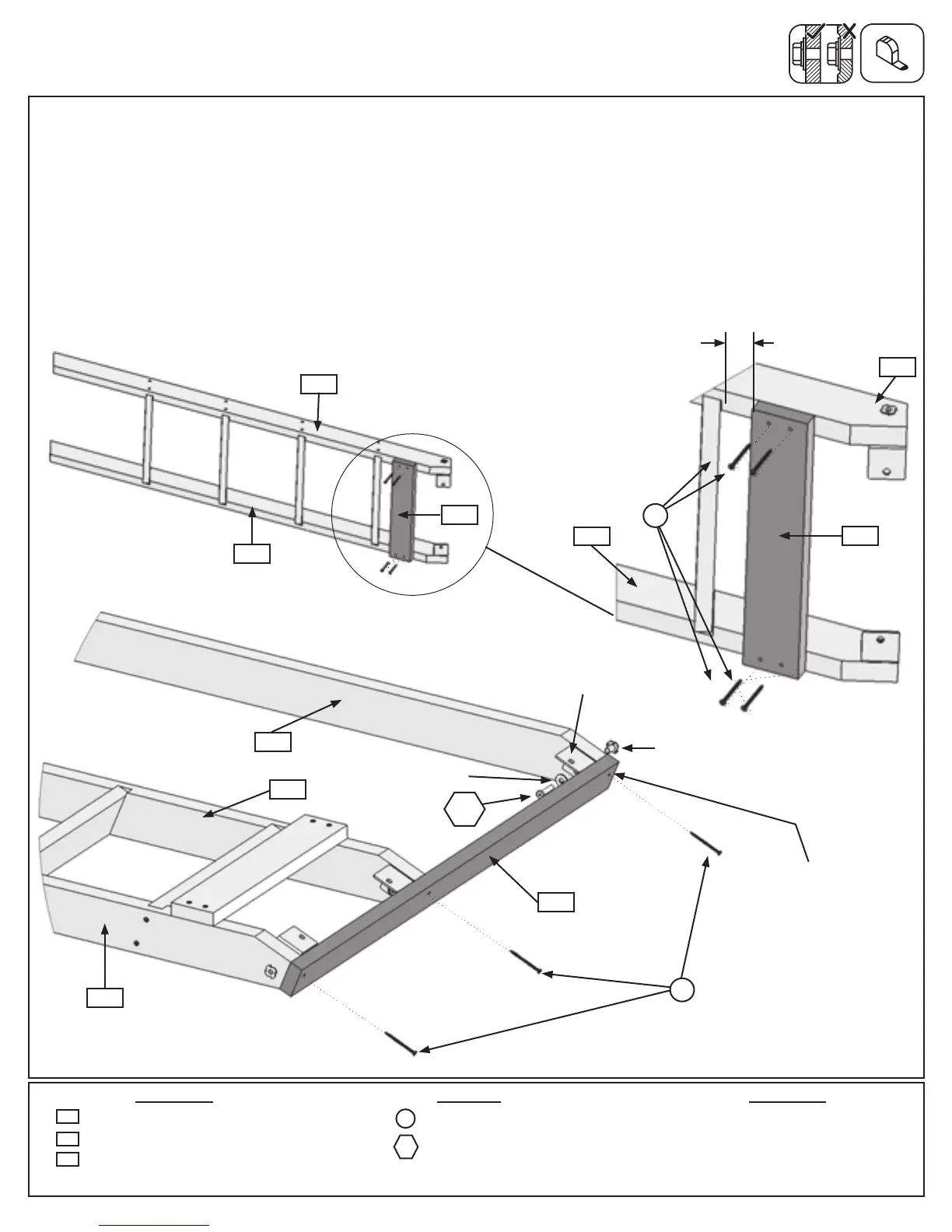
Step 2: Access Ladder / Rockwall Assembly
Part 2
E:Place(023)GapLadderoneachaccessrailsothereisa2-3/8”gapbetween(023)GapLadderandthetop
(022)LadderTread.Attachusing4(S3)#8x2-1/2”WoodScrews.(g.2.4and2.5)
F: Place(024)RockRailonthegroundnextto(021)RightAccessRailsoitmatchestheorientationofthetwo
accessrailsasshowning.2.6.Attach(025)TopLaddertotopofAccessLadderassemblyand(024)Rock
Railusing3(S3)#8x2-1/2”WoodScrews.Noticethattheholesintheboardaretowardsthetop.(g.2.6)
G:Attach1SwingBrackettothetopanglededgeof(024)RockRail,makingsurethebracketfacesout.Use1
(WB2)5/16x1-3/8”WaferBolt(withatwasherandt-nut).(g.2.6)
Wood Parts Hardware Other Parts
1 x Swing Bracket
7 x #8 x 2-1/2” Wood Screw
1 x 5/16 x 1-3/8” Wafer Bolt
(5/16” at washer, 5/16” t-nut)
WB2
S3
021
023
025
020
021
020
024
020
021
WB2
5/16”Flat
Washer
5/16”T-Nut
2-3/8”gapbetweentop
TreadandLadderGap
023
Notice holes
towards top
of board
S3
S3
29 support@cedarsummitplay.com