EasyManua.ls Logo

Cedar Summit McKinley - Page 38

Cedar Summit McKinley
70 pages
Print Icon
To Next Page IconTo Next Page
To Next Page IconTo Next Page
To Previous Page IconTo Previous Page
To Previous Page IconTo Previous Page
Loading...
38 support@cedarsummitplay.com
Step 15: Counter Assembly
Part 5
SCALE:1:50 WEIGHT:
Counter Prep
SHEET 5 OF 6
REV.
DWG. NO.
SIZE
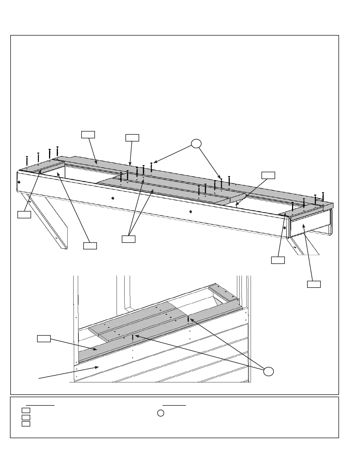
Use 18 - #6 x 30mm Trim Screw
F: Tight to (2687) Counter Back attach (2685) Counter Top to each (5736) Counter Joist with 4 (TS) #6 x 30 mm
Trim Screws. (g. 15.7)
G: Tight to (2685) Counter Top and ush to the outside edges of the outer (5736) Counter Joists attach 1 (5536)
Counter Side per joist with 3 (TS) #6 x 30 mm Trim Screws per board. (g. 15.7)
H: Tight to (2685) Counter Top and centred over the middle 2 (5736) Counter Joists with ends ush to the outside
edges attach 2 (2716) Counter Mid Tops with 4 (TS) #6 x 30 mm Trim Screws per board. (g. 15.7)
I: Attach (2685) Counter Top to the panel with 2 (TS) #6 x 30 mm Trim Screws per board. (g. 15.8)
HardwareWood Parts
2 x Counter Mid Top 1 x 4 x 17-5/8”
1 x Counter Top 1 x 4 x 40-5/8”
2 x Counter Side 5/8 x 2 x 6-3/4”
20 x #6 x 30 mm Trim Screw
TS
2716
5536
2685
5536
2687
5736
x18
5736
5736
TS
5536
2685
Fig. 15.7
SHEET 6 OF 6
REV.
DWG. NO.
SIZE
WEIGHT:
Counter Prep
SCALE:1:50
2716
Fig. 15.8
TS
2685
Panel

Related product manuals