EasyManua.ls Logo

CellarPro 3200VSi-ECX - Page 14

Default Icon
36 pages
Print Icon
To Next Page IconTo Next Page
To Next Page IconTo Next Page
To Previous Page IconTo Previous Page
To Previous Page IconTo Previous Page
Loading...
14
V3.15.22
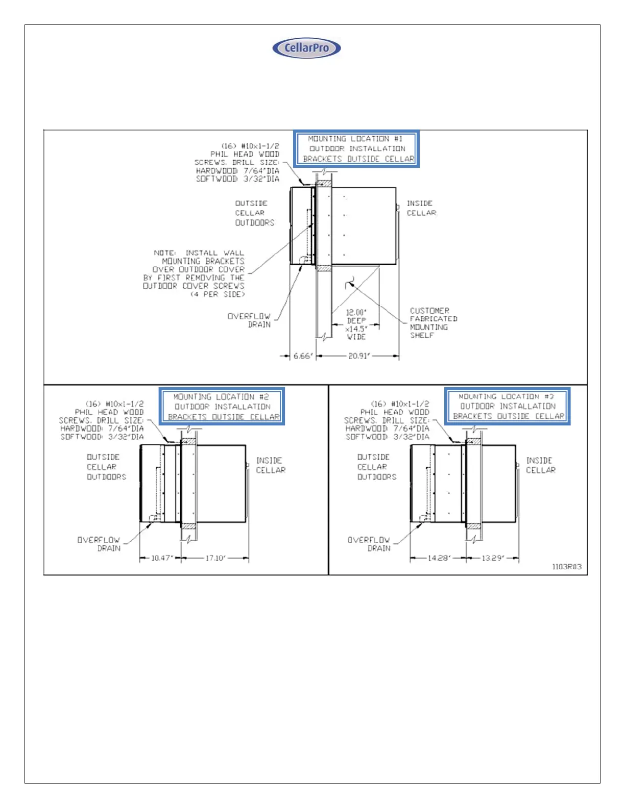
3200VSx‐ECX/4200VSx‐ECX–MountingDiagrams


Related product manuals