EasyManua.ls Logo

CellarPro 4000S - Page 24

Default Icon
58 pages
Print Icon
To Next Page IconTo Next Page
To Next Page IconTo Next Page
To Previous Page IconTo Previous Page
To Previous Page IconTo Previous Page
Loading...
 24
V8.18
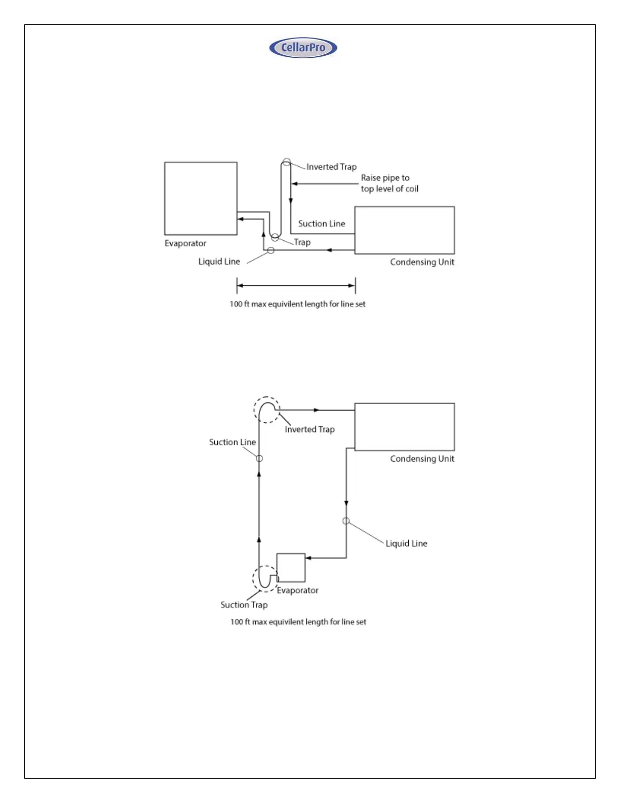
1. When the evaporator and condensing unit are located on the same level,
pipe suction line with inverted trap as shown to prevent liquid migration to the
compressor during the off cycle. Pitch the suction line slightly downward to
the condensing unit:
2. When the evaporator is located below the condensing unit, a suction trap
must be installed at the evaporator, and an inverted trap must be installed at
the condensing unit, for proper oil return, as follows:
3. When the evaporator is located above the condensing unit, pipe suction line
with inverted trap as shown to prevent liquid migration to the compressor during
the off cycle. The vertical lift of the liquid line is limited to 30 feet. The lift may be
increased to 60 feet if an optional liquid/suction Heat Exchanger is added to the
field piping.

Related product manuals