EasyManua.ls Logo

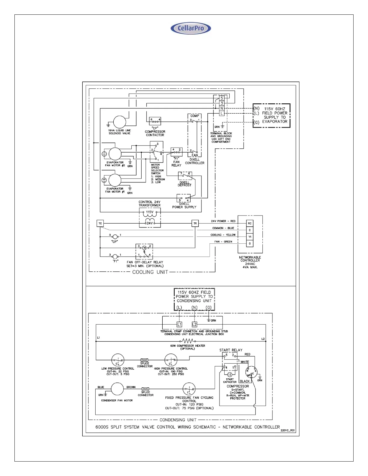
CellarPro 4000S - Appendix H: Model 6000 S Dual Power Valve Control Networkable Thermostat Wiring

Default Icon
58 pages
Print Icon
To Next Page IconTo Next Page
To Next Page IconTo Next Page
To Previous Page IconTo Previous Page
To Previous Page IconTo Previous Page
Loading...
 53
V8.18
Wiring Diagram – Model 6000S Appendix H
– Dual Power / Valve Control
– Networkable Thermostat Upgrade

Related product manuals