EasyManua.ls Logo

Centek CT-65F09 - Installation Procedures; Unit Location and Mounting; Indoor Unit Installation

Default Icon
Print Icon
To Next Page IconTo Next Page
To Next Page IconTo Next Page
To Previous Page IconTo Previous Page
To Previous Page IconTo Previous Page
Loading...
30
OUTDOOR UNIT LOCATION
Away from heat sources, flammable gases and fumes.
In a well-ventilated space protected from rain, snow and direct
sunlight.
Where AC operation or the water exiting from the drain tube cannot
disturb your neighbors.
The mounting location shall be easily accessible for maintenance.
The outdoor unit should be mounted on a stable and secure base
which will not result in increased noise or vibrations.
To ensure high efficiency check that the front, rear, right and left
sides of the unit are free from obstructions.
Check the installation distances as shown in Fig. 2.
Не менее 10 см
Рис. 2
Не менее
15 см
Не менее 2,3 м
заграждение
Не менее 2 м
Вход воздуха
Выход воздуха
Не менее
15 см
Не менее 10 см
Рис. 2
Не менее
15 см
Не менее 2,3 м
заграждение
Не менее 2 м
Вход воздуха
Выход воздуха
Внешний блок
Не менее
15 см
not less than 15 cm
not less than 10 cm
not less
than 2,3 m
not less than 15 cm
not less
than 2 m
air inlet
outdoor unit
air outlet
barrage
Figure 2
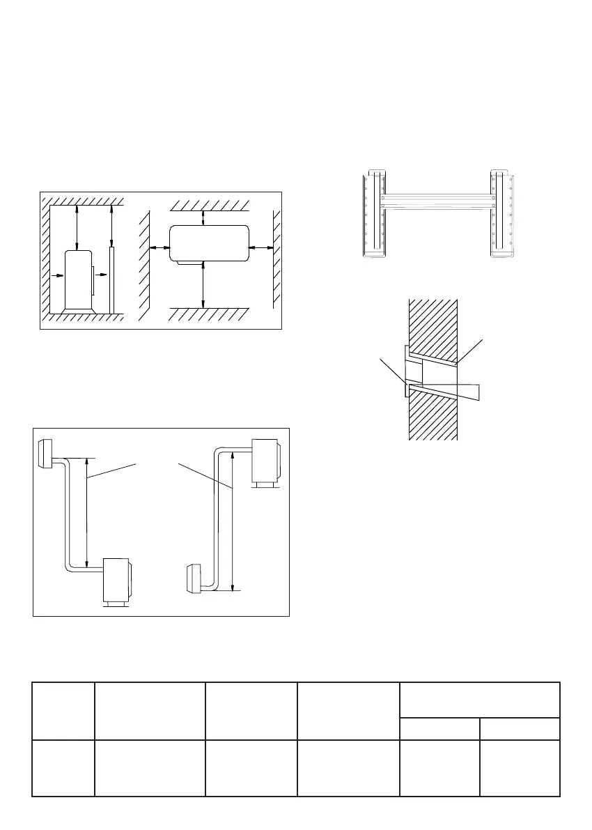
HEIGHT DIFFERENCE
Ensure that the mounting elevation (height) difference between the
indoor and outdoor units does not exceed 5 meters (Fig. 3).
If the pipeline length is between 7 and 15 m an additional refrigerant
charge will be required in accordance with Table 1.
Разность высот
Рис. 3
Внутренний блок
Внешний блок
Внешний блок
Внутренний блок
height difference
indoor unit
indoor unit
outdoor unit
Figure 3
MOUNTING PANEL INSTALLATION
Place the metal mounting panel of the indoor unit on the wall
according to Fig. 4.
At least 4 mounting holes should be provided in the wall for the secure
fastening of the mounting panel. Ensure that the mounting panel is
installed horizontally.
Drill the hole in the wall as shown in Fig. 5. The hole of 70 mm diameter
should be slightly inclined towards the outside.
Cut a length of PVC tube, slightly shorter than the wall thickness and
with slightly slanted edges and insert it into the hole (Fig. 5).
Рис. 4
left-hand side Right side
Figure 4
Рис
.
5
pvc tube
slight slope
premises
wall
premises
wall cover
Figure 5
INDOOR UNIT INSTALLATION
You can lead the connecting tubes out of the indoor unit on both sides
as shown in Fig. 7. Choose the most appropriate side.
1. Tube connections on the right side
Pull the hose from the lower part of the chassis and connect the
drain tube.
Securely fasten the hose connection.
Connect the signal cable to the inner unit (do not connect the power
supply).
Place the connecting tubes, cable and drain hose as shown in Fig. 6,
then connect the drain hose to the drain port. The drain hose should
extend with a slight downward gradient. Bundle the connecting
tubes, cables and drain hose together with vinyl tape. Ensure a
sufficient space between the drain hose and the ground. Do not put
the drain tube into water or a ditch.
Table 1
Min. Tube
length
(m)
Maximum allowable tube
length without additional
refrigerant charge
(m)
Maximum allowable
tube length
Maximum allowable
mounting height
difference between the
indoor and outdoor units
Quantity of additional refrigerant
(g/m)
< 12000 BTU/h > 18000 BTU/h
2 5
models:
7/12 - 20 m,
18/36 - 25 m
models:
7/12 - 8 m,
18/36 - 10 m
20 30

Related product manuals