EasyManua.ls Logo

CHILLY 45-M - Page 25

Default Icon
32 pages
Print Icon
To Next Page IconTo Next Page
To Next Page IconTo Next Page
To Previous Page IconTo Previous Page
To Previous Page IconTo Previous Page
Loading...
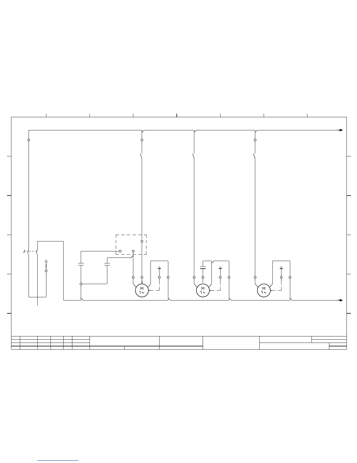
X1 L1
Q1
2
1
4
3
X1 PE
C1
X1 N
C2
K2
1 2
X1 1
1,80 kW 9,43 A
Kompressor
compressor
M1
a pc
X1 L1
Q2
3.2
1
2
5
2 X1 PE N
Q2
3.2
3
4
X1 3
0,25kW 1,10A
Lüfter
fan
M2
bl swbr
C3
4 X1 PE N
X1 L1
Q3
3.5
1
2
X1 5
0,6 kW 3,6 A
Pumpe
pump
M3
X1 PE N
L1
3.1
N
3.1
Betriebskondensator
run capacitor
Anlaufkondensator
start capacitor
Einspeisung
power supply
Sämtliche Leitungen ohne besondere Querschnitts-angabe sind H07V-K 2,5mm ²
all cables without numbers are H07V-K 2,5mm ²
K2
Anlaufrelais
start relais
A
B
2 3 4 5 6 7 81
2
E0012482
Chilly 45-M/USA-230/1/60
Hauptstromkreise
Main circuit
5
Zust. Änderung Datum Name
Datum
Bearb.
Gepr.
Norm
Ursp. Ers. f. Ers. d.
Zeichng.
Nr.
Typ
=
+
Blatt
Blattvon
A
B
C
D
A
B
C
D
E
F
2 3 4 5 6 7 8
E
1
Bruchhof
28.04.2015
Wiebe