EasyManua.ls Logo

CHILLY 45-M - Page 29

Default Icon
32 pages
Print Icon
To Next Page IconTo Next Page
To Next Page IconTo Next Page
To Previous Page IconTo Previous Page
To Previous Page IconTo Previous Page
Loading...
DATUM
bearbeitet
29.04.2015
geprüft
DATUM
ZEICHN. NR.
Blatt
DATUM
29.04.2015
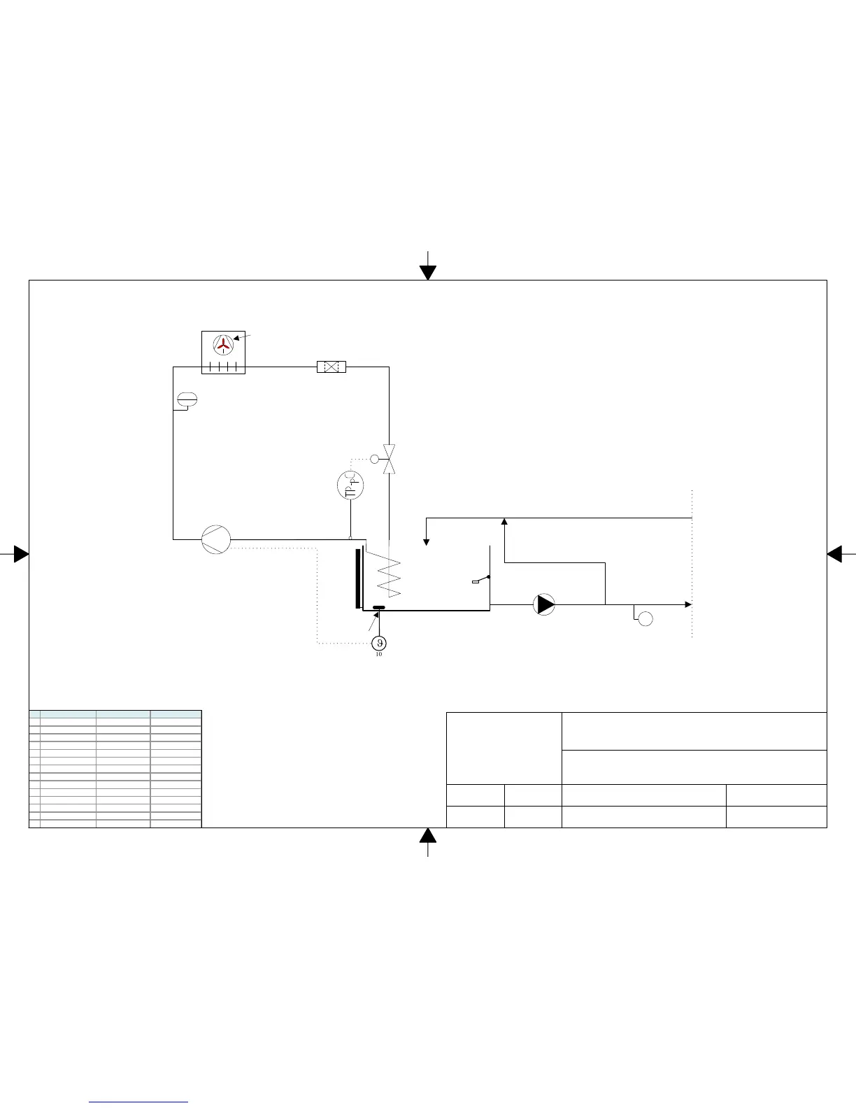
Fließschema/ hydraulic schema/ schéma hydraulique
Type: Chilly 15-45-M
F4016
1von 1
D.BruchhofD.Krieger
3
2
1
6
13
14
11
1
5
stetiger Bypass, continual bypass
bypass permanent
8
34
PZAH
4
Nr. dt. engl. franz.
1 Kompressor compressor compresseur
2 Verflüssiger condenser condenseur
3 Lüfter fan ventilateur
4 HD- Pressostat hp- switch pressostat HP
6 Trockner drier déshydrateur
8 Expansionsventil expansion valve détendeur
9 Verdampfer evaporator évaporateur
10 Thermostat thermostat thermostat
11 Fühler sensor sonde
13 Tank tank bac
14 Füllstandsanzeige fluid level indicator niveau visuel
15 Pumpe pump pompe
20 Druckschalter hp- controller pressostat hp
34 Schwimmerschalter float switch controleur niveau
PSH
20
9