EasyManua.ls Logo

CHINT TNDZ Series - Page 12

CHINT TNDZ Series
19 pages
Print Icon
To Next Page IconTo Next Page
To Next Page IconTo Next Page
To Previous Page IconTo Previous Page
To Previous Page IconTo Previous Page
Loading...
10
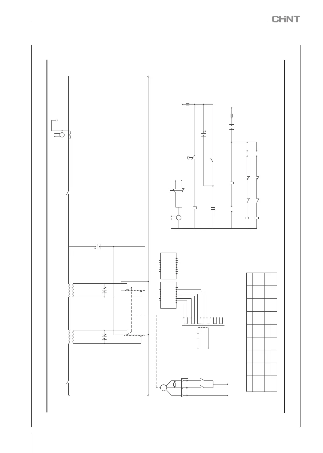
TNDZ TNSZ series pillar type AC automatic voltage regulators
Figure 9 Electrical Schematic Diagram of TNDZ
T1
A
101
102
QF1
N
000
QC QC
103
111
QC
T2
104
KM1
TA
PA1
810
800
741
742
a
731
732
N
000
M
XT
000
K2 K3
502 501
000
423
103
000
FU3 0.5A
220V
TC2
721
722
701
702
711
710
712
11V
17V
12V
12V
9V
9V
9V
731
732
741
742
751
752
PCB1 CONTROL BOARD
PCB1 SPARE CONTROL BOARD
422 000 451 511 423 521
1234 5678
422 000 451 511 423 521
1234 5678
PV1
COMPONENT NAME
COMPENSATION TRANSFORMER EMERGENCY STOP BUTTON
AC CONTACTOR RELAY TRAVEL SWITCH
FUSE
COMBINATION SWITCH
CONTROL BOARD
COMPONENT NAME CONTROL BOARD
MOTOR
CONTROL TRANSFORMER
CODE
CODE
CIRCUIT BREAKER
T1
SE
KM1
K1 K2
K3
ST1
ST2
QC
PCB1
QF1
FU1
FU2
VOLTAGE REGULATOR
T2
AP 1
CURRENT TRANSFORMER
TA1
PCB1
M
TC2
THE CORRESPONDENCE TABLE OF COMPONENT NAME AND CODE:
N
102
104
SB1
PUSHBUTTON
SB1
AMMETER
000
QF1
KM1
000
030
410
SE
EMERGENCY STOP
QC
K1
401
401
303
FU1 4A
QC
FU2 4A
500
423
423
423
111
511
521
512
522
ST1
ST2
513
523
K3
K2
K2
K3
000
451
K1

Related product manuals