EasyManua.ls Logo

Chroma 61504 - Page 43

Default Icon
134 pages
Print Icon
To Next Page IconTo Next Page
To Next Page IconTo Next Page
To Previous Page IconTo Previous Page
To Previous Page IconTo Previous Page
Loading...
Local Operation
3-17
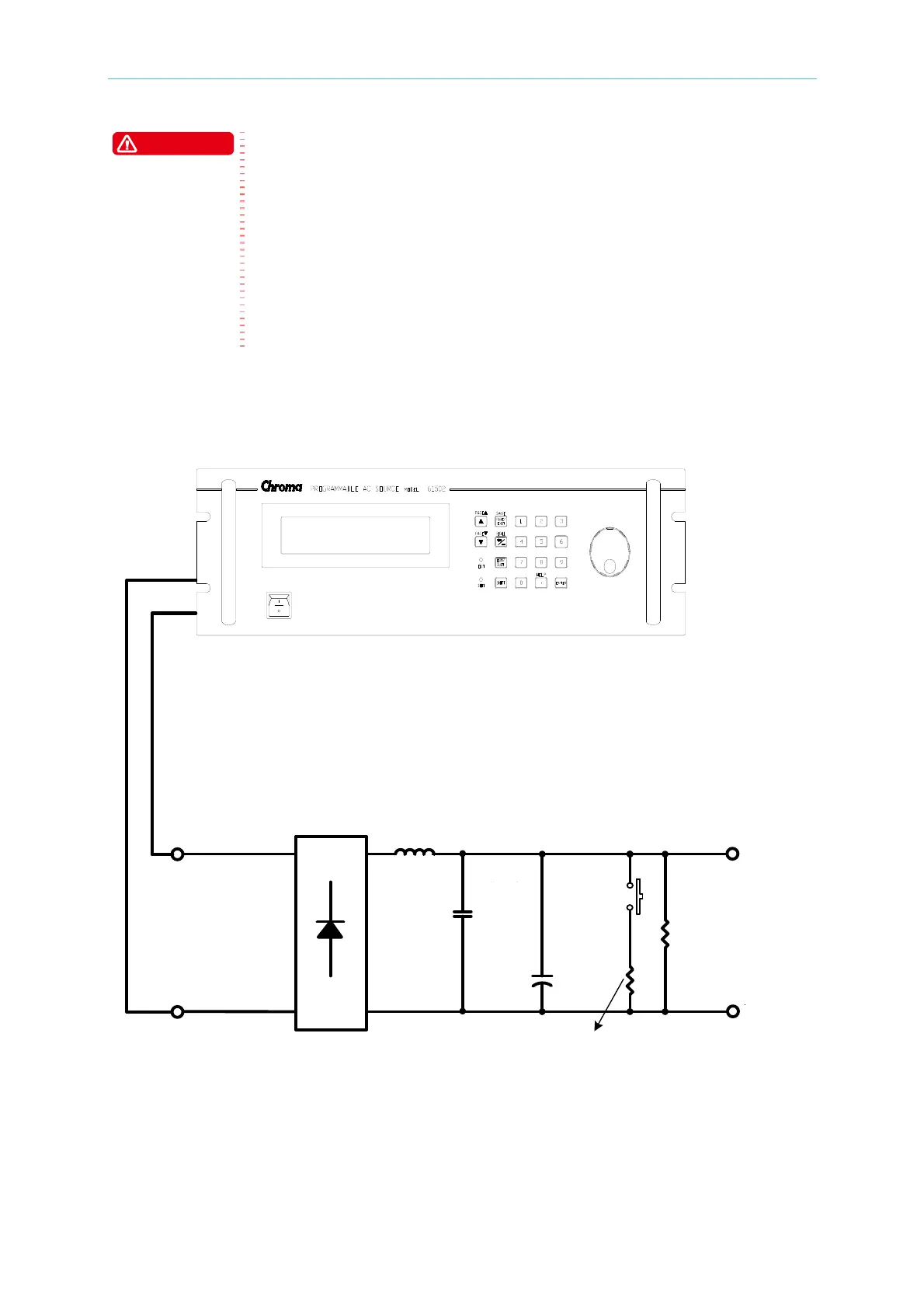
WARNING
Chroma 61500 AC source have AC/DC/AC+DC output function, at DC
output part, it’s still different from really DC source, the reason as below:
1. The big ripple noise at DC output, it is because of AC source have
no output capacitor.
2. The AC source output relay will switch off when the current over the
specification, it will cause output voltage interruption.
P.S. Normally the DC source will change to C.C. mode, then the
output voltage slow down to 0V.
3. Another major reason is, it cannot accept add/increase large
capacitor, more than 20uF at output side directly. It may cause
output unstable and damage AC source.
For solving above weak point, we suggest that add a special fixture for sure and protection.
-
+
150uH / 8uH
L
N
1uF/630V
C1
47K / 10W
Ro
+
470uF/450V
C2
Capacitor
SW
10K / 20W
R
Discharge
SW
L
Vo
Ω
Ω
Resistor of
Discharger
Fixture Board
Bridge
Diode
Output
DC OUTPUT
61500 AC SOURCE
Figure 3-2

Table of Contents

Related product manuals