EasyManua.ls Logo

Chroma 61504 - Page 50

Default Icon
134 pages
Print Icon
To Next Page IconTo Next Page
To Next Page IconTo Next Page
To Previous Page IconTo Previous Page
To Previous Page IconTo Previous Page
Loading...
Programmable AC Source 61501/61502/61503/61504 User’s Manual
3-24
The procedures of removing PARALLEL MODE:
1. Quit the output of AC source from MASTER. Set Vout = 0V.
2. Don't change the PARALLEL MODE to OFF, power off the MASTER and SLAVE by an
additional power switch at the same time.
To change parallel mode OFF to MASTER as below:
1. Move the cursor to the command line
of “PARALLEL MODE=”. PARALLEL MODE
= OFF_
2. Turn RPG to change the option from
OFF to MASTER, then press
ENTER. PARALLEL MODE = MASTER
After checking PARALLEL MODE
setting and RANGE setting, confirm it.
3. The cursor moves to the command line
of CHECK OK” automatically. CHECK OK = NO_
4. Turn RPG to change the option from
NO to YES, then press
ENTER. CHECK OK = YES
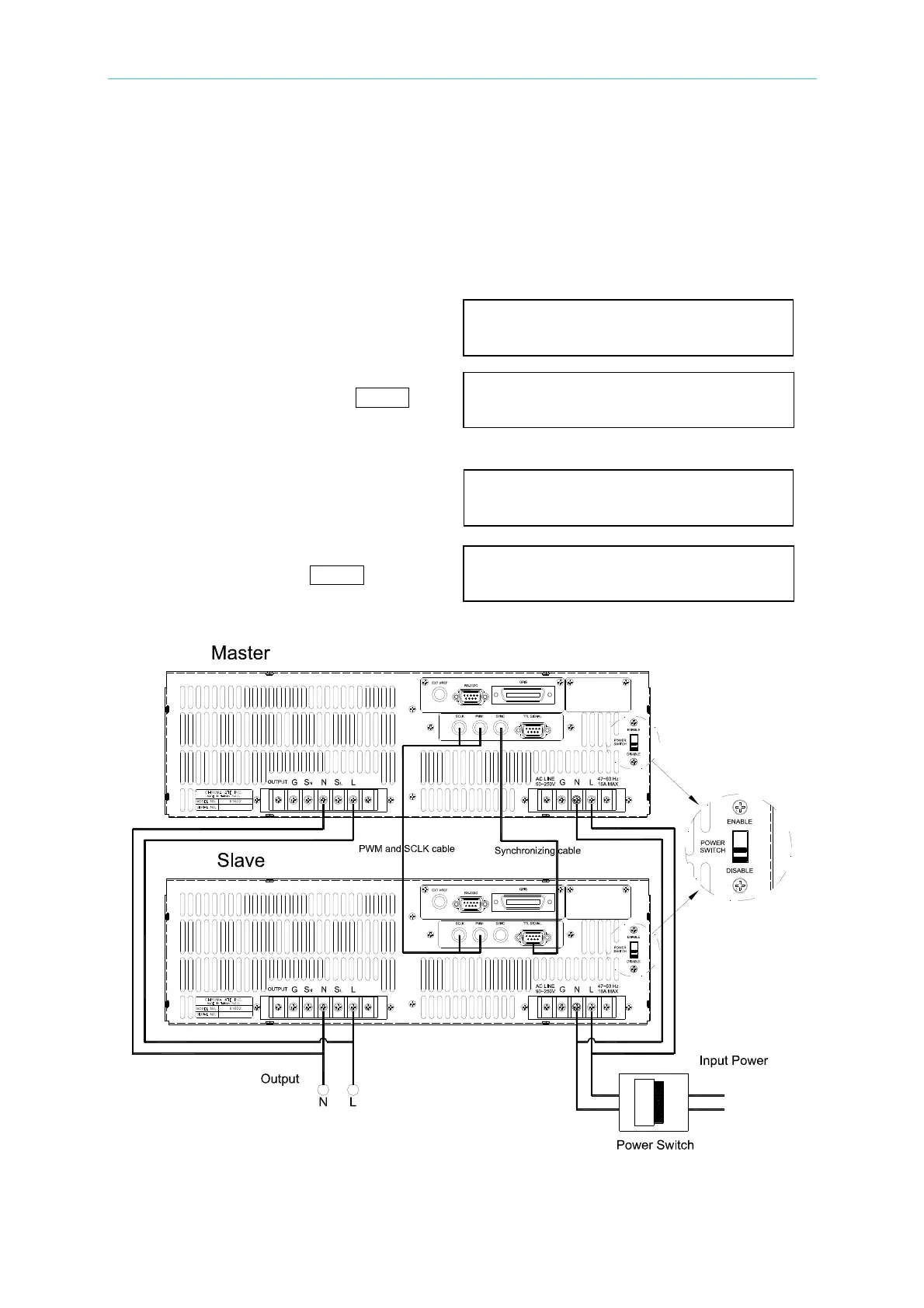
Figure 3-4

Table of Contents

Related product manuals