EasyManua.ls Logo

CITROEN CX - Page 61

CITROEN CX
394 pages
Print Icon
To Next Page IconTo Next Page
To Next Page IconTo Next Page
To Previous Page IconTo Previous Page
To Previous Page IconTo Previous Page
Loading...
'.0
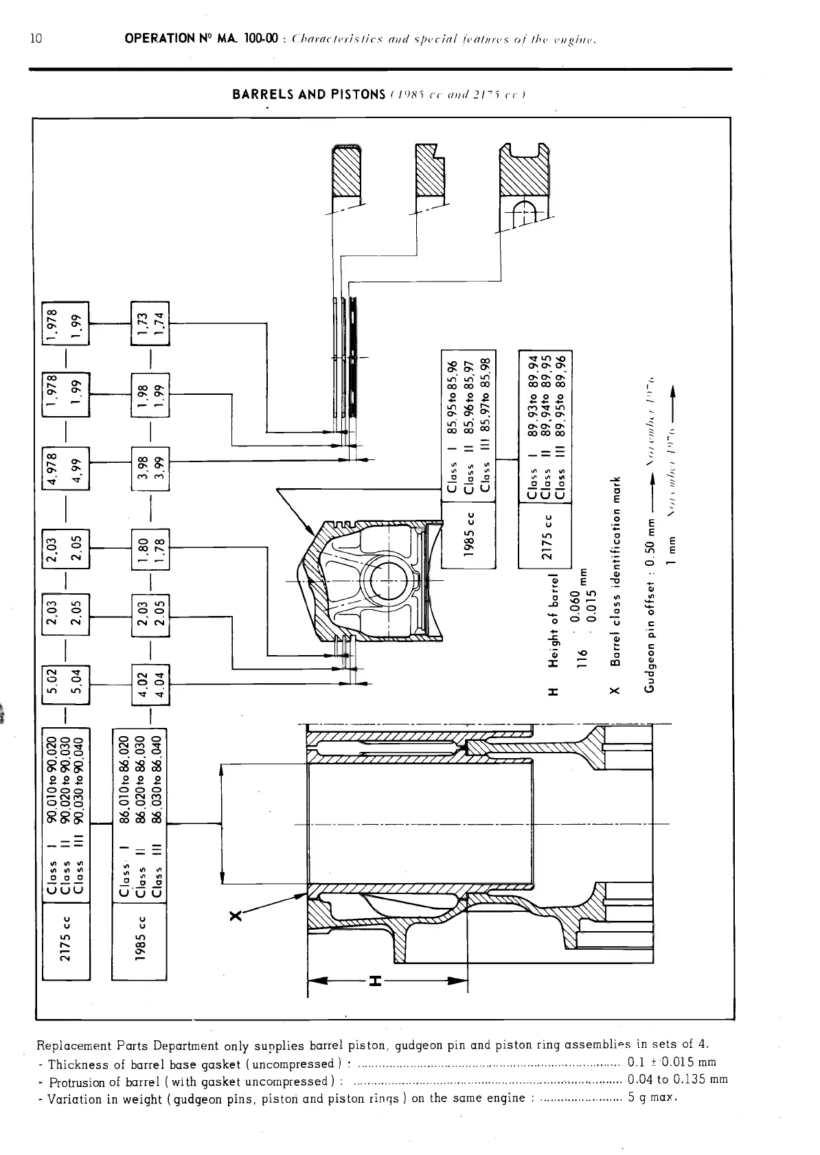
Class 90.020
5,02 2,03
2.03
2175 90.020 90.030
Class 90.030 90,040
5,04 2,05 2.05
loss 86.020
1985 Class 86.030
4.02 2,03 1.80
Glass 86.030t0 86.040
4. 04 2.05 1.78
4.978
4,99 1.99
3.99 1.99 1.74
1985 cc
Class 85.97t085,98
89,94
H Height of
barrel
2175 cc
89,95
89,96
116
0.060
0.015
X
Borrel class
identification mark
Gudgeon offset 0.50 mm
mm
0
0
z
090.0
96'68
H
66'68
04£6'68
66A 66'£
26'1 86£
661 66'P
8L6'1
III
0£098
0+01098
00.98°}010'98
170
06°+0£006
-°e .°å
0
..,
10 OPERATION
MÅ.
100-00
:
(/iaracfcrislics
(1)1(1 S/lcC/(1/
tca/ll,cS
t
Ilu!
(J/(///c.
..............................................................................
.................................................................................
.........................
BARRELS
AND PISTONS
{
c a;K/
215
cc
.1
.
1
!
I
___
___
___
Hl
_
_______
_
__
__
__
___
__
___
___
:1
//////////////'
'
--
-
8
2
1
-
__________
__
///////////////////J,
__
Q
-
-
.---------------- ---
00
o
________ ____________________ __
_ ___ __
3 ci
L)
ci
___'p
:
x____
;
_____
___ __ __
Replacement
Parts Department
only supplies
barrel
piston,
gudgeon
pm and
piston ring assemb1is
in sets of 4.
0.1
±0.015 mm
- Thickness of barrel base gasket
(uncompressed)
0.04 to 0.135
mm
- Protrusion
of
barrel
(with gasket
uncompressed)
5
g
max.
- Variation
in weight (gudgeon
pins,
piston
and
piston
rinrjs)
on the same engine
PDF compression, OCR, web-optimization with CVISION's PdfCompressor

Table of Contents

Related product manuals