EasyManua.ls Logo

CITROEN DS series - Page 6

CITROEN DS series
56 pages
To Next Page IconTo Next Page
To Next Page IconTo Next Page
To Previous Page IconTo Previous Page
To Previous Page IconTo Previous Page
Loading...
U
The Citroën Guide Fuel Injection: Electronic Fuel Injection 6
hardly ideal for any reasonable amount of time, several cor
-
rections have to be applied. Our air flow meter measures
the volume of the air but we would need to know the mass
of the air to calculate the required lambda ratio—remem
-
ber, colder air is denser, thus the same volume contains
more gas, requiring more fuel to provide the same mixture.
To accomplish this, the injection system uses an air temper-
ature sensor (ATS)—although on some systems it mea
-
sures not the air but the fuel-air mixture—and lengthens
the injector pulse width according to this input (except for
the case of the airflow meter using a heated wire, this one
takes the air temperature into account automatically, conse
-
quently, there is no need for correction).
It is not only the external
circumstances that require
special consideration. While
most of the time an engine
works under partial load, so it
makes sense to spare fuel by
basing on a relatively leaner
mixture across this range of
operation, cold start and
warm-up, modest decelera
-
tion and fully depressed throt
-
tle, idle speed all require dif
-
ferent treatment.
The position of the throttle
pedal is communicated to the
computer by a throttle posi
-
tion switch (TS) or throttle
potentiometer (TP). These
devices signal both fully open
and fully closed (idling) throt
-
tle positions. When the pedal
is fully depressed, the com
-
puter makes the mixture
richer to provide good acceler
-
ation performance.
Idle speed is more compli
-
cated: the throttle is closed,
so there has to be a bypass to
let the engine receive fuel to
run. In simpler systems this by
-
pass is constant (but manu
-
ally adjustable to set the cor
-
rect idle speed) in a warm en
-
gine, providing a fixed
amount of air, although the
computer can decide on a
varying amount of fuel to be
injected. Later systems gener
-
ally use a controlling device
changing the cross section of
the bypass, regulating the
amount of air coming
through (these systems often
have no facility to adjust the
idle speed, the computer
knows the correct revolution
and maintains it without any
help from mechanical de
-
vices). The controlling device
can either be an idle speed control valve (ISCV) or an
idle control stepper motor (ICSM). The first one can
only open or close the idle bypass, so any regulation must
be done by rapidly opening and closing it by the computer,
the second one can gradually change the bypass, hence
fine tuning is easier and smoother.
Just like the choke on carburetors, there is a complete
subsystem dealing with cold start and warm up, as the re
-
quirements under such circumstances are so different from
the normal operation that they cannot be fulfilled by the
regular control. The ECU monitors the ignition key
switch to learn when the engine is started, then looks for
the input from the coolant temperature sensor (CTS) to
distri-
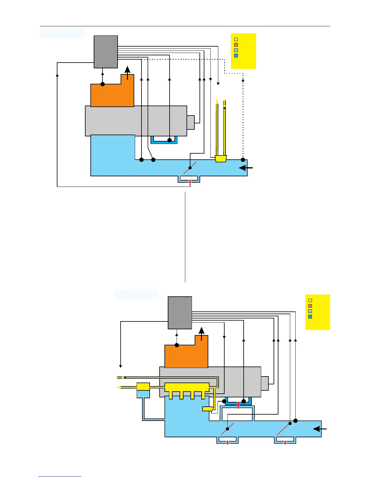
butor
O
S*
engine
ECU
fuel
pump
CTS
MAPATS* TP
throttle
ISCM
fuel
i
njector &
pressure
regulator
ATS*
fuel
exhaust
air
coolant
not present
in all systems
*
EFI MONOPOINT
distri-
butor
fuel
exhaust
air
coolant
not present
in all systems
*
OS*
engine
pressure
regulator
ECU
fuel
pump
CTS
AFS ATSTS
AAV
throttle
idle speed idle mixture
fuel
injectors
fuel rail
CSV*
EFI MULTIPOINT

Related product manuals