EasyManua.ls Logo

CLIVET CAS-41 - DIMENSIONS 82-102

CLIVET CAS-41
40 pages
Print Icon
To Next Page IconTo Next Page
To Next Page IconTo Next Page
To Previous Page IconTo Previous Page
To Previous Page IconTo Previous Page
Loading...
33
11 - TECHNICAL INFORMATION
106
282
44
340
1050
780
95
860
95
R
M
Rp
Mp
Ri
4
7
16
12
13
9
10
11
Rp
15
14
400 **
400 **
17
2
5
8
154 154
138
138
Mf
6
Mp
54
238
742
504
400 **
3
1050
1980
11
500
19
54 942
54
1
18
6
1000**
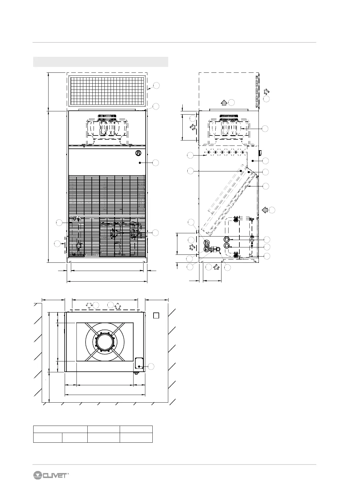
11.3 DIMENSIONSI 82 - 102
SIZE 82
Weigt kg 310
102
315
(1) COMPRESSOR
(2) ELECTRICAL PANEL
(3) ACCESS TO THE ELECTRICAL PANEL
(4) SUPPLY FAN
(5) DIRECT EXPANSION COIL
(6) PLATE EXCHANGER
(7) G4 AIR FILTERS
(8) WATER COIL (OPTIONAL) - RE-HEATING COIL (OPTIONAL)
(9) 3 WAYS-VALVE (OPTIONAL)
(10) ELECTRIC HEATERS (OPTIONAL)
(11) POWER INPUT
(12) HOT WATER HEAT EXCHANGER WATER OUTLET Ø 3 / 4 "
(13) HOT WATER HEAT EXCHANGER WATER INLET Ø 3 / 4 "
(14) EXCHANGER WATER OUTLET Ø1" 1/2 GAS
(15) EXCHANGER WATER INLET Ø1" 1/2 GAS
(16) CONDENSATE DISCHARGE
(17) FUNCTIONAL CLEARANCES
(18) WATER CONNECTION SIDE
(19) FRONT OUTLET PLENUM (OPTIONAL)
(R ) AMBIENT AIR INTAKE STANDARD
(M ) AIR SUPPLY STANDARD
(MP ) REAR AIR OUTLET (OPTIONAL)
(MF) FRONT AIR OUTLET (OPTIONAL)
(RP ) REAR AIR INLET (OPTIONAL)
(RI ) FLOOR AIR INLET (OPTIONAL)
(**) CLEARANCE ACCESS RECOMMENDED

Related product manuals