EasyManua.ls Logo

CLIVET ELFOSPACEWALL2 - Electronic Board Diagram; Component Legend for Electronic Board

CLIVET ELFOSPACEWALL2
41 pages
Print Icon
To Next Page IconTo Next Page
To Next Page IconTo Next Page
To Previous Page IconTo Previous Page
To Previous Page IconTo Previous Page
Loading...
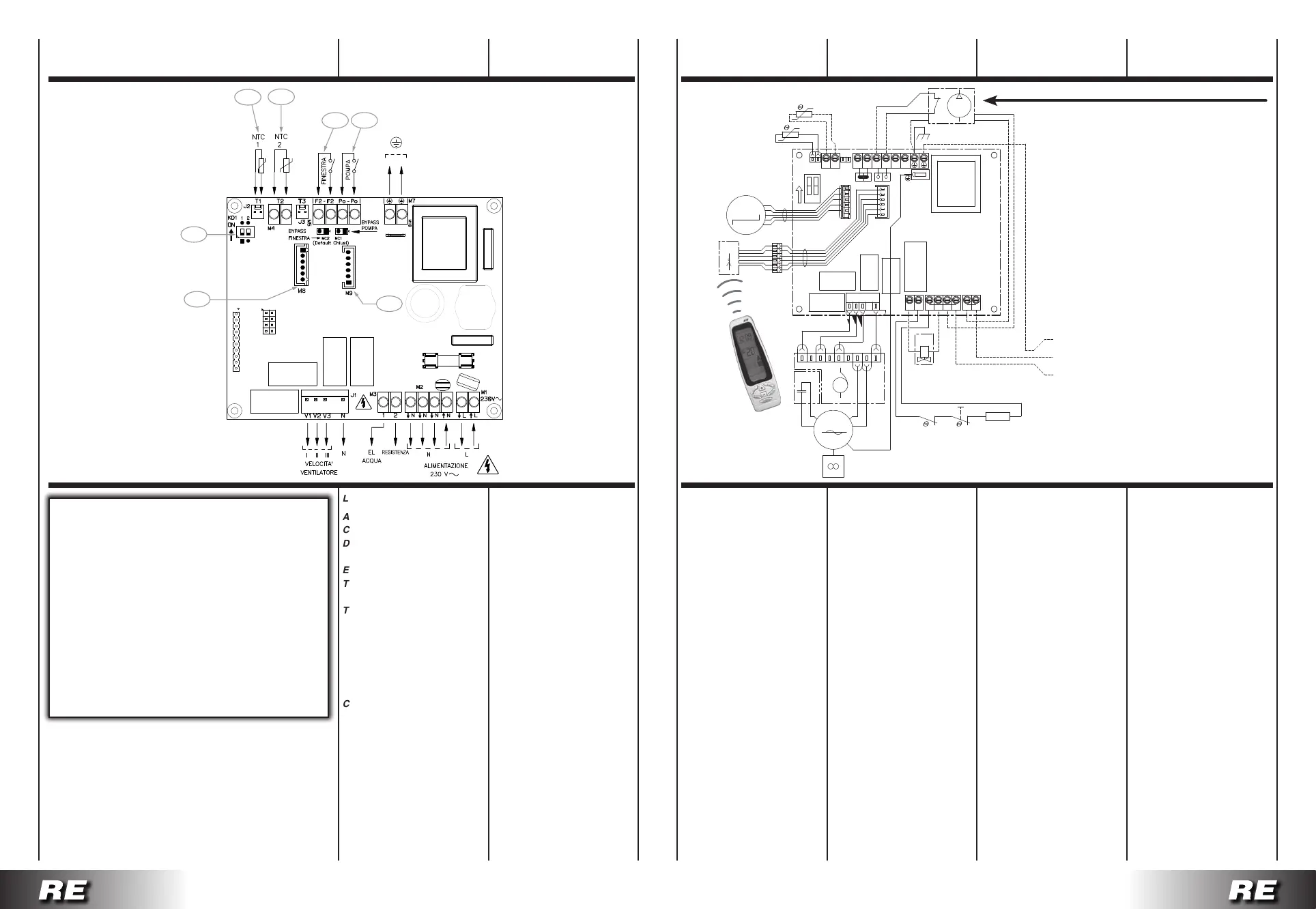
AT = Autotrasformatore
C1 = Condensatore
D1 = Dip Switch
di configurazione
E = Elettrovalvola
T1 = Sonda aria (posta
in ripresa dell’apparecchio)
T2 = Sonda Change-Over
(optional)
M1= Motoventilatore
M2 = Motore Flap
M8 = Connettore Flap
M9 = Connettore
ricevitore infrarossi
CF = F2-F2 Contatto pulito
finestra aperta / presenza
persona.
Se aperto l’unità si ferma
MP = Pompa
di evacuazione consensa
R1 = Resistenza elettrica
B2 = Termostato
di sicurezza
a riarmo automatico
B3 = Termostato
di sicurezza
a riarmo manuale
AT = Autotransformer
C1 = Capacitor
D1 = Configuration dipswitches
E = Water valve
T1 = Air probe (fitted
at the appliance intake)
T2 = Change-Over probe
(optional)
M1= Fan
M2 = Flap Motor
M8 = Flap Connector
M9 = Infra-red
receiver connector
CF = F2-F2 Window
open / person presence
voltage-free contact.
If open the unit stops
MP = Condensate pump
R1 = Electrical heater
B2 = Self reset
safety thermostat
B3 = Manual reset
safety thermostat
AT = Autotrasformateur
C1 = Condensateur
D1 = Dip Switch
de configuration
E = Électrovanne
T1 = Sonde air (placée
sur la reprise de l’appareil)
T2 = Sonde Change-Over
(option)
M1= Motoventilateur
M2 = Moteur Flap
M8 = Connecteur Flap
M9 = Connecteur
récepteur infrarouge
CF = F2-F2 Plot libre
fenêtre ouverte / détection
présence. S’il est ouvert
l’unité s’arrête
MP = Pompe d’evacuation
des condensats
R1 = Resistance électrique
B2 = Thermostat
à réarmement
automatique
B3 = Thermostat
à réarmement manuel
AT = Spartransformator
C1 = Kondensator
D1 = Konfigurations-Dip-Switch
E = Elektroventil
T1 = Lufttemperaturfühler
(am Ansaugteil des Geräts)
T2 = Change-Over-Fühler
(Option)
M1= Motorventilator
M2 = Flap-Motor
M8 = Flap-Anschluss
M9 = Anschluss
Infrarot-Empfänger
CF = F2-F2 Kontakt
offenes Fenster/Personal-
anwesen- heit. Wenn offen,
schaltet sich das Gerät aus
MP = Kondensatpumpe
R1 = Elektrischer Widerstand
B2 = Thermostat
mit automatischem
Reset
B3 = Thermostat
mit manuellem Reset
AT = Autotransformador
C1 = Condensador
D1 = Dip Switch
de configuración
E = Electroválvula
T1 = Sonda aire (colocada en
reanudación del aparato)
T2 = Sonda Change-Over
(opcional)
M1= Motoventilador
M2 = Motor Flap
M8 = Conector Flap
M9 = Conector
receptor infrarrojos
CF = F2-F2 Contacto limpio
ventana abierta / presencia
persona. Si está abierto
la unidad se para
MP = Bomba de evacuación
de condensados
R1 = Resistencia eléctrica
B2 = Termostato
de rearme automático
B3 = Termostato
de rearme manual
AT = Autotransformator
C1 = Condensator
D1 = Dimschakelaar configuratie
E = Elektromagnetische
T1 = Luchtsonde
(vlakbij het apparaat)
T2 = Sonde Change-Over
(optie)
M1= Motorventilator
M2 = Flapmotor
M8 = Flapconnector
M9 = Connector
infraroodontvanger
CF = F2-F2 Schoon contact
open raam / aanwezigheid
persoon. Indien open stopt
de eenheid
MP = Condensatwaterpomp
R1 = Elektrische weerstand
B2 = Thermostaat
met automatische reset
B3 = Thermostaat
met handmatige reset
LEGENDA: KEY: LÉGENDE: LEGENDE: LEYENDA: LEGENDE:
Remote
Control
K1
M1
MP
T1
T2
On-Off type
230Vac Valve Actuator
2
M9
M6
M4
M5
J3J2
WH
GN
V
3
N
M10
WH
OG
GN
C1
BK
RD
230V
YE
F2
P0 P0
10
0V
M7
M8
1
WH
B1
PE
N
L
V
1
V
2
6 speed
M
T1
M
50Hz
BK
BU
N
M2
L
N
N
N
N
21
J1
T2T1 T3 F2
N
PE
M1
M2
M3
LL
MC2
MC1
ON
GN
GNYE
E
R1B2 B3
Power Supply
230Vac 50Hz
CVPT
Board
CF
MP
D1
T2
T1
M8
M9
33 33A
SCHEDA
ELETTRONICA
ELECTRONIC
BOARD
CARTE
ELECTRONIQUE
ELEKTRONIK-
PLATINE
TARJETA
ELECTRÓNICA
ELEKTRONISCHE
FICHE
Accessoriononincluso
Notincludedaccessories
Accessoiresnoninclus
ZubehörnichtimPreisenthalten
Accessoriosnoincluidos
Accessoiresnietinbegrepen
Versione con TELECOMANDO
Version
with INFRA-RED REMOTE CONTROL
VersionavecTELECOMMANDE
INFRAROT-Version FERNBEDIENUNG
Versión
con MANDO REMOTO A INFRARROJOS
Versie
met INFRAROOD AFSTANDBEGIENING
(Stand-Alone)