EasyManua.ls Logo

CLIVET ELFOSPACEWALL2 - Integration with Electric Resistance; Resistance Coil Activation Logic

CLIVET ELFOSPACEWALL2
41 pages
Print Icon
To Next Page IconTo Next Page
To Next Page IconTo Next Page
To Previous Page IconTo Previous Page
To Previous Page IconTo Previous Page
Loading...
36 36A
V
V
3
M
M1
M
M1
M2
M3
LL
N
N
N
N
21
J1
T2T1 T3 F2F2
P0 P0
10
0V
M7
M8
1 2
M9
M6
M4
M5
J3J2
MC2
MC1
ON
GN
WH
GN
WH
1
2
V
N
M10
Modbus
Board
WH
OG
GN
C1
BK
RD
230V
YE
6 speed
T1
50Hz
BK
BU
N
M2
MC3
L
N
PE
230Vac
50Hz
B3B2 R1
E
T1
T2
L4
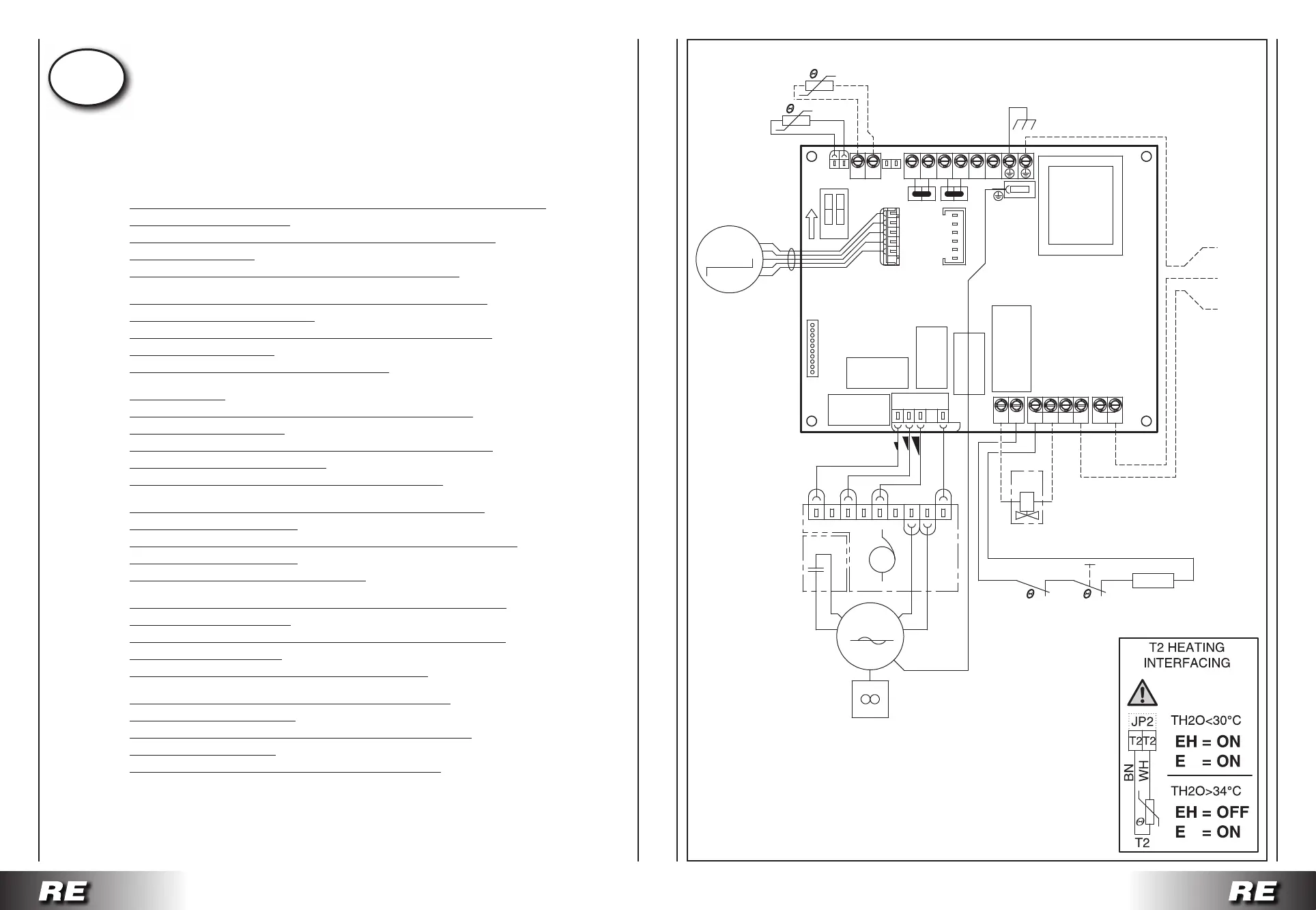
Funzionamentoconresistenzaelettricaqualeelementodiintegrazione.
Attivazionedellaresistenza
infunzionedellatemperaturaacqua-rilevamentodasondaT2.
N.B.:nonèpossibile
montarelasondaT3suFanCoilconresistenzaelettrica.
Operationwithelectricresistancecoilasintegrationelement.
Activationoftheresistancecoil
dependingonwatertemperature-detectionthroughT2probe.
N.B.: you can not mount
theT3probeonFanCoilwithelectricheater.
Fonctionnement
aveclarésistanceélectriquecommeélémentd’intégration.
Activationdelarésistance
enfonctiondelatempératuredel’eau-détectiondesondeT2.
N.B.:vousnepouvezpasmonter
lasondeT3surFanCoilaveclarésistanceélectrique.
BetriebmitelektrischemWiderstandalsIntegrationselement.
AktivierungdesWiderstands
inAbhängigkeitderWassertemperatur-ErfassungdesT2-Fühlers.
N.B.:MankanndieT3Probe
aufelektrischeFanCoilnichtmontieren.
Funcionamientoconresistenciaeléctricacomoparteintegrante.
Activacióndelaresistencia
enfuncióndelatemperaturadelagua–deteccióndelsensorT2.
N.B.:nosepuedemontar
lasondaT3enFanCoilconlaresistenciaeléctrica.
Functioneringmetelektrischeweerstandalsintegratie.
Activeringvandeweerstand
aandehandvanwatertemperatuur-metingdoormeterT2.
N.B.:ukuntdesondeT3
nietmonterenopFanCoilmetelektrischeweerstand.