EasyManua.ls Logo

Coleman 2302-B - Diagrama de Circuitos

Coleman 2302-B
41 pages
Print Icon
To Next Page IconTo Next Page
To Next Page IconTo Next Page
To Previous Page IconTo Previous Page
To Previous Page IconTo Previous Page
Loading...
37
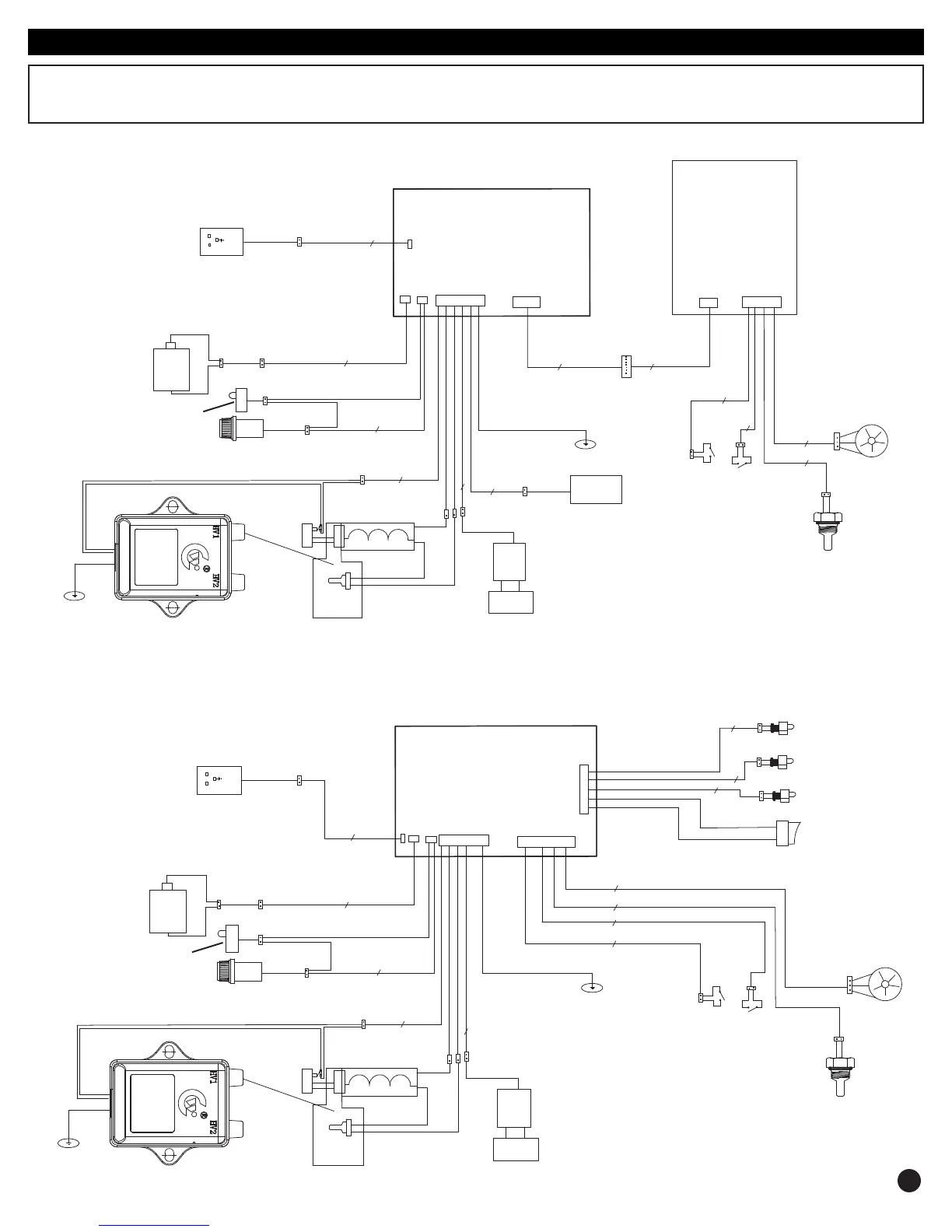
Diagrama de circuito
PRECAUCIÓN: Etiquete todos los cables antes de desconectarlos cuando realice el mantenimiento de los mandos. Los errores en el cableado pueden
causar la operación incorrecta y peligrosa. Verifique la operación correcta del producto después de realizarle el mantenimiento. Esta conexión es para pilas
de baja tensión o solo para corriente continua. No conectar a entradas de CA de 120 o 240voltios.
MODELO 2302-A
MODEL 2302-B
2
L
N
PASS
2
2
2
7
2
2
7
2
2
2
3
L
N
PASS
2
2
2
2
2
2
2
2
3
2
2
2
Detector de caudal de agua
Detector de caudal de agua
Indicador luminoso amarillo
Indicador luminoso verde
Indicador luminoso rojo
interruptor de alimentación
Pantalla PH01
Módulo de fuente de
alimentación PH01
Módulo de fuente de
alimentación PH01
Parte exterior del aparato
Parte exterior del aparato
Parte
exterior del
aparato
Parte
exterior del
aparato
Módulo
USB
Bomba
de agua
Bomba
de agua
Fusible
Fusible
Circuito de
protección por
inclinación
Circuito de
protección por
inclinación
Circuito de
protección por
sobrecalentamiento
Circuito de
protección por
sobrecalentamiento
Detector de temperatura
en la salida de agua
Detector de temperatura
en la salida de agua
Interruptor de
encendido
Interruptor de
encendido
Encendido de impulso
Interruptor de energía principal
Interruptor de energía principal
Encendido de impulso
Pila
recargable
Pila
recargable
Cargador de
pilas
Cargador de
pilas
Válvula
de gas
Válvula
de gas
Termopar
Termopar