EasyManua.ls Logo

Coleman TG8S - Cabinet and Duct Dimensions; Ratings & Physical; Electrical Data

Coleman TG8S
6 pages
Print Icon
To Next Page IconTo Next Page
To Next Page IconTo Next Page
To Previous Page IconTo Previous Page
To Previous Page IconTo Previous Page
Loading...
363658-CTG-C-0708
2 Johnson Controls Unitary Products
Nominal external static pressure is 0.50” w.c. at furnace outlet ahead of cooling coils.
Annual Fuel Utilization Efficiency (AFUE) numbers are determined in accordance with DOE Test procedures.
Wire size and over current protection must comply with the National Electrical Code (NFPA-70-latest edition) and all local codes.
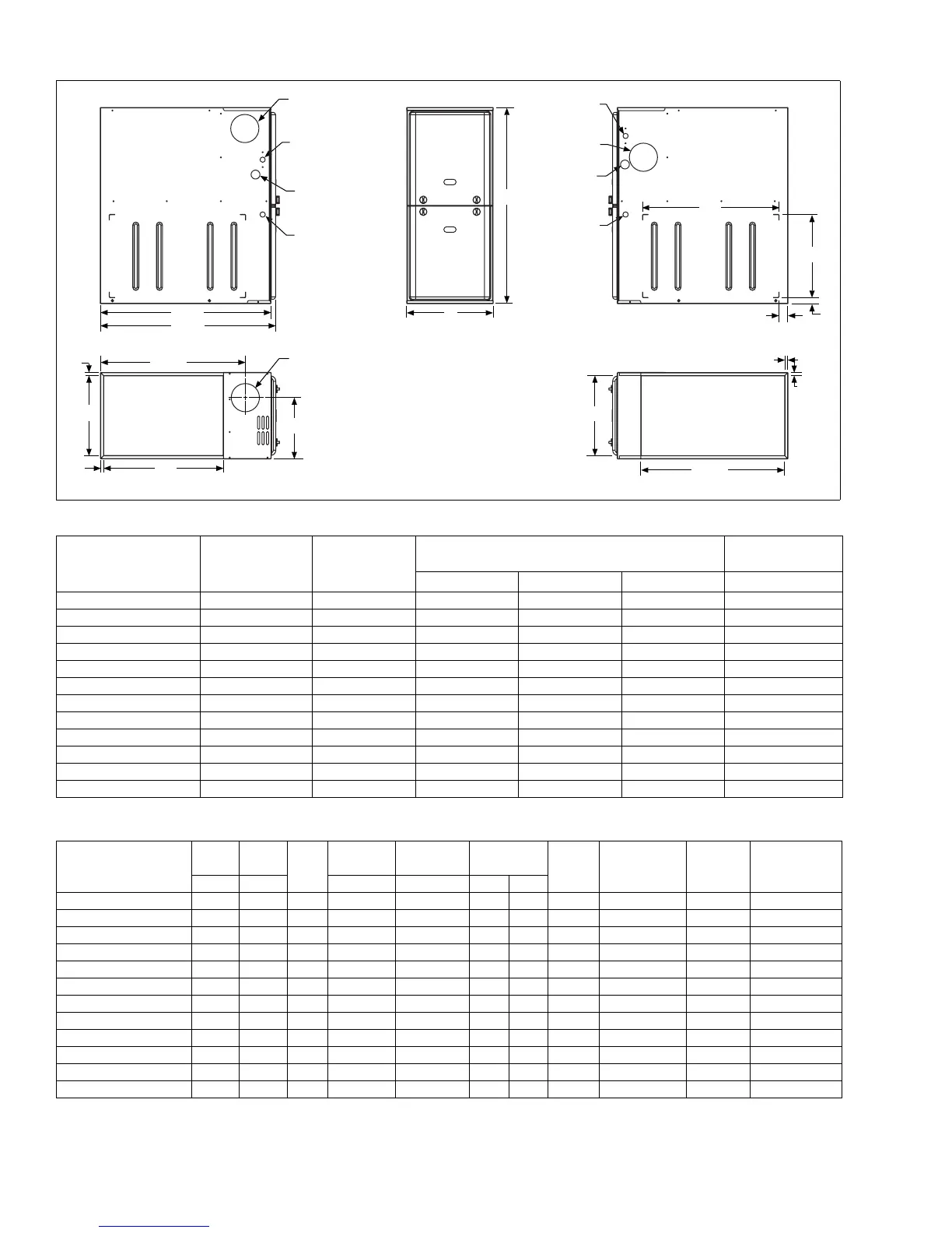
LEFT SIDE
RIGHT SIDE
.5”
.5”
RETURN END
B
24.25”
29.5”
28.5”
Electrical
Entry
Gas Pipe
Entry
Thermostat
Wiring
FRONT
14”
1”
1.5”
23”
SUPPLY END
C
24.38”
20”
.5”
B
Gas Pipe
Entry
Thermostat
Wiring
33”
A
.5”
Electrical
Entry
Vent Connection
Outlet
Vent
Connection
Outlet
4” Diameter
Outlet
Vent Connection
Cabinet and Duct Dimensions
Models
Nominal
CFM (m
3
/min)
Cabinet
Size
Cabinet Dimensions (Inches)
Approximate
Operating Weights
ABCLbs
TG(8,L)S040A08MP11 800 A 14 1/2 13 3/8 10.3 89
TG(8,L)S060A10MP11 1000 A 14 1/2 13 3/8 10.3 91
TG(8,L)S060A12MP11 1200 A 14 1/2 13 3/8 10.3 94
TG(8,L)S080B12MP11 1200 B 17 1/2 16 3/8 11.8 103
TG(8,L)S080C16MP11 1600 C 21 19 7/8 13.6 114
TG(8,L)S080C22MP11 2200 C 21 19 7/8 13.6 119
TG(8,L)S100B12MP11 1200 B 17 1/2 16 3/8 11.8 108
TG(8,L)S100C16MP11 1600 C 21 19 7/8 13.6 118
TG(8,L)S100C20MP11 2000 C 21 19 7/8 13.6 122
TG(8,L)S120C16MP11 1600 C 21 19 7/8 15.8 123
TG(8,L)S120C20MP11 2000 C 21 19 7/8 15.8 129
TG(8,L)S130D20MP11 2000 D 24 1/2 23 3/8 17.5 135
Ratings & Physical / Electrical Data
Models
Input Output
AFUE
Air Temp.
Rise
Max. Outlet
Air Temp
Blower
Blower
Size
Max
Over-Current
Protect
Total Unit
Amps
Min. wire Size
(awg) @ 75 ft
one way
MBH MBH °F °F HP Amps
TG(8,L)S040A08MP11 40 32 80.0 25-55 155 1/5 2.1 9 x 8 10 4.5 14
TG(8,L)S060A10MP11 60 48 80.0 25-55 155 1/3 3.8 9 x 8 10 6.0 14
TG(8,L)S060A12MP11 60 48 80.0 30-60 160 1/3 4.8 11 x 8 10 7.0 14
TG(8,L)S080B12MP11 80 64 80.0 35-65 165 1/3 4.8 11 x 8 10 7.5 14
TG(8,L)S080C16MP11 80 64 80.0 25-55 155 1/2 7.5 11 x 10 15 10.0 14
TG(8,L)S080C22MP11 80 64 80.0 25-55 155 1 14.5 11 x 11 20 16.0 12
TG(8,L)S100B12MP11 100 80 80.0 40-70 170 1/3 4.8 9 x 8 10 7.5 14
TG(8,L)S100C16MP11 100 80 80.0 35-65 165 1/2 7.5 11 x 10 15 10.0 14
TG(8,L)S100C20MP11 100 80 80.0 25-55 155 1 14.5 11 x 11 20 17.0 12
TG(8,L)S120C16MP11 120 96 80.0 40-70 170 1/2 7.5 11 x 10 15 10.0 14
TG(8,L)S120C20MP11 120 96 80.0 30-60 160 1 14.5 11 x 11 20 17.0 12
TG(8,L)S130D20MP11 130 104 80.0 35-65 165 1 14.5 11 x 11 20 17.0 12

Related product manuals