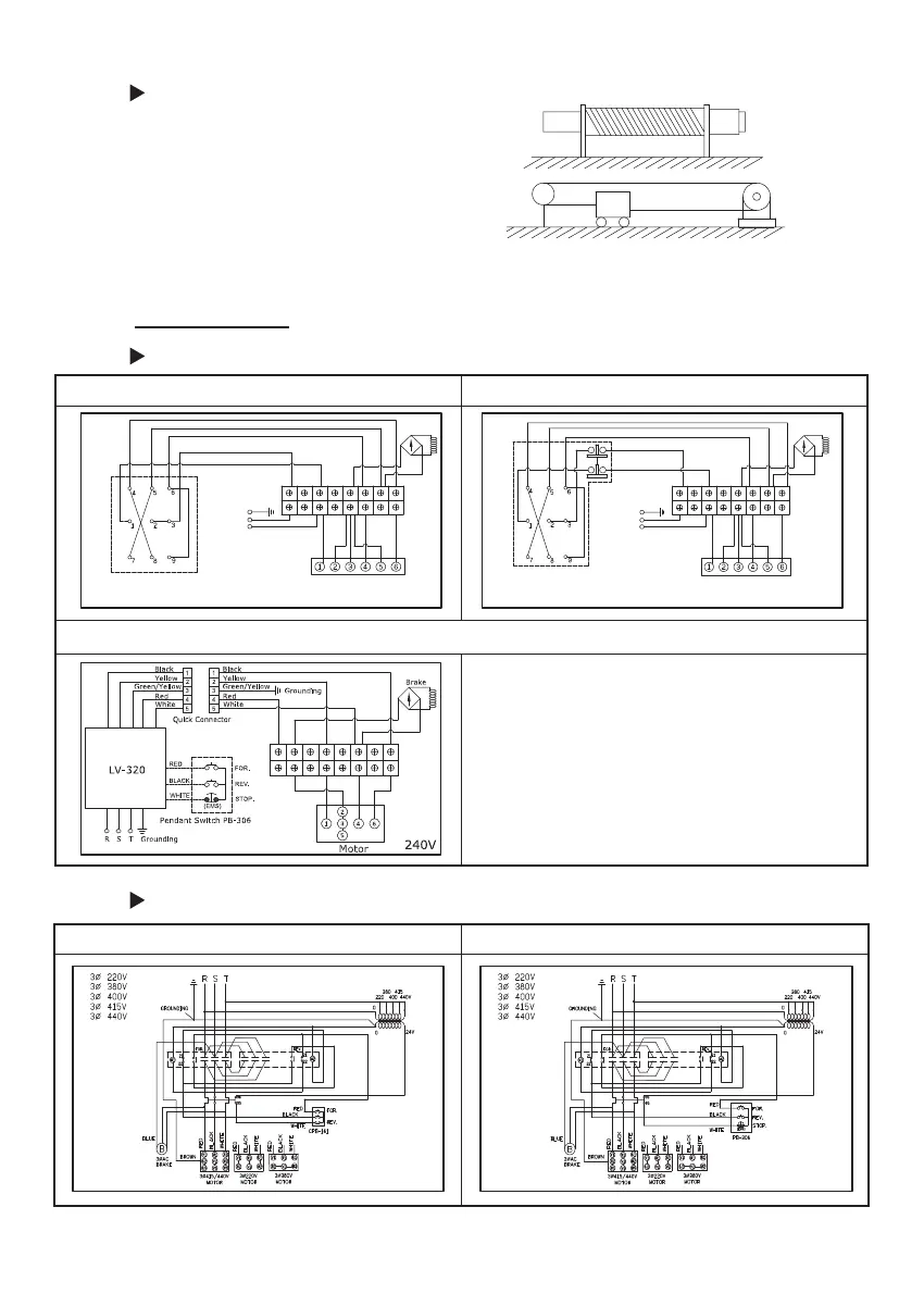
VII. Wiring Diagram
14
CP-200/250/300, CWG-10077 Winches
Standard Version
Low voltage control assembly and Switch with an emergency stop button
Switch with an emergency stop button
Blue
Brown
Gray
Red
Black
Up
Down
Brown / Red
Blue / Black
Power Supply
Motor
Brake
Grounding
Pendant Switch CPB-213
220/230/240V
220/230/240V
Motor
Blue
Brown
Gray
Red
Black
Brown / Red
Blue / Black
Power Supply
Up
Down
Brake
Emergency Stop
Grounding
Pendant Switch PB-331
CP-750T Winch
Standard Version Switch with an emergency stop button
The horizontal load reversing allows 2 pieces
of wire rope to be spooled onto the first layer
of grooved drum. As one rope winds onto the
drum and the other rope winds off an equal
amount. It is important to know how each of
the wire rope will be coming off of the drum, that allows the correct grooving to be provided.
Horizontal Load Reversing