EasyManua.ls Logo

Comprag A-Series - Электрическая Схема

Comprag A-Series
104 pages
Print Icon
To Next Page IconTo Next Page
To Next Page IconTo Next Page
To Previous Page IconTo Previous Page
To Previous Page IconTo Previous Page
Loading...
84 Версия 1.2
Нагрузка:
С увеличением потребления воздуха, давление в пневмосети падает до минимального
установленного предела, электромагнитный клапан (6) возобновляет регулировку.
Управляющий воздух подаваться на пружину (3). Заслонка (2) открывается.
Разгрузочный клапан (5) закрывается. Всасывание воздуха возобновляется.
Компрессор переходит в режим 100% нагрузки.
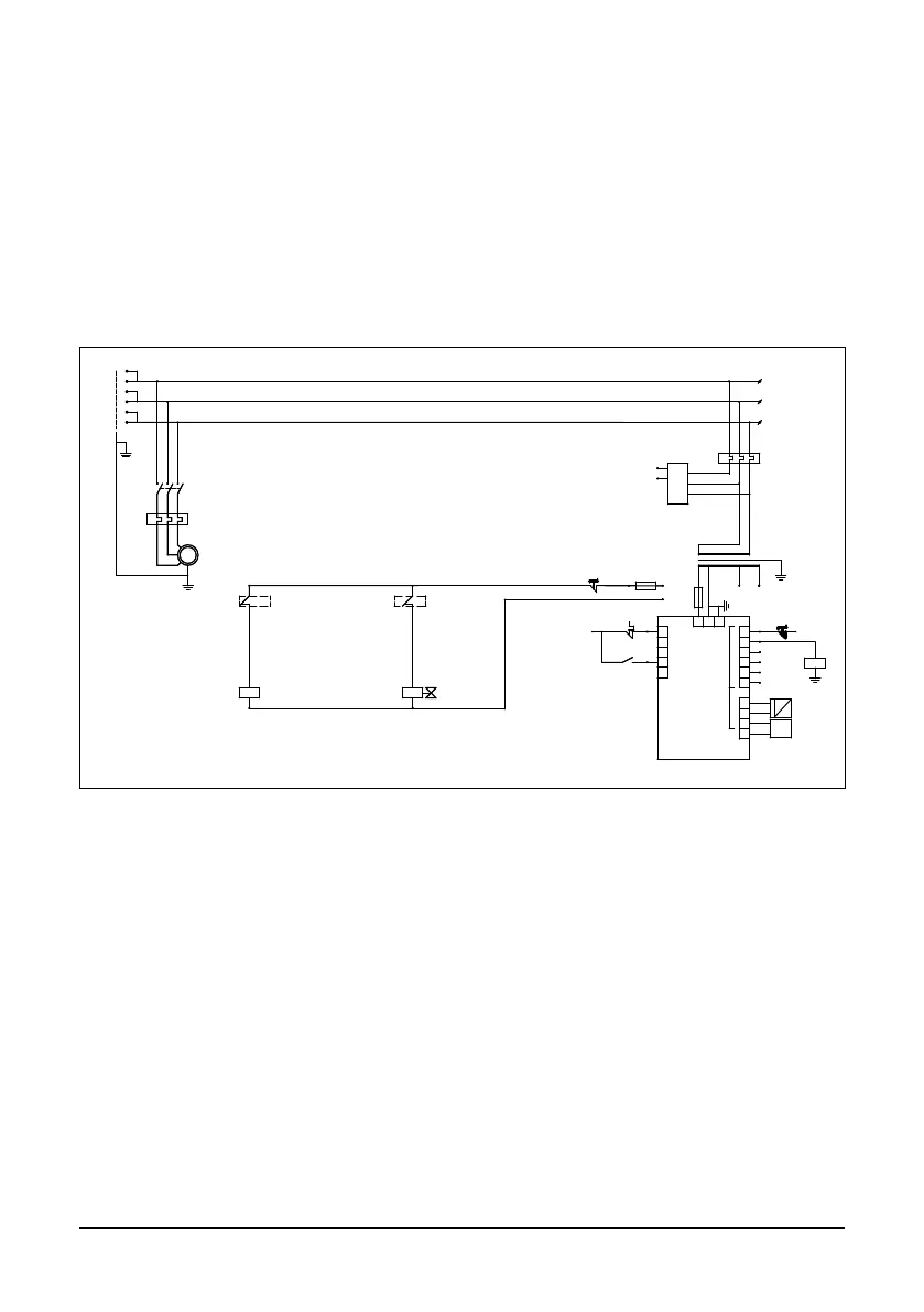
2.6 Схема электрическая принципиальная
3~~380
1
2
3
4
5
6
1
2
3
4
1
2
1
2
3
4
5
Х01
Х02
Х03
204
203
205
207
1
2
3
1
2
3
QS
102
302
11
22
33
MKC1
11
22
33
SB1.1
301
380v
24v
F1
200
220v
202
101
102
P
I
T
MKC1.1
TN1.1
Х04
302
401
K 5
103 102
SB1.2
R
TR
К1.1
1
203
204
209
200
102
203 202
2A
201
200
YA
Re1
K1
K 5.1
1
2
2
3
3
TN1
М1
Рис. 2.6.1. Схема электрическая A07.., AR07.., ARD07.*
*Для компрессоров серии RDX с рефрижераторным осушителем смотрите документацию
на сам осушитель.

Table of Contents

Related product manuals