EasyManua.ls Logo

Cookson FCA - Wire Routing

Default Icon
16 pages
Print Icon
To Next Page IconTo Next Page
To Next Page IconTo Next Page
To Previous Page IconTo Previous Page
To Previous Page IconTo Previous Page
Loading...
8
M100 FireGard
TM
Chain & Crank
02/11
FIRE ALARM CONNECTION INSTRUCTION
- For “Indoor Dry” location use only. All wiring must satisfy the most current version of
NFPA72 – National Fire Alarm Code and the National Electric Code.
- 18-gauge wire is recommended.
Disconnect power supply before servicing.
1. ELECTRICAL CONNECTIONS
Installation of all wiring and connections shall be performed in accordance with, but not limited to,
the latest NFPA, U.L. and N.E.C. standards. In addition, all installations subject to Canadian
standards shall be performed in accordance with the Canadian Electrical Code, Part I, with respect
to wiring material, wiring gauge related to power capacity requirements and circuit length and
wiring methods.
2. Verify voltage rating of release device to power source being utilized.
3. Connect power and alarm connection to the unit.
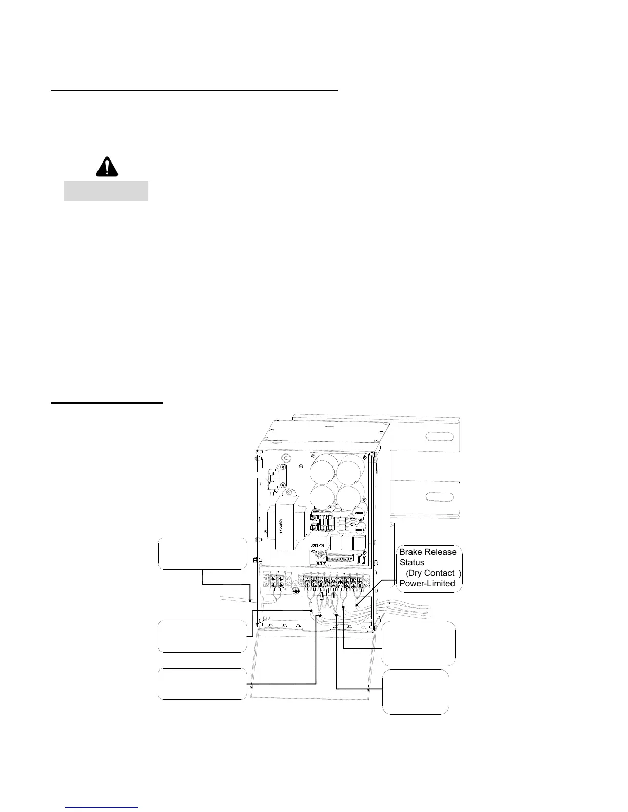
WIRE ROUTING
Input 24VAC/VDC
Non-power Limited
115VAC Input Power
Non-power Limited
Dry Contact Alarm
Power-Limited
Close Button
(Dry Contact)
(N/C)
Power-Limited
Alarm Door Close
Warning, 24VDC
Power-Limited,
Supervised
B
r
a
k
e
R
e
l
e
a
s
e
S
t
a
t
u
s
D
r
y
C
o
n
t
a
c
t
P
o
w
e
r
-
L
i
m
i
t
e
d
L
1
L
2
1
2
3
4
5
6
7
8
9
sw
WARNING