EasyManua.ls Logo

CORAB ENCOR - Mounting EC 395;405 Wp Modules; Short Side Terminal Mounting; Long Side Terminal Mounting; Long Side Screw Mounting

CORAB ENCOR
9 pages
Print Icon
To Next Page IconTo Next Page
To Next Page IconTo Next Page
To Previous Page IconTo Previous Page
To Previous Page IconTo Previous Page
Loading...
Installation manual
and safe operation instructions
of photovoltaic modules ENCOR
[
Does not apply to BIFACIAL modules]
Page
7
of
9
corab.pl
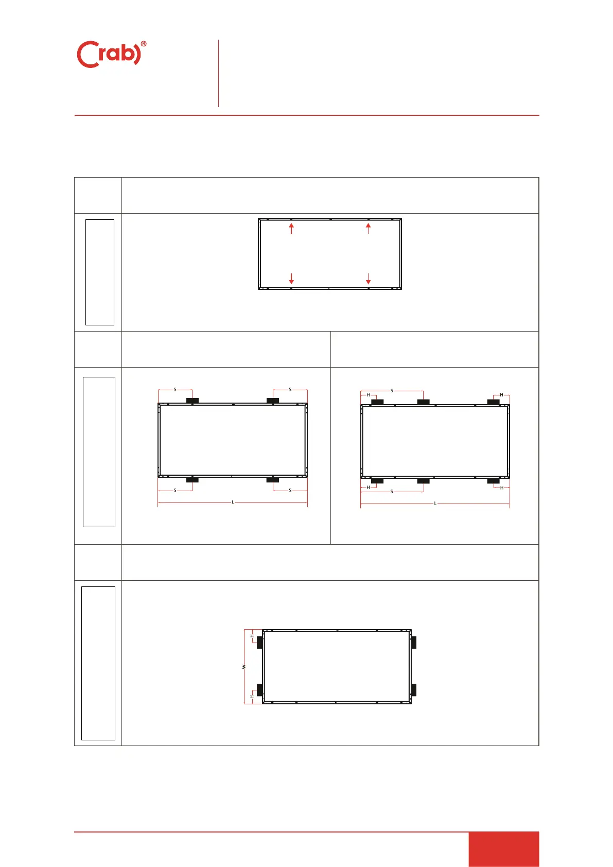
Mounting of modules EC 395M-10-108FB 395Wp and EC 405M-10-108B 405Wp
Clamp position /
Installation
method
Test load: positive pressure 5400 Pa/ negative pressure 2400 Pa
Design load: positive pressure 3600 Pa/ negative pressure 1600 Pa
Test load: positive pressure 5400 Pa/ negative pressure 2400 Pa
Design load: positive pressure 3600 Pa/ negative pressure 1600 Pa
Test load: positive pressure 5400 Pa/ negative pressure 3600 Pa
Design load: positive pressure 3600 Pa/ negative pressure 2400 Pa
(1/5L-50)<S<(1/5L+50)
(1/2L-80)<S<(1/2L-30)
(1/6L-50)<H<(1/6L+50)
Test load: positive pressure 2400 Pa/ negative pressure 1600 Pa
Design load: positive pressure 1600 Pa/ negative pressure 1067 Pa
0<H<1/4W
Fasten to the long side
/ Mounting method
with screws
.
Fasten to the long side./
Mounting method
with terminal and
middle clamps.
Fasten to the short side
/ Mounting method
with terminal and middle
clamps.