EasyManua.ls Logo

CORNING ICH-02P - Grounding Armored Cable; Feeder Cable Routing

Default Icon
6 pages
Print Icon
To Next Page IconTo Next Page
To Next Page IconTo Next Page
To Previous Page IconTo Previous Page
To Previous Page IconTo Previous Page
Loading...
Standard Recommended Procedure 003-1069-AEN | Issue 1 | July 2019 | Page 4 of 6
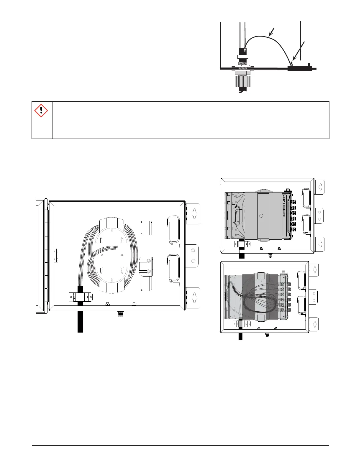
7. Grounding armored cable
Step 1: Use (1) HDWR-GRND-KIT per armored cable. Follow
instructions provided with kit to properly ground the
cable.
Step 2: Run ground wire from clamp on cable to ground
stud.
8. Feeder Cable Routing
Step 1: Route bers around radius guides.
Step 2: Install buer tube fanout bodies, if using CCH adapter panels
Step 3: Remove dust caps, clean, and mate connectors.
Ground
Stud
Ground Wire
KPA-2179
CAUTION: Fiber optic cable is sensitive to excessive pulling, bending, and crushing forces. Consult the cable
specication sheet for the cable you are installing. Do not bend the cable more sharply than the minimum
recommended bend radius. Do not apply more pulling force to the cable than specied. Do not crush the cable
or allow it to kink. Doing so may cause damage that can alter the transmission characteristics of the cable; the
cable may have to be replaced.
TPA-6576
CCH splice cassette
CCH adapter panel