EasyManua.ls Logo

Cramer CBC - Page 7

Cramer CBC
12 pages
Print Icon
To Next Page IconTo Next Page
To Next Page IconTo Next Page
To Previous Page IconTo Previous Page
To Previous Page IconTo Previous Page
Loading...
7
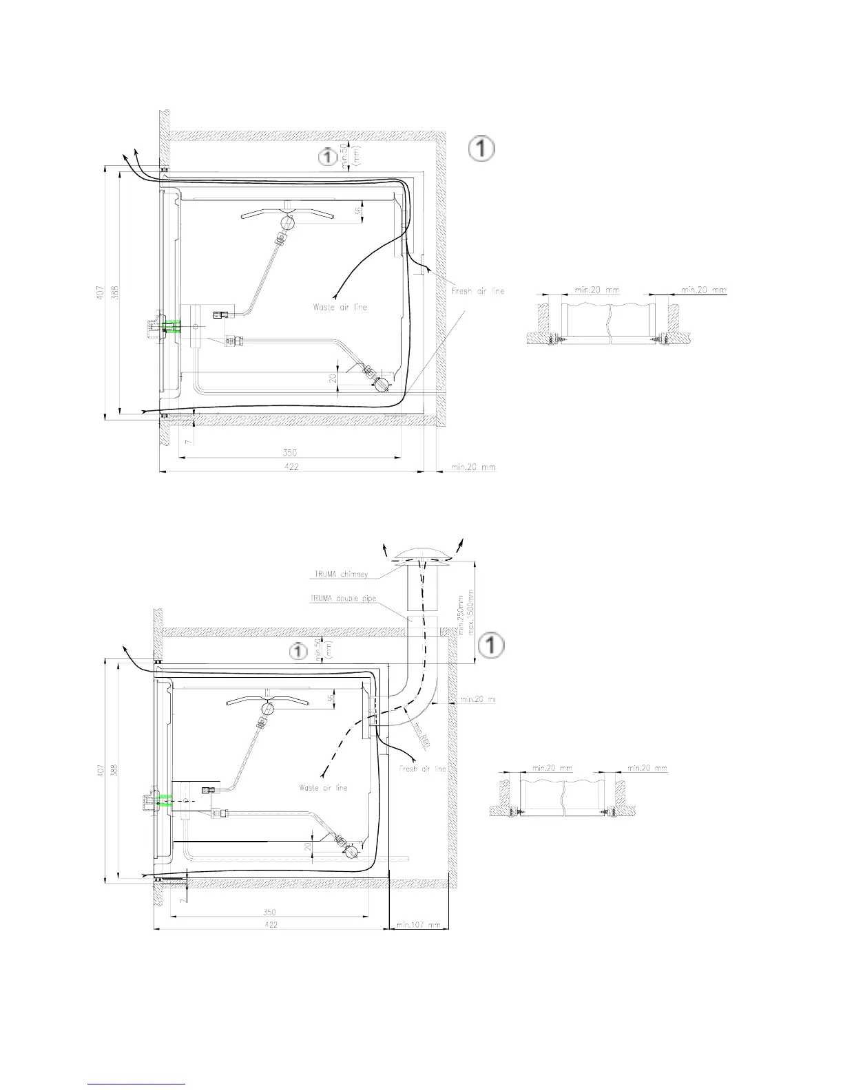
Fig 3
Installation of oven without chimney, front flue of waste gas.
Fig 4
Installation of oven with chimney horizontal – vertical.
Minimum distamce from combustible
areas backward and towards right and
left sides: 20 mm.
Minimum distance from combustible
areas upward: 50 mm.
Section: the front side horizontally
with building in (see installation
drawing No. 39986)
Minimum distamce from
combustible areas backward and
towards right and left sides: 20 mm.
Minimum distance from combustible
areas upward: 50 mm.
Section: the front side horizontally
with building in (see installation
drawing No. 39986)