EasyManua.ls Logo

Crestron M201923002 - Install the Security Bracket (Optional)

Crestron M201923002
226 pages
Print Icon
To Next Page IconTo Next Page
To Next Page IconTo Next Page
To Previous Page IconTo Previous Page
To Previous Page IconTo Previous Page
Loading...
118 TSW-70 Series Product Manual Doc. 8550E
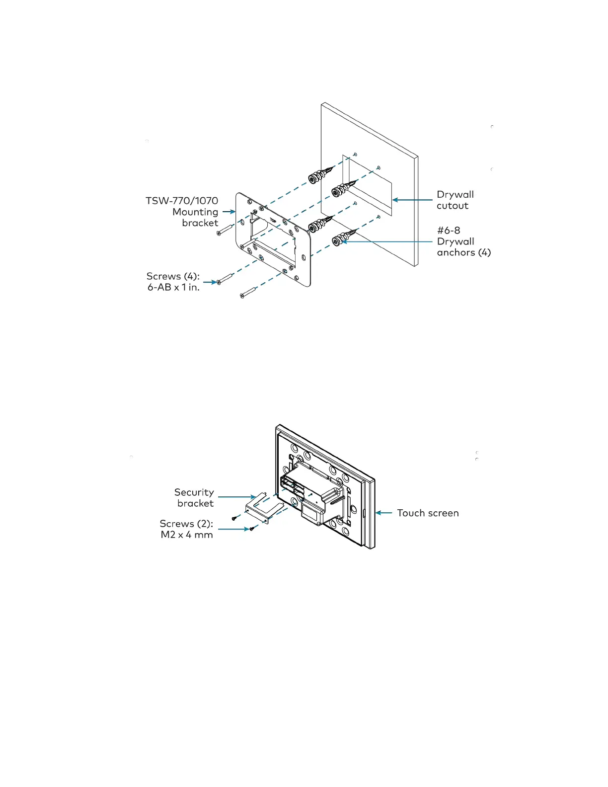
5. Attach the mounting bracket to the anchors using the four 6-ABx 1in. screws as shown in
the image below.
Install the Security Bracket (Optional)
The included security bracket may be attached to the touch screen to prevent unauthorized
removal after installation. The security bracket snaps into place behind the mounting bracket so
that the touch screen cannot be removed without using the included release key.
Use the two M2 x 4 mm screws to attach the security bracket to the touch screen rear housing as
shown in the following illustration.

Table of Contents

Other manuals for Crestron M201923002

Related product manuals