EasyManua.ls Logo

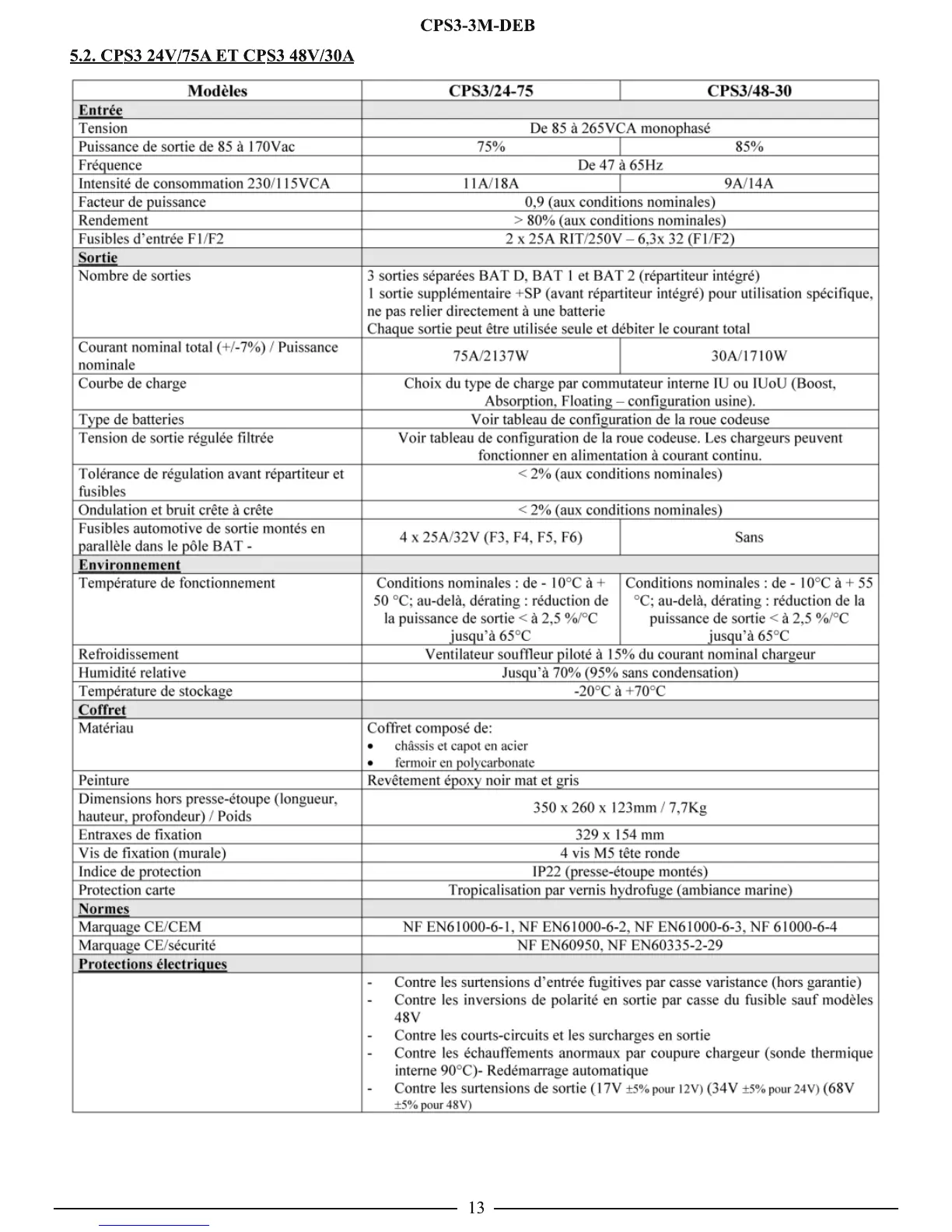
Cristec CPS3 12V/80A - Specifications: 24 V;75 A and 48 V;30 A Models

Cristec CPS3 12V/80A
76 pages
Print Icon
To Next Page IconTo Next Page
To Next Page IconTo Next Page
To Previous Page IconTo Previous Page
To Previous Page IconTo Previous Page
Loading...

Other manuals for Cristec CPS3 12V/80A

Related product manuals