EasyManua.ls Logo

Cub Cadet 417 - 416 Bucket

Cub Cadet 417
43 pages
To Next Page IconTo Next Page
To Next Page IconTo Next Page
To Previous Page IconTo Previous Page
To Previous Page IconTo Previous Page
Loading...
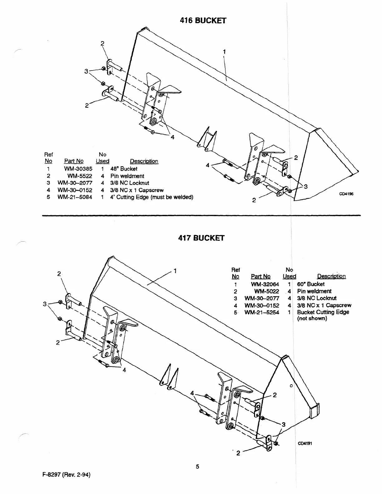
416 BUCKET
Ref
No
No
Part
No
Used
Description
1 WM-30385 1 48" Bucket
2
WM-5522
4
Pin
weldment
3
WM-30-2077
4
3/8 NC Locknut
4
WM-30-0152
4 3/8 NC x 1 Capscrew
5
WM-21-5084
1
4' Cutting
Edge
(must be welded)
C04196
417 BUCKET
Ref
Nq
~
Part
No
Used
Description
1 WM-32064 1
so•
Bucket
2
WM-5022
. 4
Pin
weldment
3
WM-30-2077
4 3/8
NC
Locknut
4
WM-30-0152
4 3/8
NC
x 1 Capscrew
5 ·
WM-21-5254
1 Bucket Cutting Edge
(not shown)
C04191
5
F-8297
(Rev.
2-94)

Related product manuals