EasyManua.ls Logo

CyClone SV130 - Ventilator Control

CyClone SV130
34 pages
Print Icon
To Next Page IconTo Next Page
To Next Page IconTo Next Page
To Previous Page IconTo Previous Page
To Previous Page IconTo Previous Page
Loading...
13SV130 SV150 Installation - English
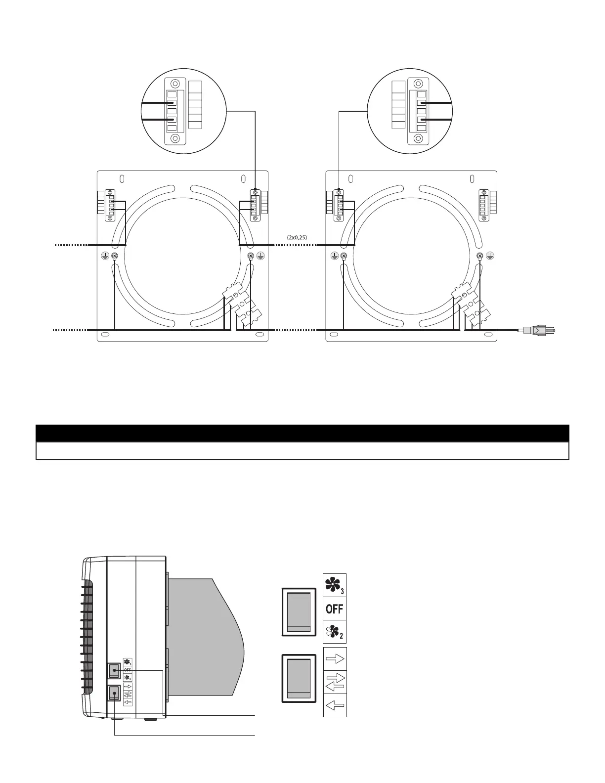
CONNECTION OF SEVERAL VENTILATORS IN SERIES
(BACKSIDE VIEW, THE TERMINAL BLOCK IS SHOWN SCHEMATICALLY)
Input
L
G
-
D
N
Output
L
G
-
D
N
Ventilator no.2
Input
L
G
-
D
N
Output
L
G
-
D
N
Input
L
G
-
D
N
Output
L
G
-
D
N
Ventilator no.1
Control cable
2xAWG23
Control cable to the
next ventilator
Power cable
3G AWG18
(3G 1,0)
Power cable to the
next ventilator
1~100-230 V / 50-60 Hz
CONNECTION OF MORE THAN 10 VENTILATORS IN SERIES
In case of connection of more than 10 ventilators, power is supplied to the 11th ventilator not from the previous ventilator but from power mains (L and N
terminals).
The control signals G and D from the 10th ventilator are transferred through the cable 2xAWG23 (2х0,25).
The ventilators no. 12…20 are connected to the ventilator no. 11 in the same way as the ventilators no. 1…10.
All the connected ventilators are controlled with the ventilator no. 1.
ALL THE VENTILATORS CONNECTED IN SERIES MUST BE GROUNDED!
WARNING
VENTILATOR CONTROL
The ventilator is operated with a remote control or the buttons on the ventilator casing, see the gure below.
The operation buttons on the ventilator casing have limited functionality: Only the second and the third speed can be activated. Three of the four modes of
ventilation may be set. The remote control has wider control capabilities.
Guaranteed range of the remote control is 1m. The receiver is located on the casing of the ventilator in the area of the control buttons, it is necessary to
take into account while using the remote control.
The ventilator stores the current operation mode and in case of power failure returns to this mode when power is restored.
Speed switch
Ventilation mode switch
Third speed
The ventilator operates with maximum air capacity.
The fan is OFF:
The ventilator does not operate. The shutters are closed.
Second speed:
The ventilator operates with 50% air capacity
Ventilation mode:
The ventilator operates at the selected speed either in extract
or supply mode depending on the CN7 jumper position.
Regeneration mode:
In this mode the ventilator switches between supply and
extract modes each 70 seconds with heat regeneration.
Supply mode:
All the ventilators connected in series operate in supply
mode irrespective of the CN7 jumper position.