EasyManua.ls Logo

Dacor 100500 - Page 7

Dacor 100500
20 pages
Print Icon
To Next Page IconTo Next Page
To Next Page IconTo Next Page
To Previous Page IconTo Previous Page
To Previous Page IconTo Previous Page
Loading...
5
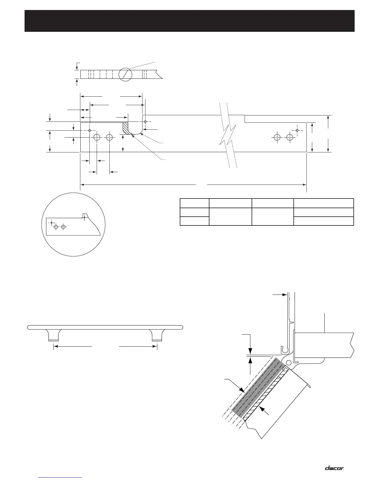
design sPeCifiCaTions
Custom Toe Kickplate Specifications
If using custom toe kickplate with your Dacor
®
Built-In Refrigerator,
refer to the following specifications.
“C”
3"
3 3/4"
R. 1/2"
Non-Dispenser
2 3/16" Typ
7/8"
5/16"
4 13/16"
5 5/8"
1 1/8" Typ
6 1/4"
15/16" Typ
Panel thicker than 3/16"
Cut out for Dispenser
Allow relief here for
dispenser models with
panels thicker than 3/16"
1 13/16"
3/4" Typ
(A)
(A)
(A)
Angled cut for thicker plates
(B)(B) (B)(B)
Custom Handle Specifications
Before installing the custom panel assembly, the custom handle
hardware must be installed. It is recommended that handles with
larger D-style pulls be used. If the screws that are used have
thick heads, the screws will need to be countersunk into the panel
before it is put into place.
IMPORTANT: Dacor
®
advises not using single pull knobs on
Built-In Refrigerator.
20" (508mm)
3/4" Overlay
Panel
1/8"
135˚ Door Opening
(Top View)
Cabinet Trim
Door Open
@ 135˚
Door Closed
1 1/4"
1"
3/4"
1/2"
1/4"
0"
Custom Panel Door Swing Specifications
The following illustrations let you see what considerations you
need to make for any custom panel applications, and how they
may interact with adjacent cabinets and/or countertops.
Model Hole “A”Dia. Hole “B”Dia. Overall Length “C”
42-Inch
3/16” (5mm) 1/2” (13mm)
40 7/8” (1038mm)
48-Inch 46 7/8” (1191mm)

Related product manuals