EasyManua.ls Logo

Dacor CPS - Upper Oven Pure Convection

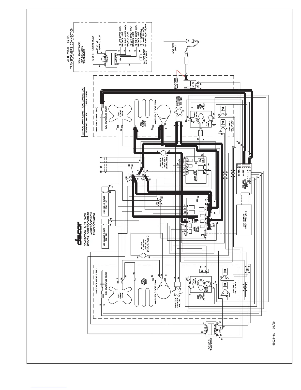
Dacor CPS
159 pages
Print Icon
To Next Page IconTo Next Page
To Next Page IconTo Next Page
To Previous Page IconTo Previous Page
To Previous Page IconTo Previous Page
Loading...
Technical Manual - Page 109
Upper Oven
Pure Convection

Table of Contents

Related product manuals