EasyManua.ls Logo

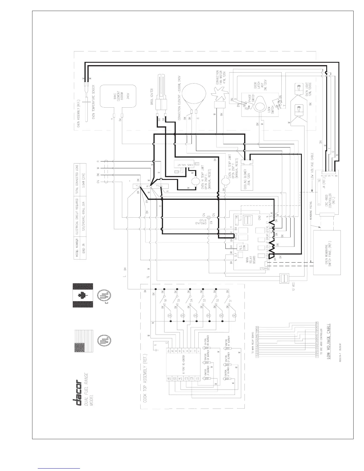
Dacor CPS - ERD36 Broil Circuit Diagram

Dacor CPS
159 pages
Print Icon
To Next Page IconTo Next Page
To Next Page IconTo Next Page
To Previous Page IconTo Previous Page
To Previous Page IconTo Previous Page
Loading...
Technical Manual - Page 67
ERD36 BROIL CIRCUIT

Table of Contents

Related product manuals