EasyManua.ls Logo

Dacor ERV36-ER - Installation Instructions; Installation Preparation; Installing the Raised Vent

Dacor ERV36-ER
16 pages
Print Icon
To Next Page IconTo Next Page
To Next Page IconTo Next Page
To Previous Page IconTo Previous Page
To Previous Page IconTo Previous Page
Loading...
8
Installation Instructions
Back of Unit
Side
Knock-out
Side
Knock-out
Bottom
Knock-out
Rear knock-out with
metal cross overs
shown
Vent Knock-out Locations
ADT2 side
installation
ADT2 bottom
installation
ADT2 Transition Installation
Floor
Cut hole in floor to allow
duct to pass through on
bottom venting installations
Top of vent resting
on countertop
Installation Preparation
Verify Package Contents
Use and care manual•
Anchoring legs•
4 wood screws for anchor legs•
3 wire nuts•
ADT2 duct transition•
2 sheet metal screws for ADT2 mounting•
2 nuts and washers to secure anchor legs•
Insulation foam•
Verify that the raised vent and blower being installed are a
matched pair before beginning the installation.
WARNING
If the electrical service (electrical outlet) does not •
meet the Electrical Specifications on page 4, do
not proceed with the installation. Call a licensed
electrician and have an electrical outlet installed that
meets the specifications.
Install the vent only in a vertical orientation. Do not mount
the vent on a slant or angle.
Installing the Raised Vent
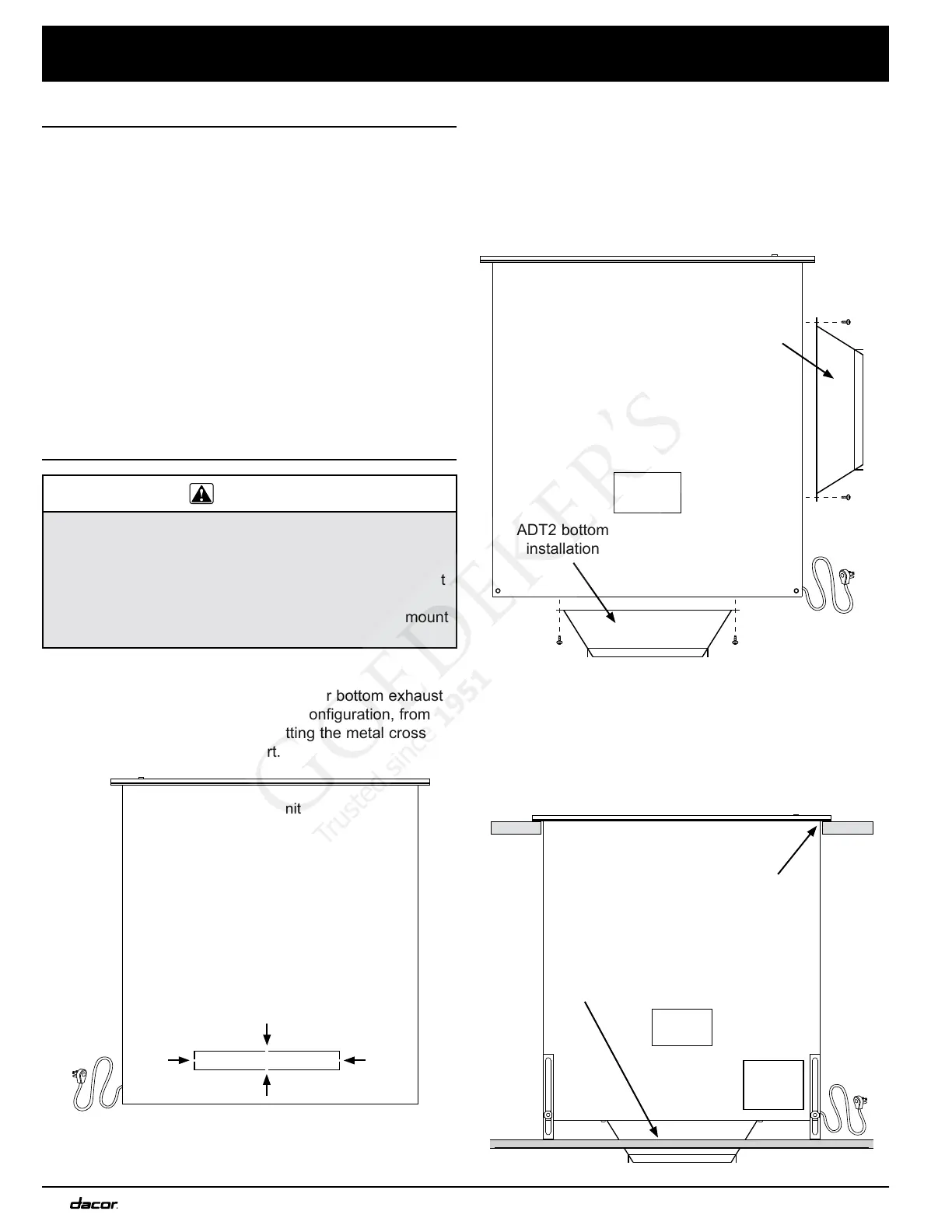
Remove the appropriate side, back or bottom exhaust 1.
knockout, depending on the duct configuration, from
the raised vent assembly by cutting the metal cross
overs and removing the insert.
Installation
Cut and remove the foil material inside the knock-out 2.
hole. If you fail to remove the foil, the vent will not work.
If the unit will vent through the bottom or side:3.
For side installations, attach the supplied ATD2 •
transition to the side of the unit that will exhaust the
air. Install an elbow to the transition with the output
pointing down.
For bottom installations, attach the supplied ATD2 •
transition to the bottom of the unit. Cut a hole in the
cabinet floor to allow the exhaust transition and/or
the duct to pass through the floor.

Related product manuals