EasyManua.ls Logo

Dacor ERV36-ER - Page 7

Dacor ERV36-ER
16 pages
Print Icon
To Next Page IconTo Next Page
To Next Page IconTo Next Page
To Previous Page IconTo Previous Page
To Previous Page IconTo Previous Page
Loading...
5
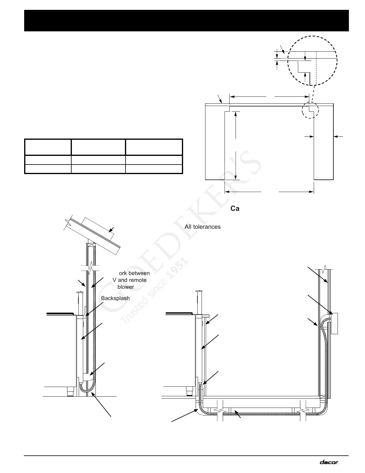
Installation Specifications
Example of Layout with Bottom Exhaust
(Side View)
Example of Layout with Rear Exhaust
(Side View)
Install the raised vent and range so that they can be •
removed if service is required.
The raised vent is equipped with adjustable anchor legs •
to accommodate various cabinet heights. See Product
Dimensions.
Plan the installation so that all minimum dimensions •
are met or exceeded. All contact surfaces between the
raised vent and any cabinets or walls must be solid and
at right angles. Refer to the range installation instruc-
tions for the minimum dimensions specific to the par-
ticular range being installed.
Allow room for the exhaust duct coming out of the unit. •
See Planning the Duct Work for further details.
Model Number ERV Cutout
Width (C)
Range Cutout
Width (D) Min.
ERV36-ER 33
1/2(848 mm) 36 1/16” (916 mm)
ERV48-ER 43
1/2(1102 mm) 48 1/16” (1221 mm)
* Depth dimensions are at the discretion of the customer.
For reference, depth of the ER36D/ER48D range is 28 ¼”
(718 mm) from the front panel, excluding trim and knobs.
REMP Series
Remote Blower
REMP Series
Remote Blower
Outside Wall
Wall Board
Floor
Floor
Wall Board
ER36D or
ER48D Range
ER36D or
ER48D Range
Power conduit from ERV
to remote blower
ERV configured for
bottom exhaust
ERV configured
for rear exhaust
ERV
ERV
Backsplash
Cabinet Back
Duct work between
ERV and remote
blower
Duct work between ERV
and remote blower
*
D
10" (254 mm) Min.
to combustible side
walls above the range
(both sides)
Vertical
non-combustible
surface rear wall
Backsplash
1/4" (6 mm)
Min. flat ledge
C
2 13/16"
(71 mm)
Cabinet Cutout - Top View
Countertop Height:
Min: 30 ¼” (768 mm)
Max: 37 ¼” (946 mm)
All tolerances: +1/16”, -0, (1.6 mm,0) unless otherwise stated

Related product manuals