EasyManua.ls Logo

Daedong 3C093 - Page 43

Daedong 3C093
51 pages
Print Icon
To Next Page IconTo Next Page
To Next Page IconTo Next Page
To Previous Page IconTo Previous Page
To Previous Page IconTo Previous Page
Loading...
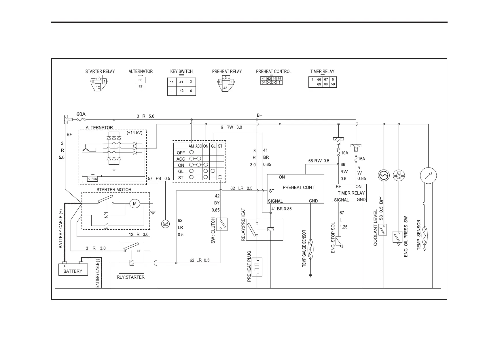
WIRING DIAGRAMS 43
379O702A
TD1300, TD1400, TD1700, 3A139, 3A165, 4A200T, 4A220, 4A220T

Related product manuals