EasyManua.ls Logo

Daewoo FR-4501K - Page 68

Daewoo FR-4501K
68 pages
Print Icon
To Previous Page IconTo Previous Page
To Previous Page IconTo Previous Page
Loading...
67
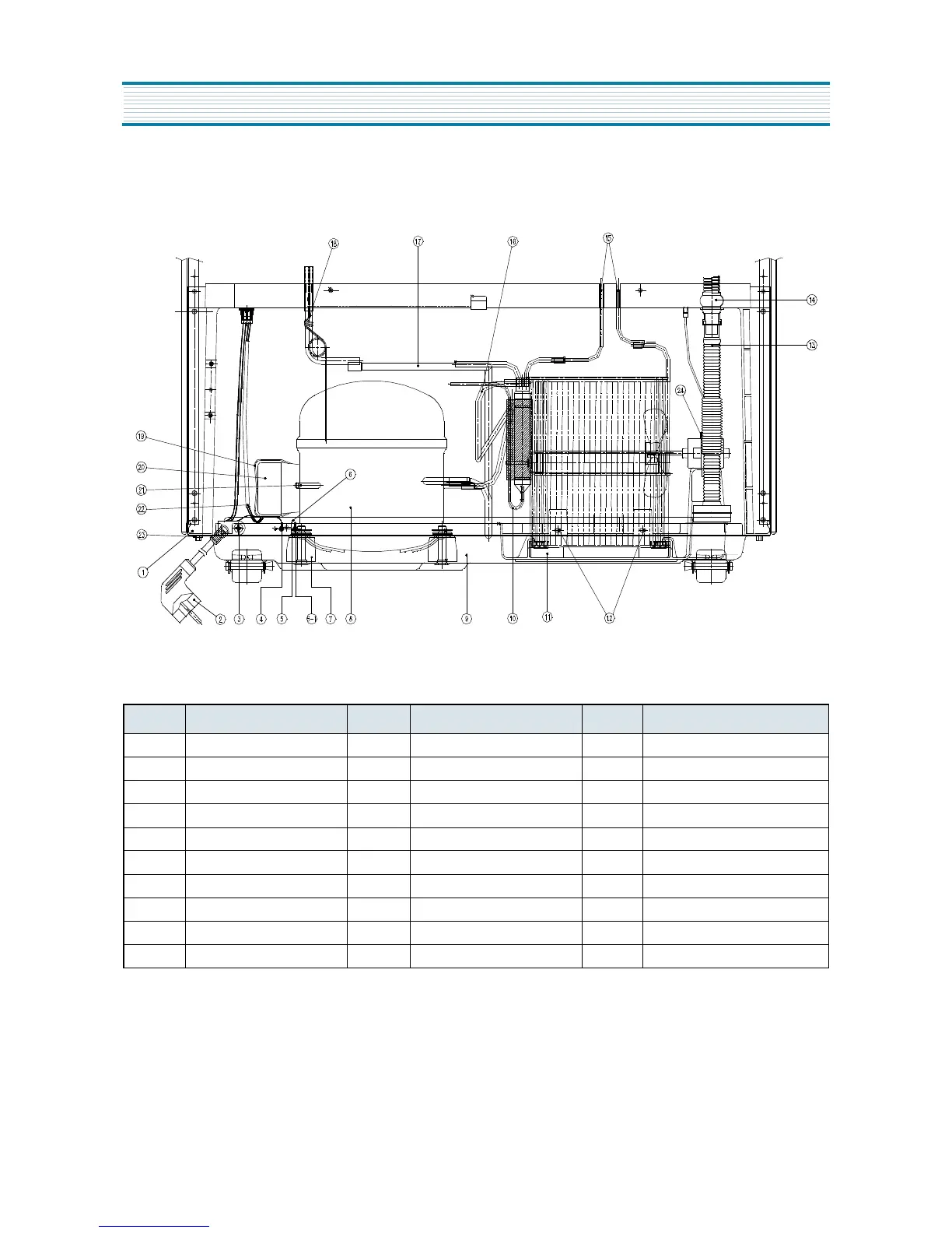
2) FR-4501N, FR-4502N, FR-4503N
NO PART NAME NO PART NAME NO PART NAME
1 BASE CAB 10 DRYER AS 20 COVER RELAY
2 CORD POWER 11 CASE VAPORI AS 21 PIPE SERVICE
3 SCREW TAPPING 12 SCREW TAPPING 22 SWITH P-RELAY AS
4 SCREW MACHINE 13 HOSE DRN A 23 ABSORBER C MOTOR
5 WASHER TOOTH 14 HOSE DRN B
5-1 SCREW MACHINE 15 PIPE HOT
6 HARNESS EARTH 16 PIPE CONN A
7 ABSORBER COMP 17 PIPE SUC CONN
8 COMPRESSOR 18 PIPE SUCTION AS
9 BASE COMP 19 BAND RELAY
EXPLODED VIEW AND PARTS LIST

Related product manuals