EasyManua.ls Logo

DAF CF75 Series - Page 315

DAF CF75 Series
504 pages
Print Icon
To Next Page IconTo Next Page
To Next Page IconTo Next Page
To Previous Page IconTo Previous Page
To Previous Page IconTo Previous Page
Loading...
3
CF65/75/85 series Description of components
CLUTCH
3-7
3
2
1
4
5
76
V300802
Y14 Y16 Y17 Y15
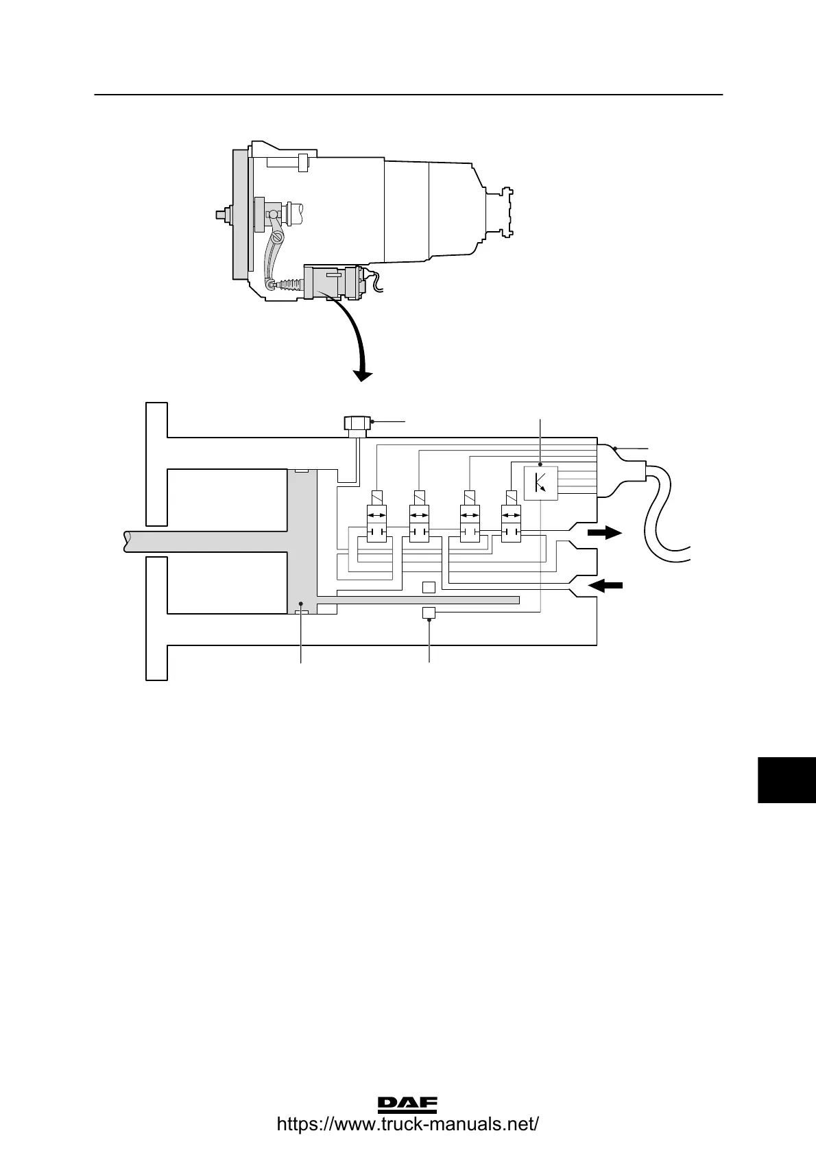
The clutch unit does not just consist of the
pneumatic operating piston (7), but also of four
pneumatic valves, which can open or close the
clutch either fast or slowly.
Valve Y16 is for fast declutching, valve Y17 for
slow declutching. Valve Y15 has the clutch
engage slowly, valve Y14 has it engage quickly.
The moment of engaging and the position and
stroke of the operating piston are processed by
the travel sensor (6) and the electronics (2) and
then transmitted to the modulator. In this way
the modulator can adjust the opening and
closing of the clutch to the driving conditions.
A bleed screw (1) has been fitted to enable
manual bleeding of the clutch unit.
10
200337
https://www.truck-manuals.net/

Other manuals for DAF CF75 Series

Related product manuals