EasyManua.ls Logo

DAF CF75 Series - Page 492

DAF CF75 Series
504 pages
Print Icon
To Next Page IconTo Next Page
To Next Page IconTo Next Page
To Previous Page IconTo Previous Page
To Previous Page IconTo Previous Page
Loading...
3
AS TRONIC GEARBOX
Removal and installation CF65/75/85 series
4-6
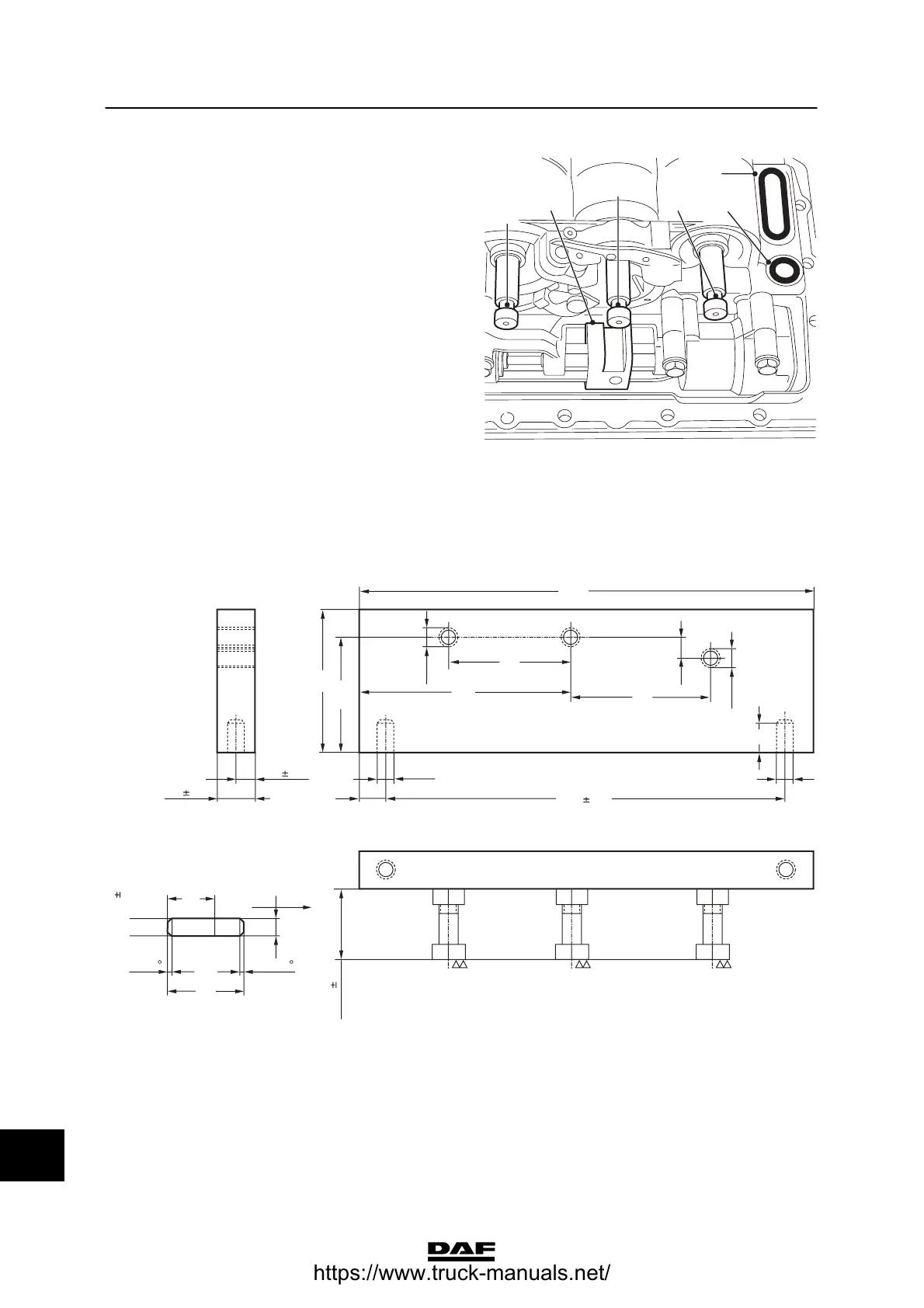
3. Put the central modulator control rod (4) in
neutral position; this is reached when a
slightly higher resistance is met when the
control rod is drawn out.
4. Align the two outer control rods (3 and 5)
and the central rod.
V300692
4
5
6
23
1
Note:
The alignment of the control rods can be
checked with the aid of a simple tool. This tool
can be made in your own workshop. It cannot be
ordered from DAF.
25
40
240
74
212 0.1
10 0.1
14
20 0.1
9
11
15
M10
M10
60.5
2 x 45 2 x 45
fl8.7 0.1
37.5 0.1
9
r6
64
9
H7
112
75
V300716
14
200337
https://www.truck-manuals.net/

Other manuals for DAF CF75 Series

Related product manuals