EasyManua.ls Logo

Daikin BPMK928B43 - Page 78

Daikin BPMK928B43
410 pages
Print Icon
To Next Page IconTo Next Page
To Next Page IconTo Next Page
To Previous Page IconTo Previous Page
To Previous Page IconTo Previous Page
Loading...
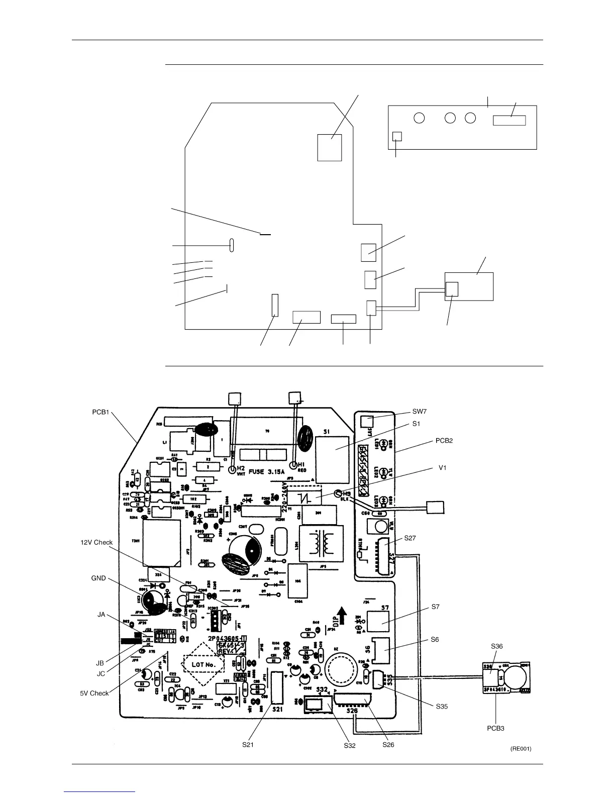
Si18-201 Printed Circuit Board Connector Wiring Diagram and Name
Printed Circuit Board Connector Wiring Diagram and Name 65
Printed Circuit Board (1)~(3)
Printed Circuit Board (1)~(3) Detail
(RL001)
Control P C B (1)
S1
Signal receive P C B (2)
S27
GRN
GRN
YLW
LED1 LED2 LED3
SW7
S7
S6
Intelligent eye
sensor P C B (3)
S36
S35
S26
S32
S21
5V check
Jumper
JA
JB
JC
ground
12V check
Jumper

Table of Contents

Related product manuals