EasyManua.ls Logo

Daikin DCC072 SERIES - Page 95

Daikin DCC072 SERIES
139 pages
Print Icon
To Next Page IconTo Next Page
To Next Page IconTo Next Page
To Previous Page IconTo Previous Page
To Previous Page IconTo Previous Page
Loading...
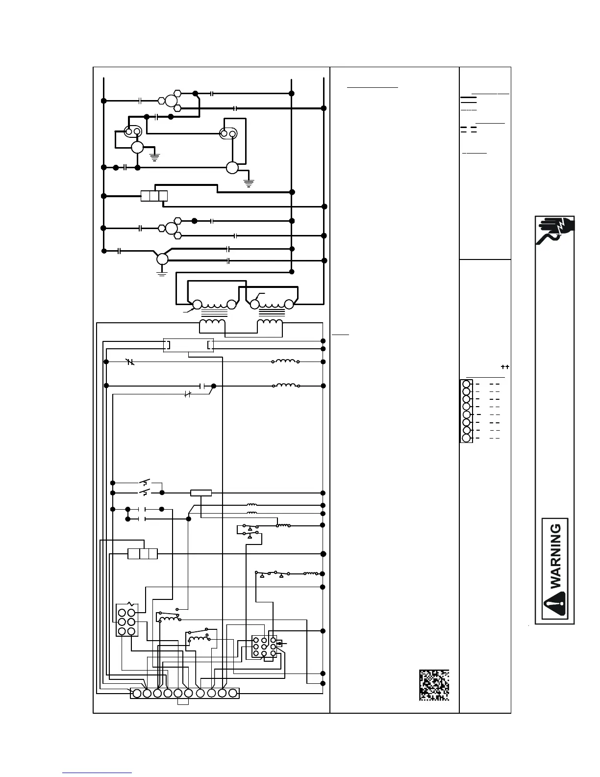
UNIT WIRING DIAGRAMS
HIGH VOLTAGE!
DISCONNECT ALL POWER BEFORE SERVICING OR INSTALLING THIS
UNIT. MULTIPLE POWER SOURCES MAY BE PRESENT. FAILURE TO
DO SO MAY CAUSE PROPERTY DAMAGE, PERSONAL INJURY OR DEATH.
49
Wiring is subject to change. Always refer to the wiring diagram on the unit for the most up-to-date wiring.
DCH090-150XXX6BXXX**
R
R
HVDR
RVC2
SEEUNITRATING PLATEFORTYPEAND SIZE
5
OF OVER CUR RENT PROTECTION
4
BLOWER CONTACTOR
COMPRESSOR CONTACTOR
CONDENSER MOTOR
CONDENSER MOTOR CONTACTOR
COMPRESSOR
DEFROST CONTROL
DEFROST THERMOSTAT
ECONOMIZER
ELECTRONIC BLOWER TIME DELAY
EVAPORATOR MO TOR RELAY
RELAY
EVAPORATOR M OTOR
FAN CAPACITOR
EQUPIMENT GROUND
HIGH PRES SURE SW ITCH
HIGH VOLTAGE DE FROST RELAY
LOW PRESSUR E SWITCH
LOW VO LTAGE DE FROST RE LAY
LOW VOLTAGE JUNCTION B OX
POWER DISTRIBUTION BLOCK
FEMALE PLUG / CONNECTOR
PHASE MONITOR
TERMINAL BLOCK (24V SIGNAL)
TRANSFORMER
C
BC
CC
CM
CM C
COMP
DC
DFT
ECON
EBTD
EMR
R
EM
FC
GND
HPS
HVDR
LPS
LVDR
LVJB
PB
PLF
PM
TB1
TR
6
C
OM
PONENT LEGEND
R G
N
OTES:
1. REPLACEMENT WIRE MUST BE SA ME SIZE AND
TYPE INSULATION AS ORIGINAL (AT LEAST 1 05°C)
USE COPPER CONDUCTOR ONLY.
2. USE COPPER CONDUCTORS ONLY
++ USE N.E.C. CLASS 2 WIRE
3. ECONOMIZER PLUG LOCATED IN THE RETURN AIR
COMPARTMENT. REMOVE MALE PLUG AND ATTACH
FEMA LE PLUG TO THE ECONOMIZER ACCESSORY.
4. FOR TWO STAGE OPERATION REMOVE W1 TO W2
JUMPER WIRE.
EBTDR
CC1
HPS1
LPS1
L OW VOLTAGE
LIN E VOLTAGE
F
IELD WIRING
L OW VOLTAGE
OPTIONAL
H IGH VOLTAGE
FA
CTORY WIRING
HIGH VOLTAGE
CC2
GR GREEN
W
IRE CODE
BL BLUE
PU PURPLE
PK PINK
WH WHITE
BK BLACK
RD RED
BR BROWN
OR ORANGE
YL YELLOW
YL/PK YELLOW WITH
PINK STRIP
BL/PK BLUE WITH
PINK STRIP
CMC
CM2
T2
CC1
L2
L2
COMP1
SUPPLY VOLTAGE
CM1
L1
CC1
T1
CC1
L3
T2
TR
24V
8
7
9
OR
O
O
BL
Y1
GR
PK
TB1
W1
R
G
C
R
2 STAGE C
OOLING
YL
G
C
WH
Y2
Y1
STAT
W1
RD
THERMOSTAT
FIELD WIRING
W2
BR
W2
NO
NC
PLF2
9
7
8
5
6
4
3
2
1
SEE
NOTE 3
SSHR
SECOND STAGE HEA TER RELAY
LPS2
HPS2
EBTDR
BLOWER RELAY
CIRCUIT BREAKER
COMPRESSOR CO NTACTOR RELAY
BR
CB
CC R
R
EBTDR
BC
R
5
4
6
400/3/60 0140L06200-A
TO THERMOSTAT
CMC
CMC
FC2
CM2
T2
CC1
L2
COMP1
CM1
L1
CC1
T1
CC1
L3
400/3/60
TR
8
7
9
Y2
SSHR
9
7
8
5
6
4
3
2
1
F
C
DR
NO
DR
NC
TR
24V
C
TR
24V
RVC1
FC1
5
.
M
O
V
E
W
I
R
E
(
S
)
T
O
A
P
P
R
O
P
R
I
A
T
E
I
N
P
U
T
V
O
L
T
A
G
E
T
E
R
M
I
N
A
L
O
N
T
R
A
N
S
F
O
R
M
E
R
.
C
SEE NOTE 5
SEE NOTE 5
++
N
O
T
E
4
T
B
1
R
O
G
C
Y
1
W
1
W
2
S
2
S
1
R
O
G
C
Y
1
W
1
W
2
Y
2
S
2
S
1
T
3
T
2
T
1
L
1
F
C
C
M
C
E
M
B
C
B
C
B
C
C
C
2
T
3
COMP2
C
C
2
T
1
T
2
P
M
C
C
2
L
1
L
2
L
3
Y
C
Yout
P
L
F
1
L
V
D
R
W
2
R
D
F
T
2
R
O
D
F
T
1
R
Y
W
2
D
F
T
R
R
C
D
C
O
R
P
M
R
E
V
E
R
S
I
N
G
V
A
V
L
E
C
O
I
L
R
V
C

Table of Contents

Other manuals for Daikin DCC072 SERIES

Related product manuals