EasyManua.ls Logo

Daikin DCH090 Series - Page 45

Daikin DCH090 Series
139 pages
Print Icon
To Next Page IconTo Next Page
To Next Page IconTo Next Page
To Previous Page IconTo Previous Page
To Previous Page IconTo Previous Page
Loading...
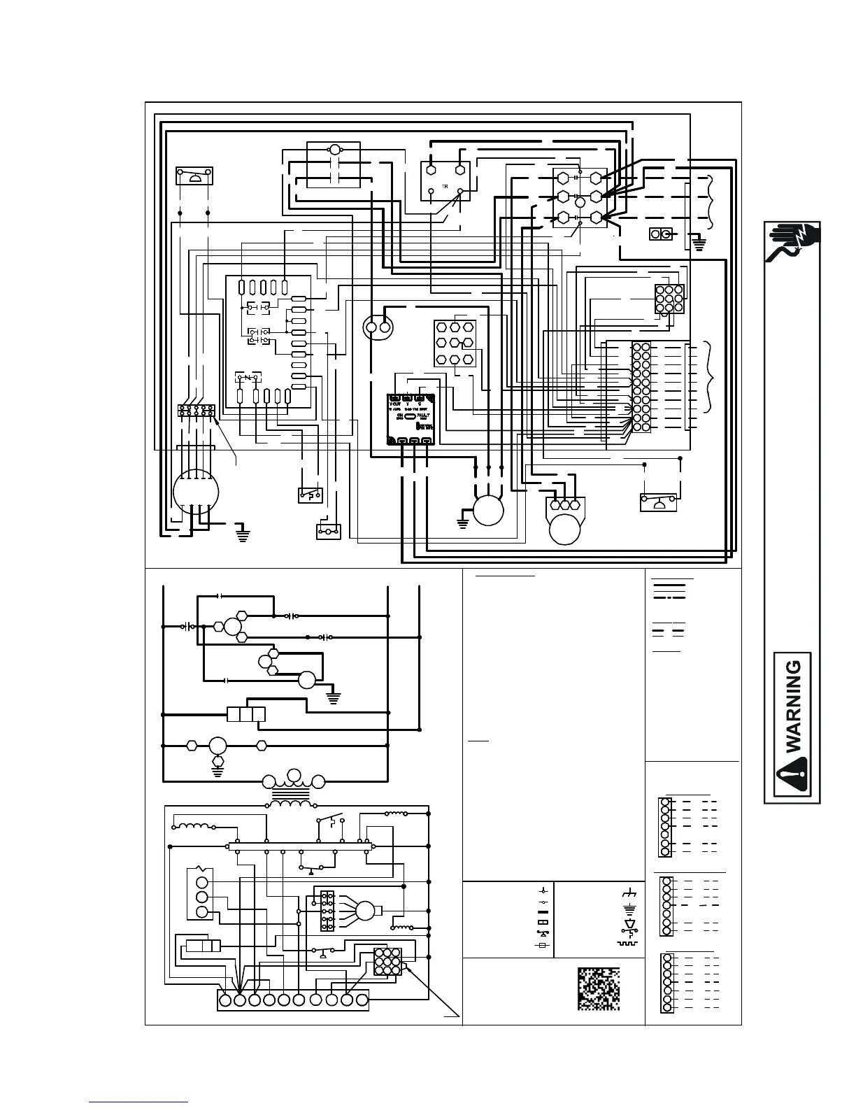
UNIT WIRING DIAGRAMS
HIGH VOLTAGE!
DISCONNECT ALL POWER BEFORE SERVICING OR INSTALLING THIS
UNIT. MULTIPLE POWER SOURCES MAY BE PRESENT. FAILURE TO
DO SO MAY CAUSE PROPERTY DAMAGE, PERSONAL INJURY OR DEATH.
Wiring is subject to change. Always refer to the wiring diagram on the unit for the most up-to-date wiring.
45
DCH048-060XXX6BXXX**
T2
SEE UNIT RATING PLATE FOR TYPEAND SIZE
5
OF OVER CURRENTPROTECTION
4
CONTACTOR
COMPRE SSOR CONTACTOR RELAY
CRANKCASE HEATER
CRANKCASE HEATER SWITCH
CONDENSER MOTOR
CONDENSER MOTOR CONTACTOR
COMPRESSOR
DEFROST CONTROL
DEFROST THERMOSTAT
ECONOMIZER
EVAPORATORMOTOR
EQUIPMENTGROUND
H IGH P RESSU RE SWITC H
HIGH VOLTAGE DEFROST RELAY
LO W PRE SSURE SWIT CH
LOW VOLTAGE DEFROST RELAY
LOW VOLTAGE JUNCTION BOX
FEMALE PLUG / CONNECTOR
PHASEMONITOR
REVERSINGVALVE COIL
RUNCAPACITOR FOR CONDENSER FAN
TERMINAL BLOCK (24VSIGNAL)
TRANSFORMER
REVERSING V AL VE
L3
T3
C
PLF2
C
C
CCR
CH
CHS
CM
CMC
COMP
DC
DFT
ECON
EM
GND
HPS
HVDR
LPS
LVDR
LVJB
PLF
PM
RVC
RCCF
TB1
TR
RV
6
T1
C
L1
CM
COMPONENT LEGEND
400/3/60 0140L06191-A
F
P
L
F
1
T2
COMP
T1
T3
L2
C
RCCF
G
L
N
SEENOTE 2
EM
EM
C
2
4
5
3
1
HPS
NOTES:
1. REPLACEMENT WIRE MUST BESAMESIZE AND
TYPE INSULATIONAS ORIGINAL (AT LEAST
105°C) USE COPPER CONDUCTOR ONLY.
2. FAN OPERATION IN HEATING MODE MAY REQUIREMOVING
WHITE LEAD FROM T3 TO T4 OR T5. MOVE LEAD AS REQUIRED
TO MEET STATIC/AIRFLOW REQUREMENTS FOR THE
APPLICATION. SEE PROD UCT S PE CIFICATIONS FOR(AIRFLOW
DATA, AND HEATER MINIMUM CFM) TABLE S.
3. USE COP PER CONDUCTORS ONLY
++
USE N.E.C. CLASS2 WIRE
4. ECONOMIZER PLUG LOCATED IN THE RETURNAIR
COMPARTMENT. REMOVE MALEPLUG AND ATTACH
FEMALEPLUG TO ECONOMIZER ACCESSORY.
56
312
SEE NOTE 4
LOW VOLTAG E
LINE VOLTAG E
FIEL D
WIRING
LOW VOLTAG E
FACTORY W IR ING
HIGH VOLTAG E
BL
RD
OR
Y1
YL
W
BL
G
R
OR
W
N
O ECONOMIZER
G
OR
YL
RD
Y2
PK
WH
W
RRD
WH
GR
C
O
R
YL
O
GRG
WH
W
ITH ECONOMIZEROPTION
C
GR
THERMOSTAT
FIELD W IRING
BL
C
O
2S
TA GE COOLING
TB1
G
R
W
Y
C
O
TB1
TB1
Y
W
O
R
G
C
W
Y2
G
R
C
O
Y1
STAT
STAT
STAT
GR GREEN
W
IRE CODE
BL BLU E
PU PURPLE
PK PIN K
WH WHITE
BK BLAC K
RD RED
BR BROW N
OR ORANG E
YL YELLO W
400/3/60
SUPPLY VOLTAGE
Y1
Y1
2
TR
24V
3
400V
DC
DFT
Y
C
R
RVC
CNT
R-PS1 PS2
R
WO
DFT1
DFT2
O-RV C-RV
LPS
1
OPTIONAL HIGH
VOLTAG E
7
9
RO GCY1W1W2
Y2
S2S1
R
O GCY1W1
THERMOSTAT
W2
S2S1
Y2
Y2
EQUIPMENTGROUND
FIELD GROUND
FIELD SPLICE
SWITCH (TEMP)
IGNITER
SWITCH(PRESS.)
OVER CUR REN T
PROT. DEVICE
JUNCTION
TERMINAL
INTERNAL TO
INTEGRATED CONTROL
PLUG CONNECTION
++
++
DF1 DF2
CMC
T2
L1
L2
T1
CMC
CMC
L1 L2
L3
PM
PM
Y
C
Yout
C
L1 L2 L3
PK
PM
OR
BK
RD
BK
BK
OR
BR
C
3
BL
1
24V
BL
HPS
RD
PK
6
GND
/
PU
DFT
4
0
0
L3
T3
PK
PU
5
BK
BL
PLF 2
RD
BK
2
C
8
L2
CM
BK
6
0
PU
4
RVC
/
BK
L1
PU
5
7
6
BL
3
BK
YL
PLF 1
C3
RCCF
BR
9
T2
BK
T1
3
BL
BR
4
RD
1
SEE NOTE 4
GR
2
RD
BR
1
F
YL
OR
BR
LVJB
RD
WH
PU
GR
N
WH
BK
C
TB1
1
4
5
RD
2
YL
EM
GL
3
GR
TB1
400
BK
RD
BL
H
T
O
R
W2
T
Y1
T
G
Y2
A
W1
E
M
S
O
C
R
BL
WH
YL
WH
WH
BL
BL
BL
PU
GR
YL
PU
BR
WH
OR
1
5
OR
OR
BL/PK
RD
YL
YL
LPS
BL/PK
YL
BL
BK
YL/PK
YL/PK
CONTROLBOX
YLYL
PS2
C
C
R
C
Y
Y
R-PS1
R-DFT
DFT
0
CNT
CCR
HVDR
LVDR
W
C-RV
0-RV
0
DF2
DF1
R
DC
SEE NOTE 2
8
7
9
S2
S1
BL
RD
RD
BR
PK
++
CMC CONTACTOR
PK
PU
BK
BL
BK
PU
L1
L2
T1
T2
GR
T1
BK
T3
T2
COMP
RD
YL
PU
PK
PK
PU
PU
PU
WH
BL
PK
PK
BL
OR
BK
RD
RD
8
4

Table of Contents

Related product manuals