EasyManua.ls Logo

Daikin DCH150 Series - Page 43

Daikin DCH150 Series
139 pages
Print Icon
To Next Page IconTo Next Page
To Next Page IconTo Next Page
To Previous Page IconTo Previous Page
To Previous Page IconTo Previous Page
Loading...
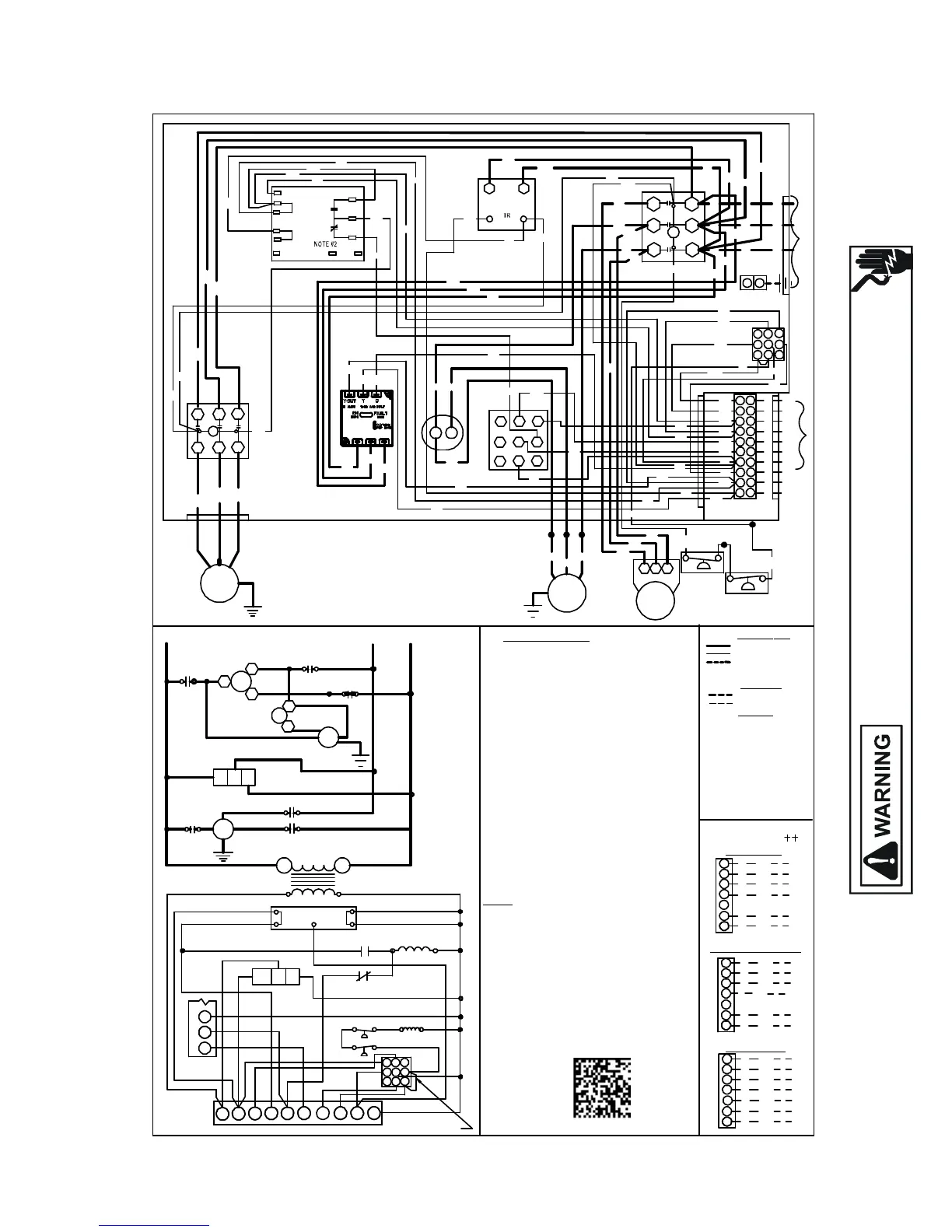
UNIT WIRING DIAGRAMS
HIGH VOLTAGE!
DISCONNECT ALL POWER BEFORE SERVICING OR INSTALLING THIS
UNIT. MULTIPLE POWER SOURCES MAY BE PRESENT. FAILURE TO
DO SO MAY CAUSE PROPERTY DAMAGE, PERSONAL INJURY OR DEATH.
Wiring is subject to change. Always refer to the wiring diagram on the unit for the most up-to-date wiring.
43
DCC072XXX6BXXX**
SEENOTE3
H
C
C
RD
F
RD
1
RCCF
T
PU
CONTROL BOX
BR
EBTDR
C
2
T1
L2
4
T3
T1
GR
SEE
NOTE 2
BK
5
O
1
4
BR
BL
3
BR
T1
BK
T2
9
RD
COMP
R
BR
3
YL
RCCF
NOTES:
1. REPLACEMENT WIRE MUST BE SAME SIZE AND
TYPE INSULATION AS ORIGINAL (AT LEAST 105°C)
USE COPPER CONDUCTOR ONLY.
2. USE COPPER CONDUCTORS ONLY
++ USE N.E.C. CLASS 2 WIRE
3. ECONOMIZER PLUG LOCATED IN THE RETURN AIR
COMPARTMENT. REMOVEMALEPLUG AND ATTACH
FEMALE PLUG TO ECONOMIZER ACCESSORY.
BK
T2
3
C
W2
BL
G
BK
P
L
F
1
T
THERMOSTAT
Y1
PLF 1
3
T
YL/PK
6
F
YL
3
BL
6
7
5
PU
T3
R
G
T2
COMPONENT LEGEND
L1
SUPPLY VOLTAGE
CM
BK
R
EM
/
L1
C
4
T1
6
RD
RD
BL
6
0
BC
C
CM
CMR
COMP
DC
DFT
ECON
EBTD
EMR
R
EM
FC
GND
HPS
HVDR
LPS
LVDR
LVJB
PB
PLF
PM
RVC
RCCF
TB1
TR
3
WH
1
C
A
1
GR
C
CM
24V
24V
W1
PLF2
L2
RD
8
E
YL
WH
M
C
C
2
T3
PU
BL
S
L3
BLOWER CONTACTOR
CONTACTOR
CONDENSER MOTOR
CONDENSER MOTOR RELAY
COMPRESSOR
DEFROST CONTROL
DEFROST THERMOSTAT
ECONOMIZER
ELECTRONIC BLOWER TIME DELAY
EVAPORATOR MOTOR RELAY
RELAY
EVAPORATOR MOTOR
FAN CAPACITOR
EQUPIMENT GROUND
HIGH PRESSURE SWITCH
HIGH VOLTAGE DEFROST RELAY
LOW PRESSURE SWITCH
LOW VOLTAGE DEFROST RELAY
LOW VOLTAGE JUNCTION BOX
POWER DISTRUBTION BLOCK
FEMALE PLUG / CONNECTOR
PHASE MONITOR
REVERSING VAVLE COIL
RUN CAPACITOR FOR
COMPRESSOR AND FAN
TERMINAL BLOCK (24V SIGNAL)
TRANSFORMER
TR
4
LVJB
5
PLF 2
BL
BK
5
+
+
BC
YL
COMP
SEE UNIT RATING PLATE FOR TYPE AND SIZE
400V
T3
C
400/3/60
T2
L3
4
0
0
RD
BL
Y2
P
L
F
1
2
/
GND
6
1
BC
EBTDR
R
RD
BK
LPS
HPS
EBTDR
HPS
LPS
BC
RD
BL/PK
YL/PK
T3
BK
BC
T1
RD
OR
C
EM
T2
BC
PU
L1
L2
L3
++
RD
RD
O
LOW VOLTAGE
LINE VOLTAGE
FIELD
WIRING
LOW VOLTAGE
OPTIONAL
HIGH VOLTAGE
FACTORY WIRING
HIGH VOLTAGE
BL
RD
OR
Y1
YL
W
BL
G
R
OR
W
NOECONOMIZER
G
OR
YL
RD
Y2
Y1
PK
WH
W
R
RD
WH
GR
C
O
R
YL
O
GR
Y1
G
WH
W
ITH ECONOMIZER OPTION
C
GR
THERMOSTAT
FIELD WIRING
BL
C
O
2STAGE COOLING
TB1
G
R
W
Y
C
O
TB1
TB1
Y
W
O
R
G
C
W
Y2
G
R
C
O
Y1
STAT
STAT
STAT
PU
RD
GR
YL
BL/PK BLUE WITH PINK STRIP
YL/PK YELLOW WITH PINK STRIP
GR GREEN
W
IRE CODE
BL BLUE
PU PURPLE
PK PINK
WH WHITE
BK BLACK
RD RED
BR BROWN
OR ORANGE
YL YELLOW
400
OR
BK
YL
400/3/60 0140L06192-A
OF OVER CURRENT PROTECTION
9
8
7
9
S2
S1
PK
BR
OR
OR
RO
GCY1W1
W2
S2S1
RO
GCY1W1
W2
Y2
S2S1
Y2
Y2
L1
L2
L3
PM
PM
Y
C
Yout
GR
PK
PK
BL
BL
BL
L1 L 2 L 3
PM
OR
BK
RD
BL
PK
PK
BL
PK
PK
OR
BK
RD
OR
BK
RD
GR
BL
M2
G
XFMR-R
EBTDR
XFMR-C
M1
K1
PU
SPEED
BR
K1
BR
C
GR
UP
NO
NC
RD
R
COM
RD
RD
PK
BK
87

Table of Contents

Related product manuals