EasyManua.ls Logo

Daikin DFG120 - Power and Controls Wiring Diagram

Daikin DFG120
76 pages
Print Icon
To Next Page IconTo Next Page
To Next Page IconTo Next Page
To Previous Page IconTo Previous Page
To Previous Page IconTo Previous Page
Loading...
72




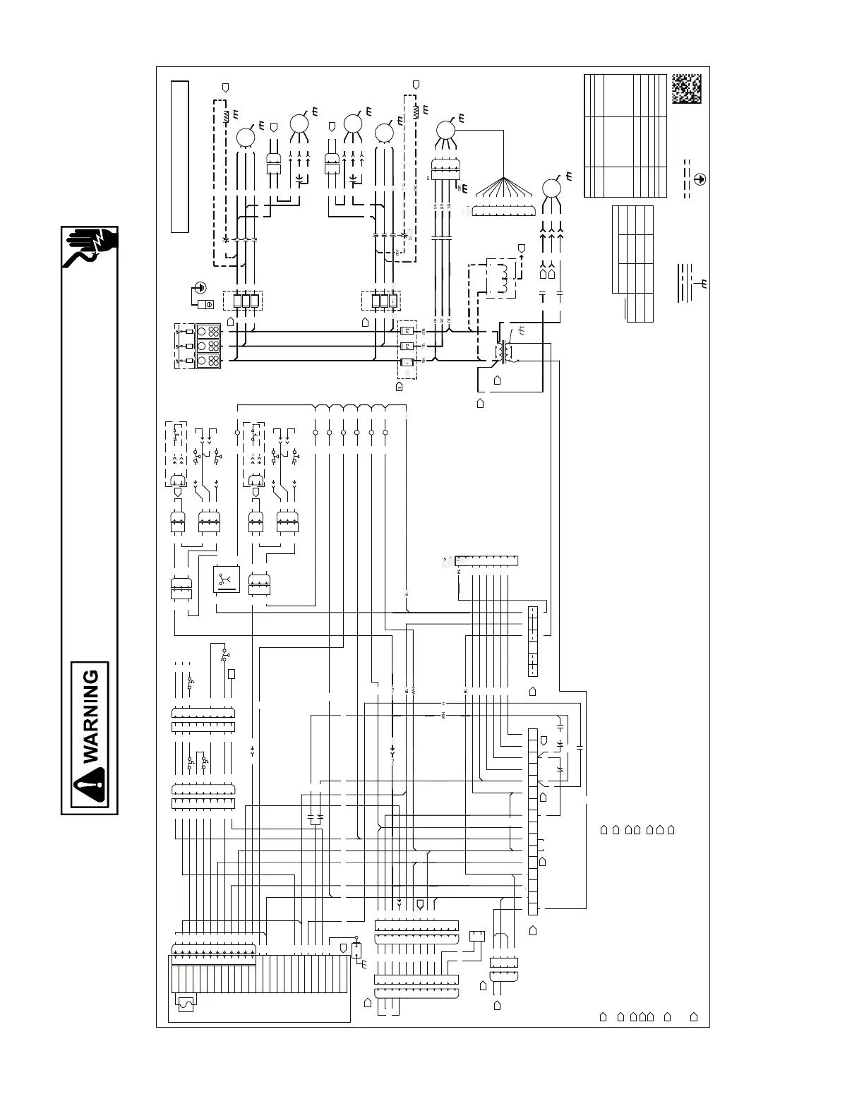
Wiring is subject to change. Always refer to the wiring diagram on the unit for the most up-to-date wiring.
0140L07382-B1
HIGH VOLTAGE
OPTIONAL HIGH VOLTAGE
LOW VOLTAGE
OPTIONAL LOW VOLTAGE
CHASSIS GROUND
REPLACEMENT WIRE MUST BE SAME SIZE AND TYPE OF INSULATION AS ORIGINAL (AT
LEAST 105° C). USE COPPER CONDUCTORS ONLY.
USE N.E.C. CLASS 2 WIRE FOR ALL LOW VOLTAGE FIELD CONNECTIONS.
IF OPTIONAL ECONOMIZER IS INSTALLED REMOVE ECON PLM JUMPER AND PLUG IN
NEW HARNESS FROM ECONOMIZER KIT
FUSE BLOCK ARE OPTIONAL
REFER TO TABLE FOR VENT MOTOR WIRING INSTRUCTIONS
TR1 PRIMARY (HIGH VOLTAGE) CONNECTIONS: ORANGE WIRE CONNECTED TO
240/460/575V TAP AT THE FACTORY AND BLACK WIRE TO COM TERMINAL.
FOR 208V SUPPLY POWER, MOVE ORANGE WIRE FROM 240V TAP TO THE 208V TAP.
IF OPTIONAL OEM SAFETY EQUIPMENT SUCH AS A PHASE MONITOR, FLOAT SWITCH
OR SMOKE DET ECTOR IS INSTALLED, UNPLUG JUMPER PLUG AND PLUG IN SAFETY
DEVICE.
IF MULTIPLE SAFETIES ARE INSTALLED, PLUG IN THE ADDITIONAL DEVICES IN SERIES.
PLUG IN JUMPER PLUG AT THE LAST SAFETY DEVICE INSTALLED.
IF A THIRD PARTY SAFETY DEVICE IS FIELD INSTALLED, CUT WIRE ON THE JUMPER
PLUG AND W IRE IT IN SERIES WITH THE SAFETY CIRCUIT.
L1PB L2 L3
GND
BLRD
BK OR
BK BK
BK
COMPONENT LEGEND
WIRE CODE
FACTORY WIRING
HIGH VOLTAGE
LOW VOLTAGE
EARTH GROUND
NOTES
1
1
2
3
4
5
6
7
8
9
10
11
12
24V
COM
GV
LMT OUT
LMT IN
PS IN
G
PS OUT
R
W
COMP IN
COMP OUT
D1
L1
L1
L2
L2
L2
L2
COOL FAN
HEAT FAN
FS
IGN
SPEED - UP
UNUSED
3A
PCB
IIC
1
2
3
4
5
6
7
8
9
10
11
12
PLM2 PLF2
ECON
12
1
2
4
5
3
6
7
8
9
10
11
12
1
2
7
4
3
6
5
8
11
10
9
R2 R1
t = 180s
Y2 Y1
TON2
CC1
A1 A2
YL BL
CC2
A1 A2
PU BL
BC
A1 A2
PK BL
VMC
A1 A2
WH BL
BR2
10
YL BL
BR3
10
WH BL
ALS AUXILIARY LIMIT SWITCH
BC BLOWER CONTACTOR
BM BLOWER MOTOR
BR BLOWER RELAY
CB CIRCUIT BREAKER
CC COMPRESSOR CONTACTOR
CCH CRANKCASE HEATER
CCX COMPRESSOR CONTACTOR AUXILIARY
CM CONDENSER MOTOR
COMP COMPRESSOR
ECON ECONOMIZER
ES EMERGENCY SHUTDOWN
FB FUSE BLOCK
FC FAN CAPACITOR
FPS FREEZE PROTECTION SWITCH
FS FLAME SENSOR
GND EQUIPMENT GROUND
GV GAS VALVE
HPS HIGH PRESSURE SWITCH
IIC INTEGRATED IGNITION CONTROL
LPS LOW PRESSURE SWITCH
LS LIMIT SWITCH
MAT MIXED AIR TEMPERATURE SENSOR
PB POWER DISTRIBUTION BLOCK
PLF FEMALE PLUG/CONNECTOR
PLM MALE PLUG/CONNECTOR
PS PRESSURE SWITCH
RS ROLLOUT SW ITCH
TB TERMINAL BLOCK
TON TIME DELAY RELAY (ON)
TR TRANSFORMER
VM VENT MOTOR
VMC VENT MOTOR CONTACTOR
FIELD WIRING
PK
BL
PU
RD
RD
YL
GR
YL
RD
WH
YL
YL
WH
PK
BL
BL
YL
TN
RD
OR
POWER AND CONTROLS WIRING DIAGRAM
DFG 090 - 150 DIRECT DRIVE
LINE VOLTAGE:
208-230/460/575V/3PH/60HZ
PU
WH
YL
GR WH YL
PU
BL
BK BLACK
BL BLUE
BL/PK BLUE WITH PINK STRIPE
BR BROWN
GR GREEN
GY GRAY
OR ORANGE
PK PINK
PU PURPLE
RD RED
TN TAN
WH WHITE
YL YELLOW
YL/PK YELLOW WITH PINK STRIPE
PU
PU 2
1
2
1
PLF PLM
FPS 2
LPS 2
HPS 2
/YL PK /YL PK
/BL PK /BL PK
PU
PU
YL
YL
BL3
1
2
3
1
2
PLF2 PLM2
PS 2
BL
YL
YL 2
1
2
1
PLF PLM
FPS 1
LPS 1
HPS 1
/YL PK /YL PK
/BL PK /BL PK
YL
YL
YL
YL
BL3
1
2
3
1
2
PLF2 PLM2
PS 1
BL
GR
BM
~
M
3
GR
2PLF 2PLM
1
PLM
BM
BM
BL
RD
GY
GR
YL
PU
WH
BR
BK
4
1
2
3
4
1
2
3
9
1
2
7
4
3
6
5
8
BK
RD
OR
GR
L2 T2
BC
RD
RD RD
L2 T2
OR OR
L3 T3
2
3
4
5
6A
7
8
6B
FS
PS
BR
BL
RD
FB3
F3
F3 F3
3
3
3
9
6A
AB C DTB2S1 S2 R C G W1 W2 Y1 Y2 O DH T1 T2 T3 T4 T5TB1
PLF1
BM
BL
GY
GR
YL
PU
WH
BR
BLBLBRWHPUYLGYYLWHGRRDRD
RD
BL
9
1
2
4
5
3
6
7
8
ES
PLFPLM
4
1
2
3
4
1
2
3
RD
PK
RD
RD
PU
PU
8
GR BL
BL
BL
WH
7
9
1
2
7
4
3
6
5
8
GAS
PLM1
BLPU
BR
PK
PK
RD
BL
BL
BK ORRD
OR
BR
GR
WH
BR1
10
BR BL
TROUBLESHOOTING THI S APPLIANCE. STATUS LIGHT CODES ARE AS FOLLOWS:
THE STATUS LIGHT ON THE FURNACE CONTROL MAY BE USED AS A GUIDE TO
FALSE FLAME SENSED
OPEN LIMIT SWITCH
PRESSURE SW ITCH CLOSED
WITHOUT INDUCER ON
PRESSURE SW ITCH
NORMAL OPERATION
CHECK INPUT POW ER
CHECK FUSE CONTROL
3 BLINKS
6 BLINKS
4 BLINKS
5 BLINKS
COMPRESSOR OUTPUT DE LAY
OFF
ON
1 BLINK
2 BLINKS
STATUS LIGHT
OPEN AUX. LIMIT
IGNITION FAILURE
OPEN ROLLOUT
SWITCH
OPEN
SWITCH
NO POWER OR INTERNAL
CONTROL
EQUIP. ST ATUS
CHECK
ANTI-CYCLE TIMER
MAIN LIMIT O PEN
STICKING GAS VALVE
BAD SWITCH
3 MIN. COMP.
PRESSURE SW ITCH
GAS PRESSURE
FLAME ROLLOUT
AUX. LIMIT OPEN
FLAME SENSOR
BAD SWITCH
GAS VALVE
REPLACE CONTROL
GAS FLOW
PRESSURE SW ITCH
CHECK
-
CHECK
208V 230V 460/575V
VM-BK
VM-RD
VM-RD
N/A
N/A
VMC-L1 (BK)
VMC-T1
IIC-UNUSED
TR3-RD
LINE VOLTAGE
43
42
BR3
BR
PK
WH
YL
GY
78
BR3
24
BR1
87
BR2
42
BR2
WH
BL
PU
BR
WH
PU
YL
GR
GY
BL
YL
WH
YL
RD
RS
XX
BL
YL
XX
RD
RD
PU
1
2
3
4
5
6
7
8
9
RD
YL
BR
RD
RDRDRDRD
PU
BR
BL
YL
YL
RD
9
1
2
7
4
3
6
5
8
GAS
PLM2
XX
BL
YL
XX
PU
1
2
3
4
5
6
7
8
9
RD
YL
BR BR
BL
YL
YL
RD
HIGH
COM
LOW
BL
YL
RD
YL
YL
PLF1
PLF2
PLF
PLF
MAT
1
2
BK
BK
GY
PK
YL
PU
PU
YL
BL
GR
OR
2
PLM1 PLF1
ECON
12
1
2
4
5
3
6
7
8
9
10
11
12
1
2
7
4
3
6
5
8
11
10
9
GY
PK
YL
PU
PU
YL
BL
GR
WH
9
LS
ALS
WH
6B
GR WH
BL
NOTE 4:
4
VM-BK VM-BK
VM-RD
BK
RD
PU
BK
RD
OR
BK
RD
OR
GY
PK
GY
CC2
L1 T1
L2 T2
L3 T3
CCX2
GR
CCH2
GR
COMP2
L1
L2
L3
~
M
3
BK
RD
YL
BK
RD
OR
BK
RD
OR
RD
BK
CC1
L1 T1
L2 T2
L3 T3
CCX1
GR
COMP1
L1
L2
L3
~
M
3
GR
CCH1
BK
FB1
F1
F1
F1
FB2
F2
F2
F2
BK OR
GR
VM
M
~
1
4
4
WH
BK
RD
WH
L1 T1
VMC
L2 T2
4
OR
RD
TR2
150VA
BK
TR1
COM
CB
GR
OR
5
BK
BK
RD
OR
BK
4
WH
BL
FPS2
PLM
2
1
PU
PU BK
BK
PU
FPS1
PLM
2
1
YL
YL BK
BK
YL
10
10
10
11
22
33
PS1
YLYL YL
YL YL
11
22
33
PLF1
PLM1
PS2
PUPU
PUPU
PUPU
PU
11
11
11
GR
~
M
1
CM 2
FC 2
BK
BR
PU
GY
BR
PU
PK
GR
~
M
1
CM 1
FC 1
BK
BR
PU
BK
BR
PU
RD
PLF
PLM
CM
BK
BK
PLF
PLM
CM
GY
GY
GY PK
BK
RD
2
1
2
1
BK
2
1
2
1
GY
12
12
12
FOR HIGHER TORQUE, "YL" AND/OR "WH" WIRE(S) CAN BE MOVED TO T2 ON TB1.
SEE IO MANUAL FOR ADDITIONAL INFORMATION.
FOR HIGHER TORQUE, "PU" AND/OR "BR" WIRE(S) CAN BE MOVED TO T4 - T5 ON
TB1. SEE IO MANUAL FOR ADDITIONAL INFORMAT ION.
24VAC ALARM OUTPUT FROM OPTIONAL ECONOMIZER CONTROL MODULE
IF OPTIONAL FREEZESTAT IS INSTALLED, REMOVE FPS PLM JUMPER AND PLUG
IN FREEZESTAT HARNESS.
CRANKCASE HEATER IS OPTIONAL.
IF LOW AMBIENT KIT IS INSTALLED REMOVE CM PLM JUMPER AND PLUG IN NEW
HARNESS FROM LOW AMBIENT KIT.
FOR TWO STAGE HEAT OPERATION, REMOVE JUMPER BETWEEN W1 AND W2.
13
13
GV
PLF1
PLM1
1
1
PRELIMINARY
RY
A
A
ARY
ARY
A
A
A
A
A
A
A
A
A
A
R
R
K
Y
Y
BK
IMIN
P
R
PREL
P
P
R
PR
PREL
P
P
M
M
L
Y
Y
Y
Y
1
Y
PLM
BM
BM
Y
Y
Y
Y
Y
Y
Y
Y
L2 T2
B
C
Y
Y
Y
ARY
A
R
R
D
Y
Y
R
L2 T2
Y
Y
Y
R
R
R
Y
Y
O
L3 T3
Y
Y
Y
A
A
A
A
A
A
A
A
A
A
A
A
A
A
A
A
A
A
A
A
A
A
A
A
A
FB3
A
A
A
A
A
A
A
A
A
A
A
A
A
A
A
A
A
A
A
A
A
A
A
A
A
A
A
A
F3
A
A
A
A
A
A
M
M
PLF
M
M
BM
R
M
M
M
M
M
M
M
M
M
1
M
M
M
M
2
M
M
M
M
PREL
P
I
P
P
P
P
P
P
P
P
P
P
P
P
P
P
R
R
R
R
R
R
R
R
P
N
N
BL
A
A
A
A
A
A
R
REL
P
P
P
P
P
E
E
E
E
E
E
P
P
P
P
P
P
P
P
P
P
P
P
P
P
P
P
P
P
P
P
P
9
RY
RY
Y
Y
Y
Y
Y
Y
Y
Y
Y
Y
Y
Y
Y
Y
Y
Y
RY
R
R
R
R
R
Y
PU
R
OR
R
OR
R
Y
Y
Y
Y
Y
Y
GY
Y
Y
Y
Y
Y
Y
Y
Y
Y
CX2
Y
Y
Y
Y
R
R
R
R
R
R
R
R
R
R
R
R
R
R
R
R
R
R
R
R
F2
F2
A
A
A
A
A
A
A
R
R
R
R
R
R
A
A
A
A
A
A
R
I
I
I
I
I
I
I
E
E
E
E
E
E
E
E
E
PU

Related product manuals