EasyManua.ls Logo

Daikin DM96SN - Dimensions and Installation Clearances; Minimum Clearances to Combustible Materials

Daikin DM96SN
8 pages
Print Icon
To Next Page IconTo Next Page
To Next Page IconTo Next Page
To Previous Page IconTo Previous Page
To Previous Page IconTo Previous Page
Loading...
4 www.daikincomfort.com SS-DM96SN-U
SS-DM96SN-U www.daikincomfort.com 5
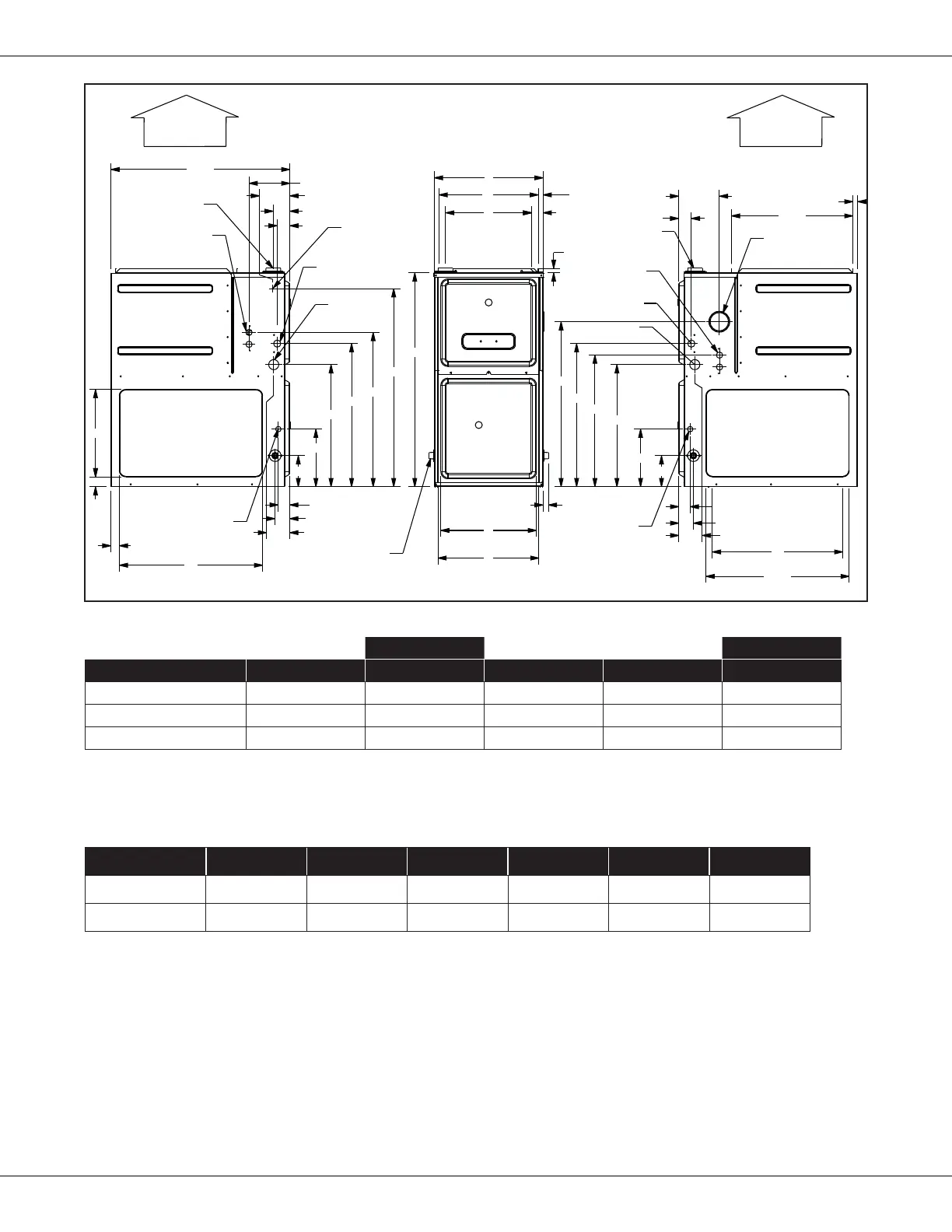
Dimensions
Minimum Clearances to Combustible Materials
Position Sides Rear Front Bottom Flue Top
Upow 0" 0" 3" C 0" 1"
Horizontal 6" 0" 3" C 0" 6"
C = If placed on combusble oor, the oor MUST be wood ONLY.
5
19
34½
¾
19½
¾
B
C
23
2
1
2½
2
6½
5
9¼
19
23
24
31
A
21
2
14
23
1
½
1
¾
28¾
2
1
2½
2
2¾
6½
1
26½
23½
Folded Flanges
22
Unfolded Flanges
D
Unfolded Flanges
E
Folded Flanges
Air
Discharge
Air
Discharge
LEFT SIDE VIEW
FRONT VIEW
RIGHT SIDE VIEW
Condensate Drain
Trap Exterior
Connecon
(Right or Le Side)
¾ PVC
Vent/ Flue Pipe
2" PVC
Alternate
Vent/ Flue
Locaon
Right-Side
Drain Trap
Exterior Holes
High-Voltage
Electrical Outlet
Alternate
Gas Supply
Low-Voltage
Electrical Outlet
Standard
Gas Supply
Locaon
Center Dimple
For Alternate
Air Intake Pipe
3" OD Hole
Air Intake
2" Pipe
Le-Side
Drain Trap
Exterior Holes
High-Voltage
Electrical Outlet
Low-voltage
Electrical Outlet
Air Discharge Air Return
Model A B C D E
DM96SN0403BU 17½" 16" 13⅞" 12⅛" 13⅝"
DM96SN0603BU 17½" 16" 13⅞" 12⅛" 13⅝"
DM96SN0805CU 21" 19½" 17⅜" 16" 17½"

Related product manuals