EasyManua.ls Logo

Daikin DPS018 - Page 80

Daikin DPS018
122 pages
Print Icon
To Next Page IconTo Next Page
To Next Page IconTo Next Page
To Previous Page IconTo Previous Page
To Previous Page IconTo Previous Page
Loading...
IM 1125-7 • REBEL ROOFTOPS 80 www.DaikinApplied.com
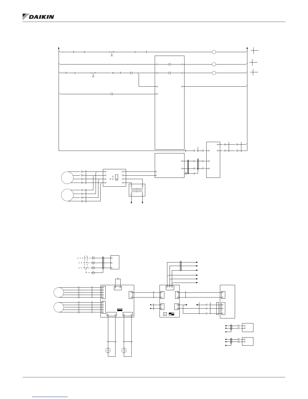
WIrIng dIagraMs
Figure 72 continued: Typical CAV_VAV 208-230 VAC Wiring (3 of 4) — DPS 003–006 shown
303
304
305
306
307
308
309
310
311
312
313
314
315
316
317
318
319
320
321
322
323
324
325
326
327
328
329
330
331
332
333
334
335
336
337
338
339
340
341
342
343
344
345
346
347
348
349
350
351
352
353
354
355
356
357
358
359
360
361
362
301
302
363
364
ORG
RED
MODBUS
X4A
TN2
+ -
X86A
X88A
X89A
ACS3
ACS1
X6A
FILTER
24VAC
DIP SWITCH
1
2
3
4
2
GND
YEL
BLK
GRY
4
KON 24
SD
1 2 3
DIP SWITCH
BLK
WHT
GRN
RED
BLK
WHT
CN2
GRN
RED
120V
24V
ORG
RED
YEL
BLK
GRY
X87A
X80A
ORT
IRT
X79A
Bacnet MSTP
Building COM
{
Note: Connect External Field Shield Wires
Together, But Do Not Terminate To
Ground At The Rooftop Unit
3
4
A4P
(112)
EVB
(107)
1
3
IFB
1
2
1
2
1
2
16V
GND
3
2
1
EVI
NB
IFBF
EVI-E
A4/4-I
DO1B
DO1
354A
A4P-X6A-I
CBL345-I
DRN
EVBJMP-I
EVB/88-I
C1
13 14
R-CCH1
(145)
NCNO
R5-6
C2
DO2
DO2B
1
2
3
4
5
1
2
IFN_MOTOR
NB
1
2
IFN-CI
DI5
MCB
3
1
WHT
BLK
159A 305A 155B
155B
IFB-I
BLK
WHT
BRN
RED
GRN
WHT
WHT
BLK
351E
352B
WHT
BLK
RED
DRN
WHT
BLK
162A
162B
1
3
2
4
EVI
5
2
1
5
RED
BLK
WHT
A4P-X6A-E
3
2
1
PL17
HP3-I
CH
HP1
NB
2
PL4
HP3-I
HP1-I
1
PL4
13 14
R-HP1
(307)
(255)
NCNO
HP1-I
CH
HP3
NB
2
PL3
1
PL3
9 5
R-HP1
(303)
307B
155B
307B
159A 307A
159A 303A
A1 A2
M3
(132)
(133)
(134)
(147)
NCNO
307C 155B
330A
330B
327B
328B
2
+
1
3
T7
CLASS 2
4
X8-AO
M
-
RHB1
-24V
+24V
B
W
G
R
RHV1
327A
CHV1
329A
328C
327A
328A
329A
328C
328A
CHV-I
RHV-I
159A
155B
HEAT-I
HEAT-E
3
DRN
301G
DRN
X5-AO
5
1
PL15
2
PL15
6
1
PL19
HEAT1
MOD GAS
HEATER
NB
M -
+
2
4
PL15
PL19
3
4
3
PL18
L1 L2
G
HEAT-I
BLK
WHT
RED
HEAT-E
BLK
WHT
RED
HEAT-E
GRN
WHT
HEAT-I
GRN
WHT
2
4
1
3
5
3
5
4
2
1
EVO
5
4
2
3
1
EVO-E
EVO
NB
WHT
BLK
BRN
RED
GRN
ORT-E
21
BLK
BLK
IRT-E
BLK
1
2
BLK
EXPD
EXH-CI
2
1
EXH_MOTOR
NB
WHT
BLK
DRN
RED
BLK
DRN
CBL340-I
WHT
TB2
128
130
130G
129
REF
-
+
BNMS
9
5
OAER
(242)
311A159A
DI6
255
(255)
120V_N
(160)
120V_H
(160)
A1+ /(212)
B1- /(213)
GND1 /(214)
(212)
A1+ /
B1- / (213)
GND1 / (214)
T2B_24V /
(163)
T2B_N /
(163)
256
(257)
120V_H
(160)
120V_N
(160)
(361)
A2+ /
B2- / (361)
GND2 / (362)
GND2 /(349)
B2- /(349)
A2+ /(348)

Table of Contents

Related product manuals